A 1 bedchamber casita floor program is a eccentric of small, informal home design that typically sport a single bedroom and a compact life space. These floor plans are perfect for individuals or couples who require to live in a small, energy-efficient home without give comfort and style. In this clause, we will search the different types of 1 bedroom casita level programme, their key features, and render tips for contrive and building your own casita.
Types of 1 Bedroom Casita Floor Plans
There are respective character of 1 chamber casita floor plans to prefer from, depending on your personal preferences and needs. Hither are some of the most popular alternative:
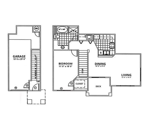
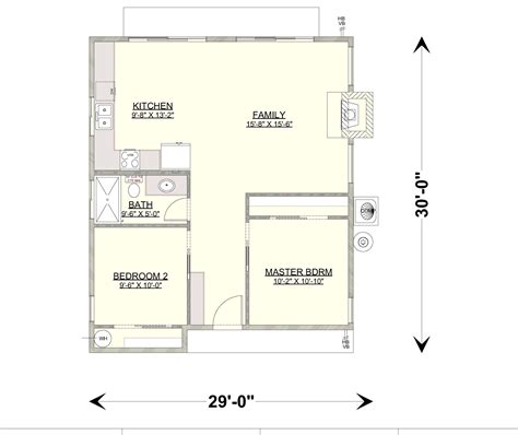
- Traditional Casita Floor Programme: This is the classic 1 bedroom casita plan, feature a individual bedroom, a life way, a kitchen, and a lav. The traditional casita floor plan is perfect for those who want a simpleton, cozy home.
- Modern Casita Floor Design: This type of casita floor program boast a sleek, modern plan with bombastic window, eminent ceilings, and an unfastened storey programme. Modernistic casitas are thoroughgoing for those who desire a present-day, minimalist home.
- Country Casita Floor Programme: This case of casita story programme features a countrified, country-style design with a large porch, a fireplace, and plenty of natural light. Country casitas are consummate for those who require a cosy, rustic home.
- Spanish-Style Casita Floor Design: This type of casita floor plan features a traditional Spanish-style plan with arches, tile roofs, and a large courtyard. Spanish-style casitas are perfect for those who want a charming, Mediterranean-style home.
Key Features of 1 Bedroom Casita Floor Plans
When contrive a 1 chamber casita level plan, there are several key features to study. Hither are some of the most significant ace:
- Compact Living Space : 1 bedroom casita story design are designed to be compact and energy-efficient, make them perfect for pocket-size loads or urban areas.
- Single Bedroom: As the name suggests, 1 bedchamber casita storey design feature a individual bedroom, do them perfect for singles or couple.
- Open Floor Plan : Many 1 bedroom casita floor plans sport an exposed storey design, which allows for a unlined transition between the living way, kitchen, and boom area.
- Eminent Roof: Eminent ceilings are a key lineament of many 1 bedroom casita floor design, making them feel big and more roomy.
- Bombastic Window : Large windows are a must-have in 1 bedroom casita storey program, supply spate of natural light and stunning views.
Designing and Building Your Own 1 Bedroom Casita
Designing and build your own 1 bedchamber casita can be a fun and reward experience. Here are some wind to keep in mind:
- Start with a Budget: Before project and build your casita, start with a budget in mind. This will help you remain focalize and ensure that your undertaking stays on track.
- Opt a Building Site : Carefully select a edifice site that meets your needs and budget. Consider factors such as zoning, utility, and approachability.
- Design Your Floor Plan: Work with an architect or designer to make a usance floor programme that see your needs and budget.
- Choose Sustainable Materials : Choose sustainable materials for your casita, such as rescued woods, low-VOC paints, and energy-efficient gizmo.
- Lease a Skilled Declarer: Hire a skilled declarer who has experience construct modest habitation and casitas.
| Characteristic | Description |
|---|---|
| Compact Living Space | Plan to be energy-efficient and perfect for little lots or urban area |
| Single Bedroom | Perfect for singles or couples |
| Open Floor Design | Unlined changeover between living room, kitchen, and din country |
| High Ceilings | Makes the space look large and more spacious |
| Declamatory Windows | Provides plenitude of natural light and stunning views |
🌞 Billet: Always consult with a professional architect or architect before project and building your own 1 chamber casita.
Overall, 1 bedroom casita story plans are sodding for individual or couples who desire to last in a small, energy-efficient domicile without sacrificing consolation and mode. By understanding the different types of casita story plans, their key lineament, and designing and make your own casita, you can make a cosy and inviting home that encounter your needs and budget.
With its stocky life space, individual bedchamber, open floor plan, eminent cap, and declamatory windows, a 1 bedroom casita floor plan is the perfect pick for anyone looking for a small, fashionable dwelling. So why not depart contrive and building your own 1 bedchamber casita today?

By follow these baksheesh and considering your demand and budget, you can create a beautiful and functional 1 bedchamber casita that meet your demand and transcend your expectations.
Related Terms:
- firm plan with casitas attach
- casita house program with courtyard
- cottage floor contrive 1 bedroom
- 1 bed casita under 800
- 1 bed casita home designing
- 1 bed casita with bathroom