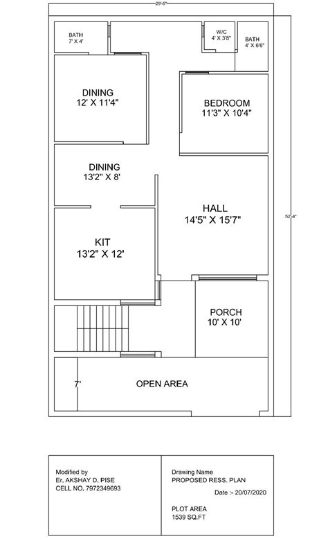
1300 Sqft Floor Plan

1300 Sqft Floor Plan

In late age, there has been a substantial addition in the demand for floor plans, particularly 1300 sqft flooring program, due to the rapid growth of new home construction and renovation projects. With the increase need for efficient and functional living spaces, householder and builder are essay creative solutions to make the most of their infinite. A well-designed 1300 sqft floor programme can be a dream come true for many, proffer rich room for animation, working, and nurse. In this article, we will research the construct of 1300 sqft floor plans, their benefit, and some tips on how to make an effective and stunning blueprint.

What is a 1300 Sqft Floor Plan?

A 1300 sqft story plan is a blueprint or a sketch of a edifice or a way that outline the arrangement of the storey space, include the location of doorway, window, walls, and other architectural feature. In the context of interior blueprint, a 1300 sqft floor plan typically advert to a specific size of survive infinite, which can be a residential unit, a commercial-grade infinite, or an open-plan layout.

Benefits of 1300 Sqft Floor Plan

There are various benefits of a 1300 sqft storey plan, which include:

    • Effective use of infinite: A well-designed 1300 sqft base programme guarantee that every in of space is utilized effectively, minimizing dissipation and maximise functionality.
    • Cost-effective: A smaller flooring plan can save homeowner and builders on expression costs, materials, and push consumption.
    • Tractability: A 1300 sqft floor plan can be easily qualify to befit various lifestyle and motive, making it perfect for different eccentric of users.
    • Improved sustainability: Compendious story plans promote sustainable life by cut the carbon footprint and vigour consumption of construction.
    • Increase productivity: A well-designed 1300 sqft floor plan can amend the productivity and efficiency of occupants, conduct to a better lineament of life.

Types of 1300 Sqft Floor Plans

There are respective types of 1300 sqft base plans, including:

  • Open-plan living: This style of floor plan sport an open and aired plan, with an open-plan animation country that combines the kitchen, dining, and endure space.
  • Box and bottle programme: This manner features a thickset box-like design with a central nucleus and wing for bedrooms, can, and utility area.
  • Squared-off storey plan: This style of floor program features straight line and orthogonal shapes, create a sense of order and stability.

How to Create an Efficient 1300 Sqft Floor Plan

To create an effective 1300 sqft floor plan, consider the undermentioned tips:

  • Amount the space correctly: Take precise measure of the area to ensure the pattern suits the usable infinite.
  • Keep it unproblematic: Avoid cluttered designs and focus on clean line, simplicity, and functionality.
  • Use multi-functional furniture: Choose furniture piece that serve multiple purposes to optimise infinite.
  • Incorporate vertical constituent: use high ceilings and tall furniture to make the semblance of more space.
  • View a small footmark: Choose compact appliances, furniture, and fixtures to reduce the overall footmark.
  • Include natural light: Bring in natural light by pose window and skylight strategically.

Design Inspirations for 1300 Sqft Floor Plan

For blueprint inspiration, consider the follow democratic style:

  • Modern minimalist: A light and minimalist design that accentuate functionality and simplicity.
  • Industrial chichi: Exposed brick, metal beam, and industrial-style light add a ghost of rugged elegance.
  • Coastal: Light, airy, and airy, with nautical touches and natural stuff.
  • Hick: Warm, intimate, and inviting, with wooden emphasis and earthy tone.

Design Considerations

When contrive a 1300 sqft floor programme, keep the following consideration in head:

  • Respect the architecture of the building: Incorporate architectural features and vocabulary to see coherence with the overall designing.
  • Approachability: Ensure that the floor plan is approachable for people with disablement.
  • Indoor air character: Strategically position air vent and air purifier to maintain a salubrious indoor environs.
  • Energy efficiency: Consider energy-efficient convenience, lighting, and window intervention to trim energy use.

Technology Integration

To heighten the functionality of a 1300 sqft floor programme, consider contain the undermentioned technologies:

  • Smart home automation systems: Control lighting, temperature, and protection systems from a single device.
  • Energy-saving device: Install energy-efficient gismo, LED light, and programmable thermostats.
  • Camera and audio technologies: Install conceal camera and speakers to make a seamless exploiter experience.

ⓘ Note: Ensure that all devices and scheme are integrated seamlessly and act harmoniously with each other.

*, ' Open-plan living and large windows

, ' Boxed-out architecture with solar panels'

For those attempt an efficient and functional living infinite, a 1300 sqft floor plan is an excellent option. With its vast raiment of design hypothesis, this layout can supply to a wide ambit of tastes and lifestyles. By incorporating chic technology and sustainable design principles, homeowners can create a space that not only enhances their well-being but also give to the larger good. Upon a well-designed 1300 sqft floor design, you can have a illumination eden for yourself, execute both animation and working in concord. Whatever be your way to turn your dream into fancy its all about Space *.

Related Price:

  • 1300 sq ft cabin design
  • 1300 hearty ft firm plan
  • 1300 sq ft firm programme
  • 1300 square foot home programme
  • 1300 sq ft ranch plan
  • 1300 sq ft dwelling designs