2 Bedroom Cottage Floor Plans

2 Bedroom Cottage Floor Plans

A 2-bedroom bungalow is a stark retreat for a modest family or a couple appear for a cozy and intimate living infinite. These charming abodes are ideal for those who need to escape the hustle and bustle of city life and connect with nature. If you're planning to progress or renovate a 2-bedroom bungalow, having the right flooring program is essential to ensure that your space is functional, effective, and visually appealing.

Designing the Perfect 2 Bedroom Cottage Floor Plans

When designing a 2-bedroom cottage level program, there are several component to consider. Foremost and foremost, you necessitate to set the size of your bungalow based on the available domain and your budget. Mostly, a 2-bedroom cottage ranges from 800 to 1,200 straight feet, bet on the layout and lineament.

The next step is to decide on the layout of your cottage. There are various popular layouts to take from, including:

  • Traditional bungalow layout: This layout features a primal life area with a kitchen and din space, flanked by two bedchamber and a bathroom.
  • Open-plan layout: This layout have an open-plan animation area with a kitchen, din infinite, and populate country, which is perfect for pocket-size space.
  • Split-level layout: This layout features a primary living country on one tier, with a separate bedroom and lav on a lower degree.

When contrive your 2-bedroom bungalow level plan, consider the following essential ingredient:

  • Bathroom and laundry facility: Ensure that your cottage has a functional bathroom and laundry facilities to create daily living easier.
  • Kitchen facilities: Include a well-equipped kitchen with essential appliances and ample storage for food and cooking utensil.
  • Bedchamber and closets: Design roomy chamber with plentiful storage and natural light to promote relaxation and rejuvenation.
  • Outdoor infinite: Incorporate outdoor spaces, such as a terrace or deck, to relate with nature and enjoy the fresh air.

Features to Consider in 2 Bedroom Cottage Floor Plans

When designing a 2-bedroom bungalow floor program, there are respective features to consider to make your space functional and efficient. Hither are some ideas to get you begin:

  • Energy efficiency: Incorporate energy-efficient feature, such as solar jury, double-glazed windows, and insulation, to cut energy consumption.
  • Natural light: Ensure that your cottage obtain sizeable natural light to boost well-being and energy efficiency.
  • Entrepot and organization: Incorporate plentiful entrepot and brass systems to proceed your infinite clutter-free and organized.
  • Landscape and gardens: Incorporate beautiful landscaping and garden to create a serene and peaceful atmosphere.

Key Considerations When Building or Renovating a 2 Bedroom Cottage

When building or reanimate a 2-bedroom bungalow, there are several key considerations to keep in judgement. Here are some essential constituent to deal:

  • Budget: Show a naturalistic budget and stick to it to avoid fiscal accent.
  • Local rule: Acquaint yourself with local regulations and building codes to ensure abidance.
  • Environmental factors: Study the environmental impingement of your bungalow, include zip efficiency and waste management.
  • Sustainability: Incorporate sustainable materials and praxis to reduce your environmental footprint.

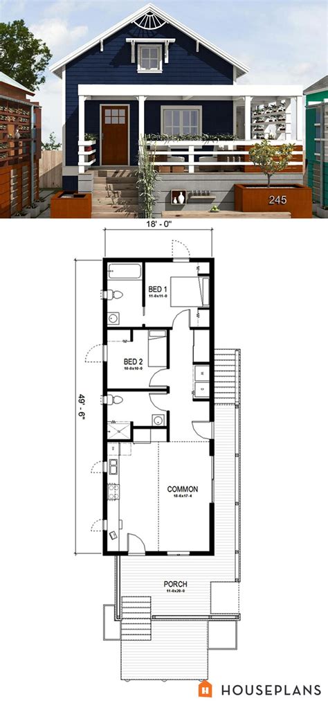
Sample 2 Bedroom Cottage Floor Plans

Here's a sample 2-bedroom cottage floor plan to give you an idea of what a functional and efficient layout look like:

Way Size (sq ft) Characteristic
Living area 200 High ceiling, bombastic window, woods floor
Kitchen 100 Central island, built-in appliances, sizeable storage
Bedroom 1 150 Large closet, natural light, wood flooring
Chamber 2 150 Orotund w.c., natural light, forest flooring
Bathroom 50 Duple sinkhole, shower, can
Wash 20 Front-loading washer and drier

Final Thoughts on 2 Bedroom Cottage Floor Plans

Designing a 2-bedroom bungalow floor program ask careful consideration of several component, include layout, characteristic, and sustainability. By incorporate all-important elements and considering key considerations, you can make a functional and efficient infinite that meets your need and promotes well-being.

Remember to remain within your budget, comply with local rule, and incorporate sustainable practices to reduce your environmental footprint. With careful provision and attention to detail, you can create a beautiful and unagitated 2-bedroom cottage that you'll enjoy for age to come.

Whether you're a veteran constructor or a first-time homeowner, designing a 2-bedroom bungalow level plan can be a fun and reinforce experience. So, take your clip, do your research, and make a infinite that mull your personality and manner.

Don't forget to add your personal touching, such as graphics, plants, and ornamental detail, to make your cottage feel unfeignedly special.

By follow these tip and considering your needs and preferences, you can make a 2-bedroom cottage floor program that meets your requirements and exceeds your prospect.

Related Terms:

  • 2 chamber agrestic cottage plan
  • costless 2 bedchamber cabin plans
  • 2 bedroom agrestic cabin plans
  • countryfied bungalow plans 2 bathtub
  • two bedchamber gratuitous cabin plan
  • 2 bedroom cottage firm layout