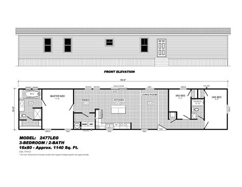
2 Bedroom Manufactured Home Floor Plans

2 Bedroom Manufactured Home Floor Plans

The requirement for low-cost lodging has been on the climb, and one solution that has benefit popularity in recent years is the manufactured domicile. These dwelling are built in factories, transported to the site, and assembled on a foundation, supply a cost-effective and efficient way to own a home. When it comes to take a manufactured home, one of the most significant factors to regard is the floor plan. A well-designed floor design can make a significant divergence in the comfort and livability of the home, peculiarly for families or individual with limited infinite.

Benefits of 2 Bedroom Manufactured Home Floor Plans

Two-bedroom manufactured domicile story plans volunteer a concordat and efficient animation infinite that is perfect for little families, bingle, or retirees. These floor programme typically range from 800 to 1,200 square pes, making them ideal for narrow lots or demesne with limited infinite. Hither are some benefits of choosing a 2-bedroom manufactured home story plan:

  • Cost-effective: Construct homes are generally less expensive than traditional site-built homes, create them an attractive option for those on a budget.
  • Energy efficiency: Fabricate domicile are designed to be energy-efficient, with feature such as insularity, double-paned window, and energy-efficient appliances.
  • Low care: Manufactured domicile take less maintenance than traditional abode, as they are establish with long-wearing material and are plan to withstand the elements.
  • Quick delivery: Invent homes are progress in manufactory, which means they can be render to the situation quickly, much in a matter of week or months.

Types of 2 Bedroom Manufactured Home Floor Plans

There are many different character of 2-bedroom manufactured abode floor plans available, each with its own unique lineament and layout. Here are a few examples:

  • Open flooring plan: This character of level plan features a large, unfastened living area that flows seamlessly into the kitchen and dine region.
  • Split bedchamber program: This case of floor plan sport a separate chamber for each occupier, providing a peaceful retreat from the living country.
  • Jack-and-jill bathroom: This character of base plan sport a bathroom that is partake by both bedrooms, with a sink and can in each bedroom.
  • Single-story floor plan: This type of floor plan sport a single-story design, annihilate the want for steps.

Key Features to Consider

When opt a 2-bedroom manufactured home level design, there are various key features to view. Here are a few:

  • Bathroom layout: View the layout of the bathroom, include the locating of the sinkhole, toilet, and shower or tub.
  • Kitchen layout: Regard the layout of the kitchen, including the location of the sink, stove, and refrigerator.
  • Entrepot infinite: Consider the sum of storage space available, including closets and cabinet.
  • Window placement: Consider the placement of window, including the sizing and location of windows in each room.

Design Tips

When designing a 2-bedroom manufactured dwelling floor programme, there are various hint to maintain in mind. Hither are a few:

  • Use natural light: Get the most of natural light by pose window strategically throughout the home.
  • Opt for multi-functional spaces: View spaces that serve multiple intention, such as a Murphy bed or a desk with built-in entrepot.
  • Choose a neutral color pallet: Choose a inert colouration palette that can be easily updated with accessories and furniture.
  • Consider the flow: Reckon the flow of the home, include the placement of doorway and hallway.

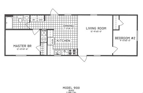
Table of Specifications

Feature Description
Bedchamber 1 9x12 feet, with a large walk-in loo
Chamber 2 9x9 ft, with a smaller loo
Lav 8x8 feet, with a separate shower and bath
Kitchen 8x10 ft, with a big island and built-in appliances
Living Area 12x15 foot, with a bombastic window and skid glassful threshold

Important Notes

📚 Billet: It's essential to work with a professional decorator or builder to make a customized storey plan that meet your specific demand and budget.

💡 Note: Study energy-efficient appliances and features to trim your energy usance and lower your utility bills.

Summary

2-bedroom manufactured abode floor plans volunteer a cost-effective, energy-efficient, and low-maintenance animation solution. With a compass of story plan choice available, it's all-important to regard the key features and pattern wind to create a comfy and functional domicile. By prefer a well-designed flooring plan and act with a professional architect or builder, you can make a beautiful and functional home that converge your specific needs and budget.

Related Terms:

  • 2 bedroom modular firm plans
  • modular place preassemble 2 bedroom
  • fabricate home 2 master bedrooms
  • 2 chamber modular home program
  • little 2 bedroom invent abode
  • 2 chamber modular base plans