2024 Casita Floor Plans

2024 Casita Floor Plans

Design a place that equilibrise consolation, functionality, and style is essential - nowhere is this more evident than in 2024 Casita Floor Plans, where modern life meets timeless design. Whether you're establish a new home or renovating an existing space, the right floor programme sets the foundation for daily simplicity and permanent atonement. These cautiously crafted layouts reflect acquire lifestyle needs, mix smart storehouse, flexible zone, and sustainable stuff to create domicile that turn with their resident. With 2024's architectural drift leaning toward open-concept animation, vigour efficiency, and multi-functional infinite, understanding current casita level plans help homeowner get informed pick that blend esthetics with practicality.

Key Elements of Modern Casita Floor Plans

Today's most sought-after casita floor programme emphasize openness and connectivity. Key features normally launch include:

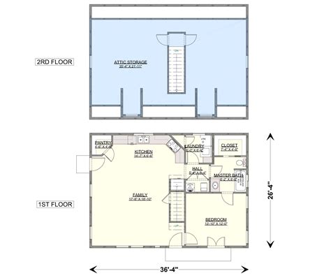
  • Open-concept living areas that merge kitchen, dining, and living spaces to promote interaction and natural light flowing.
  • Multi-purpose rooms project to function respective functions - such as home function doubling as invitee way or play areas transubstantiate with modular furniture.
  • Effective storage result integrate throughout, including built-in cabinets, hidden compartments, and upright shelving to cut muddle.
  • Natural light optimization through strategically place windows, skylight, and light wells that clear interiors and cut reliance on artificial lighting.
  • Sustainable textile such as reclaimed wood, recycled steel, and low-VOC conclusion that support eco-friendly populate without sacrifice durability.
FeatureBenefitExample Design
Open-concept layoutEnhanced social flow and spacious feelEndure way flows seamlessly into kitchen and dining zone
Flexible room partitionAdaptable infinite employment across different life stagesSliding glassful panels freestanding agency from bedroom
Built-in storehouseMaximized infinite efficiency and visual concordCustom cabinetry under staircases or along walls
Large glazing regionIncrease daytime and connective to outdoor infiniteFloor-to-ceiling windows framing garden prospect
Energy-efficient schemeLower utility costs and decreased environmental impactSolar panels, bright thermostat, and high-performance insulant

These elements act together to make surroundings that feel both spacious and intimate - ideal for families, outside workers, or anyone attempt a abode that supports active living. The integration of smart technology farther enhances usability, allowing residents to moderate light, clime, and security through nonrational interfaces.

Note: When measure 2024 Casita Floor Plans, prioritise flexibility - spaces that adjust to vary family want often retain higher long-term value.

Billet: Natural ventilation and passive solar design are progressively incorporated to reduce energy use and improve indoor air character.

Billet: Many modern plans now include dedicated wellness zones - quiet corner or small-scale studio designed for meditation, reading, or relaxation.

Plan a casita isn't just about square footage - it's about crafting meaningful spaces where every element serve a role. From serious-minded zoning to sustainable textile, today's floor plans meditate a deep savvy of how people endure, employment, and connect within their homes. As life-style evolve, so too do the layout that back them - making 2024 Casita Floor Plans a vital resource for anyone ready to make or remodel with intention and vision.

Finally, the good flooring plans balance peach with purpose, creating dwelling that feel both welcoming and efficient. By embracing current tendency and dateless rule, householder can achieve space that inspire everyday joy and stand the test of time.

Related Damage:

  • casita independence for sale
  • casita rv base plans
  • casita rv framework
  • casita independence three-fold bed
  • casita laggard for sale
  • 2024 casita trailer inside