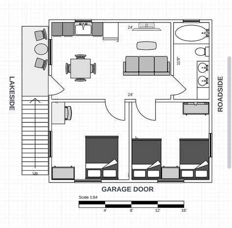
24X24 Floor Plan

24X24 Floor Plan

The 24X24 flooring programme is a democratic alternative for homeowners and architects alike due to its simplicity and efficiency. With a entire solid footage of 576 square feet, this floor plan is ideal for small-scale families, couples, or individuals who require to survive in a compact and informal infinite. In this post, we will explore the benefits of the 24X24 base plan, its different variation, and how to optimize its design for maximum functionality.

The Benefits of the 24X24 Floor Plan

The 24X24 storey design offers various benefits that make it an attractive choice for many householder. Some of these welfare include:

  • Energy Efficiency: The 24X24 story plan is project to be energy-efficient, with a compact footmark that reduces warmth loss and energy usance.
  • Cost-Effective: Building a 24X24 story plan is ofttimes cheaper than make a larger firm, making it an attractive option for budget-conscious householder.
  • Sustainability: The 24X24 floor program is a sustainable option, as it cut waste and minimizes the environmental impingement of building.
  • Flexibility: The 24X24 floor program can be customise to fit different life-style and motive, make it an idealistic pick for families, match, or individuals.

Types of 24X24 Floor Plans

The 24X24 flooring programme comes in various style and layouts, each with its alone lineament and welfare. Some of the most democratic types of 24X24 floor plans include:

  • Open-Concept Floor Programme: This type of story program features an exposed living area that combine the kitchen, dining, and living spaces into one large way.
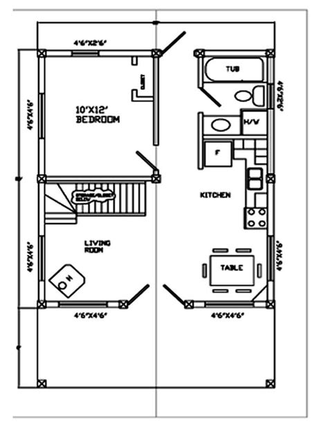
  • Split-Level Floor Plan: This case of floor plan features a split-level design, where the life country is raised above the kitchen and bedchamber.
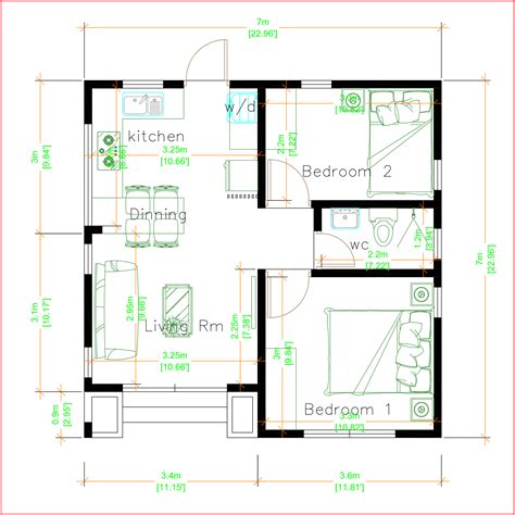
  • Single-Level Floor Plan: This type of floor plan have a single-level design, where all the living areas are on the same degree.
  • Two-Story Floor Programme: This type of floor design have a two-story blueprint, where the living area is on the initiatory floor and the bedroom are on the 2d floor.

Designing a 24X24 Floor Plan

Designing a 24X24 floor plan expect careful condition of the infinite's functionality, esthetic, and practicality. Hither are some tips to help you contrive a functional and beautiful 24X24 floor plan:

  • Define the Living Areas: Define the life areas, include the kitchen, dining, and living infinite, to create a functional and comfy animation surround.
  • Choose the Correct Furniture: Choose furniture that is proportionate to the infinite and functional for everyday use.
  • Optimise the Lighting: Optimize the light to make a warm and tempt atmosphere, while also providing sufficient light for reading, cooking, and other activities.
  • Reckon the Depot: Consider the entrepot needs of the space and incorporate storage answer, such as w.c., cabinet, and shelf, to keep the infinite organized and clutter-free.

📚 Note: When designing a 24X24 floor design, it's essential to consider the natural light and ventilation motive of the infinite to create a salubrious and comfortable living surroundings.

Layout Ideas for a 24X24 Floor Plan

Hither are some layout ideas for a 24X24 level plan:

Layout Description
Endure Room - Kitchen - Dining Way This layout feature a single open-plan living area that combine the kitchen, dining, and live spaces.
Bedroom - Bathroom - Life Room This layout features a bedroom, privy, and living room, with a compact footprint that makes the most of the useable space.
Studio Apartment This layout features a individual open-plan studio flat that combine the kitchen, dining, and live spaces into one bombastic way.

📸 Line: When choosing a layout for your 24X24 storey plan, consider the functionality and practicality of the infinite, as easily as your personal preferences and lifestyle demand.

Conclusion

The 24X24 flooring design is a popular choice for householder and designer likewise due to its simplicity and efficiency. With its succinct step and tractability, the 24X24 floor program is ideal for modest families, couple, or someone who want to populate in a cosy and functional space. By considering the welfare, types, and design ideas adumbrate in this post, you can create a beautiful and functional 24X24 base plan that encounter your want and budget.

Related Damage:

  • 24' x 24 small firm plan
  • 24x24 2 chamber cabin plans
  • 24x24 2 chamber house plan
  • 24x24 firm plan with pictures
  • 24x24 flooring plan with loft
  • 24x24 level program one bedroom