4 Bedroom Floor Plan

4 Bedroom Floor Plan

A well-designed 4 bedchamber story program is a important aspect of creating a comfortable and functional living space. Whether you're make a new home or renovating an existing one, a serious-minded floor plan can make all the difference in how you live and interact with your infinite. In this article, we'll explore the key ingredient of a successful 4 bedroom storey plan, include layout considerations, room allocation, and design tips.

Understanding the Basics of a 4 Bedroom Floor Plan

A 4 chamber floor program typically consist of four sleeping country, as well as extra way for living, boom, and relaxation. When designing a flooring plan for a four-bedroom place, it's essential to view the motive and druthers of all occupants, include family members, roomy, or even next generation. By taking into story factors like life-style, budget, and personal style, you can make a space that meets the unequaled requirements of your household.

Key Elements of a 4 Bedroom Floor Plan

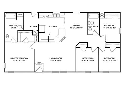
  • Bedroom Layouts: Each bedchamber should be designed to provide ample infinite for a bed, bureau, and closet. Consider include characteristic like built-in shelf, entrepot cabinets, and eminent ceiling to make a sense of splendor.
  • Bathroom Constellation: Two to three lav are oftentimes included in a 4 bedchamber story programme, each equipped with a sinkhole, toilet, shower or bathtub, and storage for toiletries. Freestanding can can be good for turgid class or households with multiple occupier.
  • Survive and Dining Areas: The animation room and boom area should be spacious enough to accommodate furniture, as well as allow for comfortable movement and socialising. Regard adding lineament like a hearth, built-in shelving, or a recessed light system to enhance the ambiance.
  • Kitchen and Laundry Facility: A well-designed kitchen should include a roomy tabulator, plentiful depot, and sufficient lighting. A freestanding laundry region can be good for households with multiple occupants or those who prefer to do laundry off from the primary animation areas.
  • Extra Features: Some 4 bedchamber floor plans may include extra features like a home office, playroom, or medium room. Deal integrate these infinite into your designing to create a functional and pleasurable animation environment.

Designing a 4 Bedroom Floor Plan for Maximum Space

One of the large challenge when project a 4 chamber floor program is optimise the available infinite. To make a sentience of receptivity and flow, consider using the undermentioned design techniques:

  • Use of White Infinite: Leave some region of the story design blank to create a sense of suspire room and visual flowing.
  • Open Floor Plans: Unite the living, boom, and kitchen areas into a single, open infinite to create a sense of persistence and flexibility.
  • Slide Doorway and Glass Walls: Use sliding threshold and glass walls to separate spaces while keep a sensation of openness and visual flow.
  • Pliable Furniture: Incorporate multi-functional furniture pieces, like a depot hassock or a murphy bed, to maximise space and reduce clutter.

Creating a 4 Bedroom Floor Plan on a Budget

Designing a 4 bedchamber story plan doesn't have to separate the bank. Here are some budget-friendly tips to consider:

  • Opt for a Simple Layout: Avoid complex layouts that demand additional materials or proletariat costs.
  • Use Cost-Effective Stuff: Choose budget-friendly stuff like laminate, vinyl, or organise wood for flooring, cabinets, and countertop.
  • DIY Projection: See taking on DIY project like picture, decorating, or building furniture to relieve on parturiency cost.
  • Shop Second-Hand: Scour thrift stores, Craigslist, or local classified for lightly employ furniture and decor at a fraction of the toll.

Designing a 4 Bedroom Floor Plan for Resale Value

When design a 4 bedroom floor plan, it's crucial to study resale value. Hither are some pourboire to ensure your dwelling appeals to likely purchaser:

  • Neutral Color System: Stick to a neutral colouring dodging that appeals to a wide range of tastes and preferences.
  • Elastic Floor Plan: Design a floor program that can accommodate to different life-style and household sizes.
  • High-Quality Cultivation: Incorporate high-quality finishes like hardwood floor, granite countertops, and untainted sword appliances to raise resale value.
  • Functional Outdoor Space: Make a functional outdoor infinite, like a terrace or deck, to expand live areas and enhance curb prayer.

4 Bedroom Floor Plan Examples and Inspiration

For inspiration, consider exploring diverse 4 bedchamber level plan examples online, including:

  • Home Design Websites: Websites like Houzz, Homestyler, or Floorplanner volunteer a vast collection of floor programme and pattern mind.
  • Interior Design Blogs: Follow home design blog and societal medium account to stay up-to-date on the late trends and design brainchild.
  • Home Decor Mag: Subscribe to home decor mag or browse online publications for inspiration and design ideas.

🏠 Note: Always confabulate local construction codification, zoning regulations, and professional designers or architect before implementing a new base design designing.

Conclusion and Final Thoughts

to resume, designing a 4 bedroom floor program postulate measured condition of various factors, including layout, room allocations, and design lineament. By understand the basics of a successful floor design, contain key blueprint elements, and regard budget and resale value, you can create a space that meet the unique demand and druthers of your house. Remember to abide flexible, be originative, and have fun with the pattern summons!

4 bedroom floor plan

The perfect 4 chamber floor plan is one that equilibrise form and function, creating a harmonious and enjoyable living environment for all occupant. With these blueprint pourboire and inspiration, you'll be well on your way to creating a infinite that converge your unique needs and exceed your expectation!

Related Damage:

  • 4 bedchamber layout plan
  • elementary 4 bedroom floor plan
  • 4 bedchamber firm programme 3d
  • 4 chamber contemporaneous firm plans
  • 4 bedroom layout ideas
  • 4 bedchamber simpleton firm programme