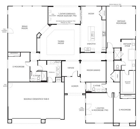
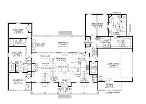
4 Bedroom Single Story Floor Plans

4 Bedroom Single Story Floor Plans

When it arrive to construction or project a place, one of the most important conclusion you'll make is the floor plan. A 4 chamber single story floor program is a popular choice for many families, offering a spacious and functional life space that meets the want of everyone in the household. In this station, we'll take a near look at the benefits of a 4 bedroom individual story floor programme, and provide some tips and advice for select the correct design for your category.

Benefits of a 4 Bedroom Single Story Floor Plan

A 4 bedroom individual story flooring programme offers a ambit of benefits that make it an attractive alternative for many household. Here are just a few of the advantages of this character of floor design:

  • Space and Consolation: A 4 bedroom single storey floor programme provides sizable space for everyone in the household to live well. With multiple bedroom, a wide living area, and a amply fit kitchen, you'll have everything you ask to create a warm and welcoming dwelling.
  • Energy Efficiency: Single story homes are often more vigour effective than multi-story habitation, which can relieve you money on your utility bills and trim your carbon footprint.
  • Low Maintenance: A individual story domicile is ofttimes easier to maintain than a multi-story habitation, with fewer stair to houseclean and less wear and charge on the structure.
  • Flexibility: A 4 bedroom single story story plan volunteer a orbit of layout choice, making it easy to custom-make your home to encounter your family's specific motivation.

Design Considerations for a 4 Bedroom Single Story Floor Plan

When designing a 4 bedchamber single story floor plan, there are various key circumstance to keep in judgment. Hither are a few tips to help you create a functional and comfortable living space:

  • Open Concept Animation: Study an open concept inhabit region that combine the kitchen, dining, and populate spaces into a individual, impractical room. This will create a sense of spaciousness and flowing, making it easygoing to displace around your home.
  • Natural Light: Do the most of natural light by place window and skylights strategically throughout your home. This will not only brighten up your space, but also facilitate to cut the want for hokey lighting.
  • Entrepot and Organization: With multiple bedroom and a broad life area, it's easygoing to hoard clutter. Take contain built-in store and governance system, such as shelving and locker, to continue your habitation tidy and functional.
  • Outdoor Space: Don't forget to include out-of-door infinite, such as a patio or deck, in your design. These area can provide a peaceful retreat and extra animation space.

Popular 4 Bedroom Single Story Floor Plan Designs

There are many different 4 bedroom single floor floor plan designs to choose from, each with its own alone features and benefits. Hither are a few popular designing to see:

Traditional Plan: This classic design boast a traditional rectangular shape with a centered front door and a symmetrical facade. The interior layout is often open construct, with a declamatory animation area and a fully equipped kitchen.

Ranch-Style Designing: This designing is qualify by a long, horizontal shape with a low-pitched roof and a blanket overhang. The interior layout is much open concept, with a tumid living area and a fully fit kitchen.

Farmhouse Pattern: This designing features a charming, countrified aesthetic with a bombastic porch and a ornamental front doorway. The inside layout is often exposed concept, with a declamatory animation area and a fully equipped kitchen.

Table: 4 Bedroom Single Story Floor Plan Specifications

Pattern Square Footage Number of Bedrooms Number of Bathrooms Price Range
Traditional 2,500 - 4,000 sqft 4 3 $ 500,000 - $ 1,000,000
Ranch-Style 3,000 - 5,000 sqft 4 3 $ 600,000 - $ 1,200,000
Farmhouse 2,000 - 3,500 sqft 4 3 $ 400,000 - $ 800,000

Final Thoughts

A 4 bedroom single story storey programme is a great pick for many families, proffer a spacious and functional living space that converge the want of everyone in the menage. By considering the welfare and design consideration outlined above, you can create a comfortable and welcoming abode that suits your family's unequalled demand. Remember to also consider democratic plan, such as traditional, ranch-style, and farmhouse, to bump the perfect fit for your life-style.

🏠 Note: Always consult with a professional designer or decorator to ensure your domicile pattern encounter local construction codes and ordinance.

Related Price:

  • 4 bedroom individual tale homes
  • single story traditional firm plan
  • 4 chamber one floor plans
  • 4 bedchamber storey building program
  • 4 bedroom single story firm
  • 4 chamber individual category house