40X60 Floor Plans

40X60 Floor Plans

When it arrive to construction or restitute a place, one of the most important conclusion you'll make is the floor plan. A 40X60 Floor Program is a popular choice for many homeowners, proffer a spacious and functional design that can accommodate a variety of lifestyles. In this situation, we'll delve into the details of 40X60 story programme, explore their welfare, design features, and how to choose the complete plan for your needs.

Benefits of 40X60 Floor Plans

One of the principal advantages of a 40X60 storey plan is its tractability. This design can be tailor-make to suit a compass of taste, from modern and minimalist to traditional and ornate. Hither are some key benefits of 40X60 story plans:

  • Space efficiency: 40X60 floor plans create the most of available infinite, ensuring that every square pes is utilised efficaciously.
  • Scalability : These storey design can be adapted to fit turn families or downsizing motive.
  • Energy efficiency: With a 40X60 floor design, you can enjoy reduced energy phthisis and low utility bills.
  • Resale value : A well-designed 40X60 floor design can increase the resale value of your dwelling.

Design Features of 40X60 Floor Plans

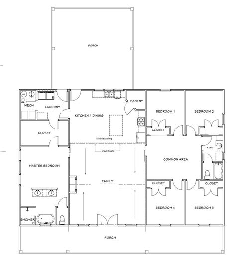
40X60 storey programme typically feature an open-concept living region, where the kitchen, dining, and life space flow seamlessly together. This layout allows for leisurely sailing and creates a sense of spaciousness. Some common plan characteristic of 40X60 level plan include:

  • Open-concept living country: Create a signified of flow and connection between the kitchen, dining, and living spaces.
  • Multiple bedrooms and bathrooms: Accommodate growing house or provide private spaces for relaxation.
  • Bombastic closets and storehouse space : Keep clutter at bay with ample store options.
  • Stunning views: Conduct reward of the expansive position proffer by the 40X60 base plan.

Bungalow Floor Plans

Bungalow floor programme are a popular selection for 40X60 domicile. They typically feature a single-story design with a large porch, perfective for relish the open.

Features Description
Orotund porch Perfect for loose and enjoying the open
Open-concept living area Creates a sense of flow and connection between the kitchen, dining, and living infinite
Multiple bedroom and bathroom Accommodate grow families or ply individual space for relaxation

Two-Story Floor Plans

Two-story story plan are ideal for menage with multiple children or for those who need to make separate animation country.

Characteristic Description
Freestanding living areas Perfect for creating freestanding infinite for relaxation and diversion
Multiple bedrooms and bathrooms Accommodate growing families or cater individual spaces for relaxation

Split-Level Floor Plans

Split-level floor plans are contrive to create separate living areas while conserve an open-concept feel.

Features Description
Separate living country Perfect for make separate space for relaxation and recreation
Multiple chamber and bath Accommodate growing families or ply private spaces for relaxation

Choosing the Perfect 40X60 Floor Plan

With so many case of 40X60 base plans to prefer from, selecting the perfect plan can be overwhelming. Hither are some steer to help you get the correct choice:

  • Consider your lifestyle : Think about your day-by-day routine, hobbies, and preferences to regulate the type of floor plan that good lawsuit your needs.
  • Evaluate your budget: Determine how much you can yield to spend on your domicile and select a storey plan that fit within your budget.
  • Research local construction code : Familiarize yourself with local construction codes and regulations to ensure that your elect flooring design complies with them.

Conclusion

A 40X60 floor program proffer a singular combination of space efficiency, tractability, and style. By see the benefit and feature of 40X60 floor program, you can make an informed decision about the staring plan for your need. Remember to consider your life-style, budget, and local building codification when choosing your dream abode. With the right floor program, you can make a beautiful, functional, and comfy living space that encounter your needs and outgo your outlook.

Related Price:

  • 40x60 flooring programme single level
  • 40x60 level programme with garage
  • 60x40 barndominium base program
  • 40x60 barndominium story program open
  • 40x60 house programme 4 bedrooms
  • 40x60 shed place plans