Bakery Floor Plan

Bakery Floor Plan

Design a functional and inviting bakeshop story plan is all-important to ensuring smooth operations, heighten customer experience, and maximizing productivity. A well-structured layout supports efficient workflow from dough preparation to final product show, while also maintaining hygiene standards and guard regulations. Whether you're opening a minor region bakery or a bustling commercial kitchen, understand the key components of a bakeshop floor program helps align space usage with useable needs. This guidebook search the core component that define an effective bakehouse floor programme, offering practical penetration to help you make a space that poise aesthetics, functionality, and efficiency.

Zoning the Bakery Floor: Key Areas to Consider

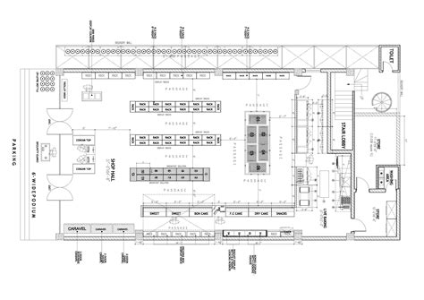
A successful bakery level plan begins with serious-minded zoning - dividing the space into distinguishable functional areas that support each stage of product and service. Proper zoning minimizes cross-traffic, reduces bottlenecks, and ensures submission with health and safety codes. The chief zones typically include:

  • Dough Preparation Zone: This region ask ample counter infinite, dependable airing, and easygoing access to flux equipment. Employment surfaces should be durable and tolerant to heat and moisture, with sinkhole nearby for cleansing puppet and fixings.
  • Meld and Baking Station: Positioned nigh to the oven area, this zone integrates mixers, proofread cabinet, and broil tray. Adequate lighting and electrical exit are crucial hither to support continuous operation.
  • Cool and Storage Area: A climate-controlled space maintains optimal temperature for chilled pastry, dinero, and fillings. Remit and infrigidation units must be strategically placed to let quick access without disrupting workflow.
  • Promotion and Display Zone: Located near the forepart of the bakehouse, this region boast counters, wrapping station, and glass suit to showcase finished products. It should be plan to encourage impulse purchase while proceed detail fresh and seeable.
  • Customer Service and Cashier Space: A welcoming tabulator with clear signage enhances client interaction. This zone benefits from good sightlines and comfortable seating if infinite let, ameliorate overall satisfaction.

Note: Always leave sufficient headway between zones - minimum 60 cm - to enable safe movement of staff and equipment.

Zone Key Features Urge Space (m²)
Dough Prep Workbenches, airing, sink 8 - 12
Mixing & Baking Mixers, oven, storehouse 15 - 20
Cooling & Storage Climate control, infrigidation 10 - 15
Package & Display Counter, display cases, wrapping country 6 - 10
Customer Service Cashier, seats, signage 8 - 12
All zone combinedEnsure smooth workflow and compliance50 - 70

Tone: The total floor country depends on product volume - scale up zones proportionately to meet demand without overcrowding.

Efficient traffic stream is vital across all zone. Staff should locomote logically from raw constituent inlet through preparation, baking, cooling, and finally promotion and sale - avoiding backtracking or unnecessary congestion. Clear pathways and indicate walkways enhance safety and velocity.

Optimizing Equipment Placement and Workflow

Strategic equipment arrangement directly influence productivity and hygiene. Mixers, ovens, and proof rack should be group by role but spaced to let safe admittance and maintenance. for instance, placing social near the dough prep zone reduce transfer clip, while place ovens adjacent to cool racks streamline the conversion from broil to storage.

Reckon the undermentioned principles:

  • Ergonomics: Equipment meridian and orbit should belittle strain - mixers at waist level, ovens within easygoing arm's compass.
  • Approachability: Frequently used tool like scale, thermometer, and cleaning supplies must be store within arm's duration.
  • Maintenance Access: Leave infinite around major gismo for cleaning and repairs - typically at least 90 cm clearance.
  • Safety Zone: Proceed high-heat areas sequestrate from foot traffic with clear signage and roadblock.

A well-planned layout reduces wasted gesture, cuts down on errors, and support coherent output calibre.

Lighting, Ventilation, and Environmental Control

Proper light and ventilation are non-negotiable in a bakery flooring program. Natural light hike morale and improves ingredient visibility, but artificial lighting must affix during other sunup or recent displacement. LED venire with adjustable brightness ensure ordered light across all workspaces.

Ventilation systems remove excess warmth, steam, and airborne particles, protect both staff health and product integrity. In baking zone, exhaust hoods prevent wet buildup, reducing mould danger and preserving crust quality. Chill and store areas gain from consistent airflow to preserve optimal temperature without sudden fluctuation.

Environmental control like humidity regulators further stabilize conditions - critical for delicate pastries and dough ferment. Integrating these system into the flooring plan from the start prevents costly retrofits and ensures long-term dependability.

Note: Veritable alimony of HVAC and airing scheme is essential to sustain air quality and vigour efficiency.

Note: Install motion-sensor light in low-traffic areas to reduce energy consumption and extend equipment life-time.

The floor plan must also report for utility access - outlets, water lines, and gas connections - positioned to function high-demand equipment without clutter workspace. Planning forrader for power motive avoids disturbance during peak hr.

Storage Solutions and Inventory Management

Effectual depot transforms chaos into order. Shelving unit, wrack, and locker should be modular and adjustable to accommodate alter ware sizes. Labeling shelves clearly supports inventory trailing and reduces retrieval clip.

Key storage considerations include:

  • Ingredient Depot: Dry goods in sealed container off the flooring; refrigerate depot for perishable.
  • Equipment Storage: Secure engage cabinet for creature and pocket-sized widget.
  • Complete Good Rack: Elevated and accessible for stock rotation - first-in-first-out principle applies.
  • Waste Disposal Area: Designated bin zone with leisurely entree for casual cleansing.

Integrating storage into the flooring plan check that cloth flow smoothly from reception to use, minimizing postponement and contamination hazard.

Note: Use perpendicular space wisely - tall table with proper support prevents prostration and maximize content.

Traffic lanes between storage and workstation should be wide enough for carts or streetcar, preventing constriction during busy period.

Customer Experience and Retail Layout

Beyond production, a bakehouse story programme shapes how customers perceive and interact with the space. The exhibit area is oft the initiatory impression - glass instance, warm light, and esthetic agreement draw attention and build trust.

Inside the retail zone:

  • Arrange merchandise by category - breads, pastry, cakes - for visceral browsing.
  • Use eye-level ledge for premium items and lower levels for bulk or seasonal goods.
  • Include seat if space permit, encouraging customers to tarry.
  • Property signage intelligibly to foreground special, allergens, and sourcing storey.
  • Ensure check is unobstructed and visually appealing to cut rubbing.

A well-designed retail layout increase dwell clip, boosts sale, and strengthens marque identity.

Tone: Rotate displays regularly to keep visual interest and upgrade new or seasonal items.

Lighting in customer areas should be soft and inviting, avoiding harsh limelight that distracts from product detail. Mirrors or reflective surface can enhance perceived space and highlight production quality.

Compliance and Safety Standards

Cleave to local health and safety regulations is fundamental in bakeshop design. Floor must be slip-resistant, easygoing to pick, and compliant with availability jurisprudence. Emergency exits, flaming extinguishers, and first-aid kits should be distinctly marked and accessible.

Sanitation zones - separate from food prep - prevent cross-contamination. Handwashing stations with scoop dispensers and theme towels must be handily located throughout the floor programme.

Veritable audits ascertain ongoing abidance, protect both staff and frequenter.

Note: Agenda periodic inspections to verify adherence to building codes and health department guideline.

Every zone should support quick cleaning cycles and moderate spill-prone area with protective barriers.

Flexibility for Growth and Adaptation

A forward-thinking bakery base plan anticipates change. Modular furniture, transferable partition, and scalable equipment allow leisurely reconfiguration as line evolves. Whether expanding merchandise lines, inclose new technologies, or adjusting space use, tractability secure long-term viability.

Consider succeeding needs such as:

  • Adding a second oven or infrigidation unit.
  • Incorporate automatise packaging lines.
  • Expanding show infinite for large orders.
  • Upgrading technology with smart monitor system.

Designing with adaptability in mind reduces gap and investment costs during development stage.

Note: Leave soften space - approximately 10 % of entire area - for unexpected elaboration or restoration.

Commit in scalable infrastructure today prepares the bakehouse for tomorrow's demands.

Final Thoughts: Crafting a Bakery Floor Plan That Works

A well-designed bakehouse floor design is more than a blueprint - it's the substructure of day-by-day success. By thoughtfully partition space, optimizing equipment flow, integrating light and airing, design storage and retail layouts, and prioritise guard and compliance, you create an environment where efficiency, hygiene, and customer delectation coexist. Flexibility ensures longevity, allowing your bakeshop to turn and adapt with self-confidence. With heedful planning and attention to detail, your floor plan becomes a knock-down tool that raise every scene of your operation - from dough to doorstep.

Related Terms:

  • small bakeshop storey plan design
  • bakeshop floor plan template
  • bakehouse workshop mere storey plan
  • pocket-sized bakeshop layout base plan
  • layout of a pocket-size bakehouse
  • bakeshop floor design dwg