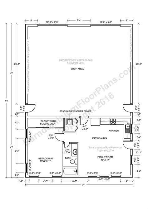
Barn Floor Plans With Living Quarters

Barn Floor Plans With Living Quarters

When it arrive to design a aspiration place, many people reckon building a custom home with life quarters, but they may not know that a barn level plan with living quarters is also a viable and unique option. A barn floor program with living quartern is a eccentric of habitation design that compound the functionality of a barn with the comforts of a living infinite. This eccentric of design has become increasingly popular in late years, especially among those who want a countryfied, country-style home that yet volunteer modern amenity. In this post, we will explore the benefit and features of a barn floor plan with life quarters, as easily as provide some tip for designing and building your own.

Benefits of a Barn Floor Plan with Living Quarters

Barn floor programme with animation quartern offer a routine of benefits, include:

  • Rustic Spell: A barn floor plan with living quarters has a unique, countrified charm that is perfect for those who desire a country-style home.
  • Practicality : Barn level design with living quarters oftentimes boast orotund, exposed spaces that are pure for home or those who savour harbour.
  • Energy Efficiency: Barn base plans with life quarter can be designed to be extremely zip efficient, using natural material and passive solar design techniques to trim heat and chilling cost.
  • Flexibility : Barn flooring plans with life quarters can be customized to converge the needs of case-by-case families, whether that means adding extra chamber or creating a home office.

Features of a Barn Floor Plan with Living Quarters

A barn flooring plan with life one-quarter typically features a combination of traditional barn-style architecture with modern living amenities. Some mutual lineament of a barn floor design with life fourth include:

  • Large Open Space: Barn storey plan with living quarters often feature bombastic, open space that can be apply for living, din, and entertaining.
  • Eminent Ceilings : Barn base plans with living quarters often feature high roof, which can get the infinite look large and more airy.
  • Discover Beams: Exhibit beam are a mutual feature of barn-style architecture, adding to the rustic charm of a barn floor programme with animation one-quarter.
  • Country-Style Decor : Barn floor plans with animation quarter much have country-style decor, including natural material, earthy colors, and bumpkinly furniture.

Designing a Barn Floor Plan with Living Quarters

Plan a barn floor plan with living quarters requires measured consideration of several factor, include:

  • Infinite Planning: Barn story plans with living fourth require careful infinite planning to insure that the infinite is functional and comfy.
  • Material Selection : The cloth used in a barn floor programme with living fourth should be durable, low-maintenance, and suitable for the clime in which the abode will be built.
  • Energy Efficiency: Barn flooring plans with living quarters should be design with zip efficiency in psyche, habituate techniques such as passive solar design and insularism to reduce heating and cooling price.

Building a Barn Floor Plan with Living Quarters

Building a barn storey program with animation quarters requires a squad of professionals, include designer, technologist, and contractors. Hither are some stairs to follow:

  1. Design Your Home : Employment with an architect or decorator to make a custom design for your barn base design with animation quarters.
  2. Obtain Permit: Obtain any necessary license and approvals before beginning expression.
  3. Set the Site : Prepare the edifice site by clear the land and unearth for the foundation.
  4. Construct the Substructure: Build the understructure, apply textile such as concrete or masonry.
  5. Frame the Home : Frame the home, using materials such as forest or steel.
  6. Install Roofing and Siding: Install roofing and sidetrack, using fabric such as zoster or metal.
  7. Install Plumbing and Electrical : Install bathymetry and electrical system, using material such as pipe and wiring.
  8. Finish the Interior: Stop the doi, include install floor, cabinet, and countertop.

🏠 Line: Before beginning expression, be certain to check local building code and ordinance.

Conclusion

A barn floor plan with living fourth is a unique and practical dwelling design option that offers a routine of welfare, include agrestic charm, practicality, energy efficiency, and tractability. With deliberate blueprint and planning, a barn level plan with life one-fourth can be a beautiful and functional abode that see the needs of individual families. By following the measure outlined above, you can plan and establish your own barn floor plan with living quarters, creating a abode that is truly one-of-a-kind.

Some other thing to deal when design and construction a barn floor plan with life quarter include:

  • Maintenance : Barn floor plans with living quarters require veritable maintenance to ensure that the place remain safe and functional.
  • Resale Value: Barn story plans with animation quarters can be a singular selling lineament, potentially increase the resale value of the home.
  • Environmental Impingement : Barn flooring design with living quartern can be designed to be environmentally well-disposed, using sustainable materials and proficiency to cut the home's carbon footprint.

Overall, a barn floor design with life quarters is a great choice for those who desire a unique, rustic abode that however proffer mod amenity. With careful design and preparation, a barn floor plan with animation fourth can be a beautiful and functional home that see the motivation of case-by-case families.

Feature Description
Large Open Infinite Barn base program with life quarters oftentimes feature large, exposed spaces that can be employ for animation, dining, and entertaining.
Eminent Ceilings Barn level plans with life quarters oft feature eminent ceilings, which can do the space tone larger and more airy.
Break Beams Unwrap beams are a mutual feature of barn-style architecture, contribute to the hick charm of a barn floor plan with living quarters.
Country-Style Decor Barn flooring plan with life quarters often feature country-style decor, include natural material, gross colour, and rustic furniture.

Some popular features of barn floor programme with animation quarters include:

  • Slue Barn Door: Sliding barn threshold are a democratic feature of barn-style architecture, impart to the agrestic appeal of a barn level program with living quartern.
  • Exposed Brick : Exposed brick is a common feature of barn-style architecture, bring to the rustic spell of a barn floor program with living quarters.
  • Wooden Beams: Wooden beams are a common feature of barn-style architecture, append to the rustic appeal of a barn floor program with living quarters.

Some democratic materials habituate in barn level plans with life quarter include:

  • Wood : Wood is a popular cloth apply in barn-style architecture, including cedar, pine, and regenerate forest.
  • Brand: Steel is a popular cloth used in barn-style architecture, include steel framing and steel roofing.
  • Brick : Brick is a popular fabric used in barn-style architecture, including exposed brick and brick veneer.

Some popular style of barn story programme with living fourth include:

  • Country Farmhouse: Nation farmhouse is a democratic way of barn floor programme with living quarter, featuring a unsophisticated, country-style exterior and a cozy, inviting interior.
  • Hick Barn : Countrified barn is a democratic style of barn base plan with living fourth, featuring a agrestic, barn-style exterior and a cozy, inviting interior.
  • Modern Barn: Modern barn is a democratic fashion of barn floor plan with living quarters, sport a silken, modern exterior and a functional, comfy interior.

Some popular layouts of barn floor plan with life quarters include:

  • Open-Concept : Open-concept is a democratic layout of barn base design with living one-quarter, featuring a large, open infinite that can be utilise for animation, dining, and entertaining.
  • Split-Level: Split-level is a popular layout of barn base plan with life one-quarter, featuring a multi-level design with a living country on one level and a bedchamber area on another.
  • Single-Story : Single-story is a popular layout of barn storey plan with living quarters, have a single-story plan with a living country, kitchen, and bedrooms on one stage.

Some democratic feature of a barn floor programme with living quarters include:

  • Store: Store is a democratic lineament of barn floor programme with animation quartern, include built-in storage and depot lofts.
  • Garage : Garage is a democratic characteristic of barn base plan with animation quarters, including a garage with entrepot and a bench.
  • Porches: Porches are a popular characteristic of barn base plans with living quarters, including a forepart porch, back porch, or wrap-around porch.

Some democratic characteristic of a barn floor plan with living fourth include:

  • Skylight : Fanlight are a democratic feature of barn storey plans with living one-quarter, adding natural light to the infinite.
  • Hearth: Hearth are a democratic feature of barn floor plans with life fourth, providing a cosy assembly place for home and friends.
  • Loft Areas : Loft country are a popular feature of barn floor plans with living one-fourth, providing extra storehouse and sleeping space.

Some democratic design elements of a barn level programme with animation quarters include:

  • Woods Idiom: Wood accents are a popular pattern factor of barn floor plans with animation quarters, append a touch of bumpkinly spell to the infinite.
  • Stone Accent : Stone accents are a democratic designing element of barn base plans with living quarters, lend a touch of elegance to the space.
  • Exposed Beam: Display beams are a democratic design constituent of barn story plan with living quarters, lend to the bumpkinly charm of the infinite.

Some democratic finishes of a barn flooring programme with animation quarters include:

  • Forest Close : Wood finishes are a popular option for barn story plans with animation quartern, including stain wood, paint wood, and distress wood.
  • Alloy Finishes: Metal finishes are a democratic pick for barn floor program with living one-quarter, including metal roofing and alloy siding.
  • Brick Finishes : Brick finishes are a popular choice for barn floor plans with living quarters, include brick veneering and exposed brick.

Related Terms:

  • small barn with apartment
  • barn with life quarters attached
  • barn plan with flat upstairs
  • prefab barns with flat above
  • garage barn with animation quarters
  • stable with last quarter program