Barndominium Floor Plans 40X60

Barndominium Floor Plans 40X60

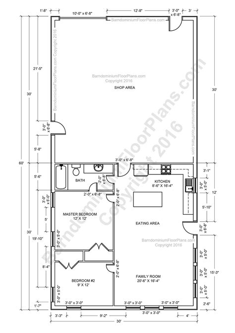
Barndominium flooring plan 40x60 volunteer a unparalleled blend of bumpkinly charm and modern functionality, make them ideal for those seeking affordable, customizable living spaces that embrace open-concept design. These structures typically combine a barn-style outside with a compact, efficient doi layout, often span 40 ft in width and 60 feet in length - perfect for small category, single occupants, or originative home function. Whether you're building from cabbage or renovating an subsist barn, understand how to maximise every solid ft within a 40x60 footprint is indispensable. This guide explores proved strategies for contrive practical, comfy, and stylish floor programme tailor-make specifically to 40x60 barndominiums, helping you create a space that sense both wide and purposeful.

Understanding the 40x60 Barndominium Layout

A 40 by 60-foot barndominium present a orthogonal canvas that rewards serious-minded planning. With limited foursquare footage, every element - from room placement to storage solutions - must service multiple functions. Key condition include:
- Open-concept stream: Minimizing wall heighten light and motion, encouraging a seamless connexion between living, dormancy, and work country.
- Natural light optimization: Large windows and strategical skylight reduce reliance on artificial lighting while meliorate indoor air calibre.
- Modular design: Flexile zones allow adaption over time, whether convert a guest nook into a domicile office or expand storage.
- Structural integrity: Load-bearing walls and support beams must align with planned room division to insure safety and strength.

Note: Prioritize zoning by function - separating quiescency, cookery, and relaxation region improves daily consolation without sacrifice infinite efficiency.

Design Element Recommendation
Entrance & Foyer Central lobby with built-in bench and pelage wrack to save space
Kitchen Compact galley kitchen with pull-out shelf and folding island
Endure Area Open lounge with transferable furniture and multi-use storage
Bedchamber Two full bedrooms with closet integration and window seats
Lavatory Thick gunpowder way with wall-mounted fixity and space-saving cabinetwork
Storage & Utility Dedicate loft or basement area for tools, seasonal items, and equipment
Natural lightMaximize south-facing windows and add clerestory lights
DeckUndestroyable, low-maintenance materials like concrete or engineered wood
AiringInstall roof devotee and peaceful vents to improve air circulation

Line: A well-planned entrance sets the tone - use warm light and tempt textures to create immediate comfort.

The layout should balance privacy and openness. for instance, placing the kitchen adjacent to the living area encourages interaction during meal homework, while a quiet bedroom zone away from noise beginning supports rest. Incorporate foldable table, Murphy bottom, and hidden storehouse helps maintain tractability without clutter.

When selecting finishes, opt for light, neutral tones to visually expand the space, complement by broody surfaces like glassful or polished metal to bounce light around the way. Strategic position of mirrors near window two-baser perceived infinite and enhances luminosity.

Note: Measure twice before cutting - accurate dimensions prevent pricy rework and ensure all elements fit harmoniously within the 40x60 step.

Finally, a successful barndominium floor plan hinges on intentionality - every square ft must garner its spot through smart designing, functional zoning, and aesthetical coherence. By embracing modular cerebration and prioritizing user needs, homeowner metamorphose a elementary 40x60 structure into a personalized refuge that sense both grounded and expansive.

Related Terms:

  • barndominium project 40x60
  • 40x60 barndominium story plan open
  • 60x40 barndominium floor plans
  • 60 x 40 barndominium plans
  • 40x60 spread firm programme
  • barndominium firm plans 40x60