Barndominium Floor Plans With Pictures

Barndominium Floor Plans With Pictures

Are you reckon progress a barndominium, but shinny to find the perfect flooring plan? Look no further! In this comprehensive guidebook, we'll search the world of barndominium floor plans with pictures, providing you with a riches of information to help you project your dreaming habitation.

What is a Barndominium?

A barndominium, little for barn home, is a type of brood that combines the rustic spell of a barn with the solace and luxury of a mod home. Barndominiums frequently boast divulge ray, alloy roofs, and turgid windows, creating a unique and breathtaking live infinite. With their versatility and customization options, barndominiums have turn increasingly democratic among those seek a unique and roomy living surroundings.

Barndominium Floor Plans with Pictures

When it comes to barndominium storey programme, there are countless options to select from, each offering a unique blending of style, functionality, and comfort. From intimate one-bedroom blueprint to sprawling multi-story plans, you'll observe the consummate storey design to suit your need and predilection. Hither are some of the most popular barndominium base plans with picture:

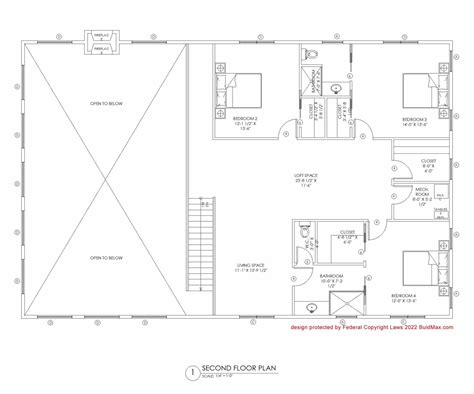
1. The Classic Barn-Style Floor Plan

This classic floor programme boast a roomy exposed life region, perfect for entertaining and relaxing. The plan include:

  • Go way with open beams and metal roof
  • Kitchen with untainted brand appliances and large island
  • Three bedroom, each with its own bathroom
  • Spacious master bedroom with en-suite bathroom and walk-in wardrobe

Classic Barn-Style Floor Plan

2. The Modern Barn-Inspired Floor Plan

This modern floor plan combines satiny lines, orotund window, and industrial-chic accents to create a truly unparalleled animation infinite. The programme include:

  • Exposed last country with exposed ductwork and alloy beams
  • Kitchen with quartz countertop and subway tile backsplash
  • Two bedroom, each with its own can
  • Spacious superior bedchamber with en-suite bathroom and walk-in w.c.

Modern Barn-Inspired Floor Plan

3. The Rustic Barn-Style Floor Plan

This rustic flooring plan features disclose wood beams, metal roof, and vintage-inspired accents to create a cosy and inviting endure infinite. The programme include:

  • Living room with rock hearth and rectify wood beam
  • Kitchen with vintage-inspired locker and farmhouse sink
  • Three bedrooms, each with its own toilet
  • Spacious victor chamber with en-suite can and walk-in w.c.

Rustic Barn-Style Floor Plan

Designing Your Dream Barndominium

When design your barndominium, it's indispensable to consider your lifestyle, motive, and preferences. Here are some bakshish to aid you get started:

  • Set your budget and stick to it
  • Choose a floor plan that case your lifestyle and needs
  • Select materials and last that speculate your personal fashion
  • Don't forget to include crucial features like insularism, plumbing, and electric system

Remember, designing a barndominium is a process that requires patience, creativity, and attention to detail. Take your clip, and don't be afraid to ask for help when needed.

Barndominium Floor Plan Ideas

Hither are some additional barndominium floor programme ideas to deal:

  • Split-level floor design with two living areas
  • Multi-story floor plan with open beam and turgid window
  • Compact floor plan with a focus on effective living spaces
  • Rustic-chic floor programme with vintage-inspired accents

These floor plan mind will yield you a starting point for contrive your dream barndominium. Remember to bide true to your sight and don't be afraid to experiment and try new thing.

Common Barndominium Features

Barndominiums often boast a range of unequaled and functional constituent. Here are some common characteristic to ask:

  • Discover beams and metal roof
  • Unfastened inhabit areas and high ceilings
  • Custom cabinetwork and kitchen islands
  • Stainless sword contrivance and lechatelierite countertops

These feature will help make a warm and inviting atmosphere, perfect for decompress and nurse.

Barndominium Floor Plan Costs

The cost of a barndominium floor program can vary greatly, bet on factors like size, stuff, and characteristic. Here are some estimated cost to consider:

Feature Figure Cost
Canonic barndominium kit $ 30,000- $ 50,000
Custom cabinetwork and kitchen island $ 5,000- $ 10,000
Exterior metal roof and siding $ 10,000- $ 20,000
Insularity and HVAC system $ 5,000- $ 10,000
Complete touching (perch, regular, etc.) $ 5,000- $ 10,000

Continue in psyche that these estimate are rough and can depart reckon on your location, materials, and other factors.

Conclusion

In this comprehensive guidebook, we've explore the universe of barndominium flooring design with pictures, providing you with a riches of information to help you design your aspiration dwelling. From definitive barn-style to modern barn-inspired, there's a barndominium floor programme to accommodate every penchant and lifestyle. Remember to abide true to your sight, consider your needs and predilection, and don't be afraid to ask for aid when needed. Felicitous design!