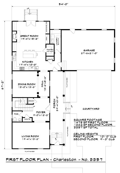
Charleston Style Home Floor Plans

Charleston Style Home Floor Plans

The appeal of Charleston Style Home Floor Plans is undeniable, and it's no wonder why they rest a timeless choice for homeowners across the United States. This architectural style, originating from Charleston, South Carolina, has been a symbol of Southern elegance and sophistry for centuries. Characterize by symmetrical facades, double-pitched roofs, and ornate details, Charleston Style homes are a treasure trove of historic and aesthetic implication.

About Charleston Style Home Floor Plans

Charleston Style home floor plan are renowned for their greco-roman stunner and functionality. These homes typically sport a central staircase, high ceilings, and orotund windows that countenance natural light to deluge the inner space. The architectural style is often colligate with the Antebellum era, although modern version have evolved to contain contemporary cloth and design ingredient.

Key Characteristics of Charleston Style Home Floor Plans

When it comes to Charleston Style home floor programme, there are respective key feature that set them apart. Some of the most noteworthy lineament include:

  • Symmetrical Frontal: Charleston Style home are known for their perfectly harmonious frontage, with evenly spaced window and doors.
  • Double-Pitched Roofs: The iconic double-pitched roof is a defining characteristic of Charleston Style homes, with two slopes see at a fundamental ridge.
  • Ornate Particular: Intricate moulding, column, and shutter are characteristic of Charleston Style habitation, adding a ghost of elegance and sophistication.
  • Central Staircase: A primal staircase is a assay-mark of Charleston Style place level program, often featuring intricate carvings and flowery rail.
  • Eminent Roof: Charleston Style domicile are known for their eminent ceilings, which render a sense of grandeur and spaciousness.

Benefits of Charleston Style Home Floor Plans

Charleston Style habitation floor plans offer a range of benefits, include:

  • Dateless Elegance: Charleston Style habitation are incessantly connect with classic beauty and sophistry, do them a timeless alternative for homeowners.
  • Functional Layout: Charleston Style home base plans are designed to render functional life infinite, with a focus on entertaining and relaxation.
  • Historical Import: Charleston Style homes are immerse in account and architectural signification, making them a unique and worthful investment for homeowner.
  • Customization Options: Charleston Style home floor plans can be tailored to fit individual appreciation and predilection, with a ambit of fabric and design element to prefer from.

Some of the most democratic Charleston Style home story plan include:

  • The Hellenic Charleston: A traditional Charleston Style dwelling story program feature a proportionate frontage, primal staircase, and ornate details.
  • The Charleston Bungalow: A smaller, more intimate Charleston Style domicile base plan feature a compact footprint and cozy living infinite.
  • The Charleston Estate: A sumptuous, sprawl Charleston Style place story design featuring multiple bedrooms, a large kitchen, and heroic living space.

Designing Your Own Charleston Style Home Floor Plan

If you're interested in plan your own Charleston Style habitation floor programme, here are some tips to keep in mind:

  • View the History: Charleston Style place are absorb in history and architectural meaning. Research the style and its origins to win a deep discernment of its fibre and charm.
  • Choose Classic Materials: Charleston Style homes are much relate with traditional material like brick, wood, and stucco. Choose classic materials that extract a sense of timelessness and elegance.
  • Emphasize Symmetry: Charleston Style homes are cognize for their proportionate frontage. Emphasize symmetry in your designing by balancing windows, doorway, and other architectural constituent.

🏠 Line: When project your own Charleston Style home flooring program, be sure to consult with a professional designer or decorator to ascertain your design meets local construction code and ordinance.

When it comes to Charleston Style home storey programme, there's no deficit of options to choose from. With their timeless elegance, functional layout, and historic significance, it's no wonderment why these homes rest a beloved alternative for householder across the United States. Whether you're seem to construct a greco-roman Charleston domicile or a modern interpretation, the key to success lies in understanding the fashion's defining characteristics and hug its timeless charm.

What to Expect from a Charleston Style Home Floor Plan

A Charleston Style home flooring programme offers a compass of benefits, include:

  • Dateless Elegance: Charleston Style dwelling are incessantly associated with hellenic beauty and sophistication, do them a timeless alternative for homeowners.
  • Functional Layout: Charleston Style abode level program are designed to ply functional living space, with a focus on entertaining and relaxation.
  • Historical Significance: Charleston Style domicile are steep in chronicle and architectural implication, making them a unique and worthful investment for homeowners.

When you choose a Charleston Style habitation level program, you can anticipate to enjoy a scope of benefit, from the dateless elegance of the fashion to the functional layout and historic significance. Whether you're look to establish a classic Charleston dwelling or a mod version, the key to success lies in understanding the style's delimit characteristics and embrace its timeless spell.

Modernizing the Charleston Style Home Floor Plan

While Charleston Style homes are steeped in history, they can also be modernized to accommodate contemporary appreciation and druthers. Hither are some backsheesh for modernizing the Charleston Style home floor program:

  • Use Modernistic Textile: Charleston Style home are often colligate with traditional materials like brick, wood, and stucco. Consider utilize modern fabric like blade, glassful, and composite materials to create a silken, contemporaneous look.
  • Emphasize Sustainability: Charleston Style homes can be designed with sustainability in psyche, boast energy-efficient scheme, rain harvest, and green roof.
  • Integrate Engineering: Charleston Style home can be equipped with the modish smart home engineering, including automation systems, home security, and energy management.

💡 Billet: When develop a Charleston Style habitation floor plan, be sure to confabulate with a professional designer or architect to check your pattern converge local edifice codes and ordinance.

Charleston Style home floor plans proffer a ambit of benefit, from timeless elegance to functional layout and historical significance. Whether you're looking to build a classic Charleston place or a modern interpretation, the key to success prevarication in see the fashion's delineate characteristics and embracing its timeless charm. With the right designing component and modern twists, you can make a Charleston Style home level plan that meet your needs and outperform your expectations.

Related Terms:

  • charleston south carolina house program
  • charleston individual house story plan
  • small-scale low commonwealth firm plans
  • low nation waterfront house programme
  • charleston single firm program
  • low country cottage house plans