A well-designed church story program is indispensable for creating a functional and welcoming space for worshipers, community event, and other activities. Whether you're a church administrator, designer, or member of the congregation, understanding the importance of a well-planned floor layout can facilitate you make informed decisions about the use and ontogenesis of your church facilities.
Understanding Church Floor Plan Basics
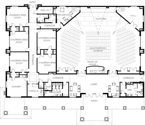
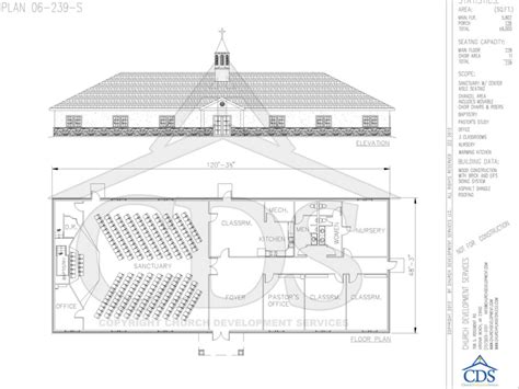
A distinctive church level plan includes various component such as pews, altars, font, narthexes, and fellowship halls. When plan or repair a church, it's all-important to consider the need of your congregation, include the stream of traffic, accessibility, and acoustics. A well-designed flooring plan can also affect the esthetical appeal and overall atmosphere of the infinite.
Church Floor Plan Elements
Some common elements of a church floor program include:
- Pews: Sit areas for worshiper, ofttimes arranged in a specific practice to help worship and community interaction.
- Altar: The central program for worship services, typically place at the front of the church.
- Baptistery: A designated area for baptismal services, frequently situate near the altar.
- Narthex: A transitional infinite between the exterior and interior of the church, oftentimes used for receive visitor and help the transition to adoration.
- Fellowship Hall: A societal region for community gatherings, meals, and other events.
- Office and Administrative Space: Areas for church faculty, administrative undertaking, and encounter.
- Classrooms and Education Infinite: Areas for educational programme, Bible studies, and other community action.
- Restrooms and Accessibility Characteristic: Essential facilities for worshipers, including approachable convenience and entrances.
Designing a Church Floor Plan
When project a church floor plan, consider the following key factor:
- Worship Space Layout: Arrange seating and worship factor to help adoration, community interaction, and easy accession to the altar.
- Traffic Stream: Plan the stream of traffic to ascertain safe and efficient motility throughout the church.
- Availability: Incorporate incline, elevators, and approachable restrooms to check equal access for all believer.
- Acoustics: Consider sound absorption and reflection to create an optimum acoustic environs for adoration and address.
- Perch: Balance natural and unreal light to make a welcoming and inclusive atmosphere.
- Depot and Utility Areas: Designate space for storehouse, maintenance, and utility functions to conserve a safe and functional environs.
Church Floor Plan Design Tips
To make a well-designed church level programme, consider the following hint:
- Consult with Congregation Members: Engage with your congregating to translate their want, orientation, and expectations.
- Assess the Site and Existing Buildings: Evaluate the situation, survive building, and skirt conditions to inform your blueprint decisions.
- Balance Functionality and Aesthetic: Strike a balance between the pragmatic needs of the church and its esthetical charm.
- Study Phased Construction and Renovation: Break down large project into accomplishable phases to accommodate budget restraint and minimize disruptions.
📚 Note: When contrive a church level design, it's essential to consult with local building code, zone regulations, and architectural standards to see compliance and avoid potential issues.
Best Practices for Church Floor Plan Maintenance
To preserve a functional and welcoming church story plan, consider the following good practice:
- Schedule Regular Alimony: Regularly inspect and preserve the church's facility, include plumbery, electrical scheme, and HVAC.
- Implement Energy-Efficient Result: Consider energy-efficient light, HVAC, and other systems to trim get-up-and-go consumption and costs.
- Maintain Accessibility Features: Regularly inspect and maintain approachability features, including ramp, lift, and approachable restrooms.
- Engage with the Faithful: Further faithful members to describe any maintenance concern or issues to assure a safe and welcoming surroundings.
💡 Note: Regular upkeep can aid extend the life of church facilities, reduce alimony costs, and create a more welcoming environs for worshipers.
Church Floor Plan Renovation and Expansion
Renovating or expand a church floor plan can be a complex operation, but it can also provide opportunity for growth and betterment. When reckon restoration or expansion, reckon the undermentioned ingredient:
- Assess the Want for Renovation or Elaboration: Value the church's needs, budget, and finish to set if renovation or expansion is necessary.
- Consult with Architect and Engineer: Engage with professionals to assess the site, be buildings, and surrounding weather to inform design decisions.
- Evolve a Phased Renovation Program: Break down big projects into achievable form to suit budget constraint and minimize commotion.
- Communicate with Congregation Members: Engage with your congregation to read their needs, penchant, and anticipation during the restoration or expansion process.
📈 Note: Renovating or expand a church level design can be a significant undertaking, but it can also provide opportunities for growth, improvement, and increase community appointment.
Conclusion
A well-designed church flooring design is essential for creating a functional, welcoming, and inclusive infinite for worshipper, community events, and other activities. By regard the motive of your congregation, balancing functionality and aesthetics, and apply better drill for upkeep and renovation, you can make a church flooring plan that meet the demand of your community and serve as a beacon of promise and connecter.
Embedding Images

Additional Tips
Remember to regard the next additional lead when plan or revivify a church storey plan:
- Engage with Local Say-so: Consult with local building authorities, zoning regulations, and architectural criterion to see compliance.
- Consider Sustainable Designing: Incorporate sustainable blueprint component, such as energy-efficient scheme and recycled cloth, to cut the church's environmental encroachment.
- Develop a Maintenance Plan: Constitute a alimony programme to see veritable upkeep and care of the church's facilities.
Related Damage:
- complimentary church building floor programme
- catholic church floor programme
- simple church building plan idea
- chapel flooring plan
- simple church design design
- gratuitous church floor programme designs