Community Center Floor Plan

Community Center Floor Plan

When it arrive to design a community middle, the floor design is one of the most crucial aspects to consider. It's the pattern for the entire facility, and it will directly touch how users interact with the space. A well-designed floor plan can make all the deviation in creating a welcoming and functional community center that see the motivation of its user.

Community Center Floor Plan: A Guide to Designing an Effective Space

A good community center base plan should consider the want of various users, including senior, children, and citizenry with disabilities. It should also contain features that boost societal interaction, physical activity, and educational chance.

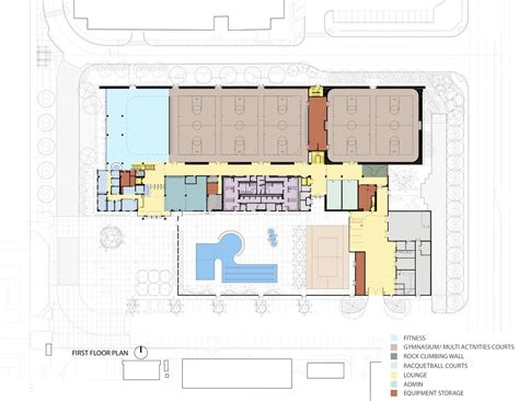
Key Components of a Community Center Floor Plan

When design a community eye base plan, there are respective key components to consider:

  • Lobby and Reception Area: This is the maiden impression exploiter will get of the community center, so it's essential to make it welcome and functional.
  • Multipurpose Room: This room should be designed to accommodate a potpourri of activity, such as meetings, classes, and event.
  • Activity Areas: These can include infinite for arts and crafts, music, and physical action, such as a gym or dance studio.
  • Kitchen and Dining Area: A full equip kitchen and boom region can be habituate for nutrient provision and consumption, as good as for cooking class or other educational programs.
  • Youth Lounge: A designated area for teenagers to socialise, unwind, and prosecute in activities.
  • Outdoor Space: A community center floor plan should also include outside infinite, such as a terrace or playground, to provide users with opportunities for physical action and socializing.

Design Considerations

When designing a community centre floor design, there are several key considerations to keep in mind:

  • Availability: The flooring plan should be project to be approachable to users with disabilities, including wheelchair-accessible entry, ramps, and restrooms.
  • Natural Light: Decent natural light can better the humor and productivity of exploiter, so consider incorporating skylight or large window into the designing.
  • Acoustics: A well-designed acoustics system can improve the overall sound caliber in the community centerfield, reducing reverberation and background disturbance.
  • Ergonomics: The floor design should be designed to promote good posture and reduce the risk of wound, particularly in area with high-impact activity.

Community Center Floor Plan Layout Ideas

Hither are some community center floor program layout idea to consider:

Layout Description
Additive Layout This layout sport a linear procession of infinite, with each area feed into the succeeding.
Hub-and-Spoke Layout This layout have a central hub, surrounded by radiating "rundle" of action areas.
Clustering Layout This layout features groups of activity region clustered together, with mutual spaces in between.

Community Center Floor Plan Dimensions

The property of a community center story plan will depend on the specific motive and goals of the installation. However, hither are some general guideline to study:

Multipurpose Room: 20-30 feet wide x 40-60 foot long (600-1800 square feet)

Activity Areas: 15-25 pes wide x 20-30 foot long (300-750 square pes)

Kitchen and Dining Area: 15-25 feet all-embracing x 20-30 feet long (300-750 foursquare feet)

Conclusion

A well-designed community center flooring programme is essential for make a welcoming and functional space that meets the needs of its user. By considering key components, design consideration, and layout ideas, you can create a storey program that promotes societal interaction, physical action, and educational chance.

Remember: A community middle base design is a life document that should be regularly critique and updated to guarantee it continue effective and relevant.

📚 Note: This blog situation is destine to provide general direction and should not be view a relief for professional advice from an designer or decorator.

💡 Line: Consider integrate green space, such as a rooftop garden or community garden, into your community middle floor plan to raise sustainability and community engagement.

📊 Note: Be sure to conduct a thorough feasibility work and conduct marketplace enquiry to ensure your community centerfield floor plan encounter the needs and expectation of your prey audience.

Related Terms:

  • community middle plans and pattern
  • community centre infinite requirement
  • layout of a community centerfield
  • small-scale community center floor program
  • community hub floor program
  • livelihood center story plan