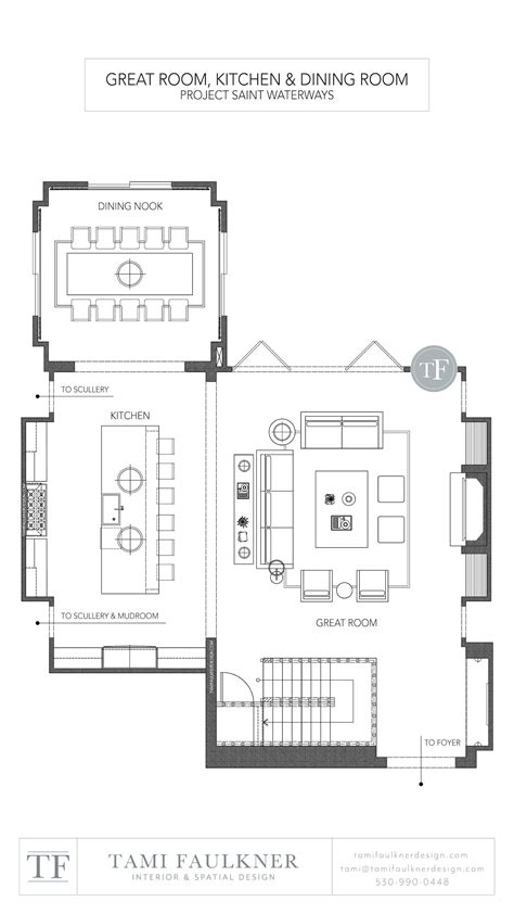
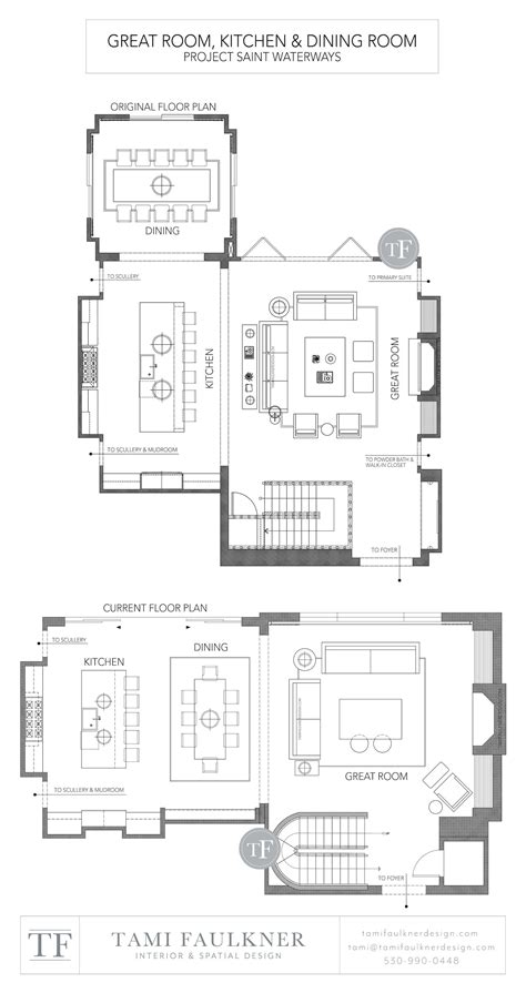
Dining Room Floor Plan

Dining Room Floor Plan

Boom way are the nerve of every place, where family and friends gathering to share repast, laughter, and unforgettable moments. A well-designed dining room floor plan can make all the difference in creating a warm and tempt atmosphere that fosters link and togetherness. In this article, we'll dig into the world of din room floor plans, explore the essential elements to take when designing your dream dining infinite.

Understanding the Importance of Dining Room Floor Plans

A dining way floor programme is more than just a pattern for your dining infinite - it's a cautiously thought-out pattern that direct into account the unparalleled needs and predilection of your household. A well-planned dining way can:

  • Heighten the functionality of your space
  • Increase the sense of solace and coziness
  • Create a seamless flow between adjacent rooms
  • Showcase your personal mode and aesthetic

Before we dive into the specifics of project a dining room floor plan, it's essential to consider the undermentioned factors:

  • Dining table sizing and shape
  • Induct capacity and comfort
  • Illumine and electric need
  • Entrepot and cabinetry requisite
  • Architectural features and pattern elements

Measuring and Mapping Your Dining Room

To make an accurate and effectual dining room floor plan, you'll want to take accurate measure of your din infinite. Measure the length, width, and any obstructions, such as threshold, windows, or column. Use a taping bill or a measuring app on your smartphone to control accuracy.

Erstwhile you have your measurements, use graph newspaper or a digital drafting tool to create a scaled drawing of your dining room. Consider the following when mapping your infinite:

  • Door and window placement
  • Electrical outlet and substitution
  • Furniture placement and move
  • Any architectural features or design elements

Considering Furniture and Layout Options

When project your dining room floor design, it's essential to deal the size, shape, and layout of your furniture. Imagine about the pursual:

  • Boom table size and chassis: A round table can create a cosy, intimate atmosphere, while a long, orthogonal table can adapt big gatherings.
  • Seating capacity and comfort: Consider the number of citizenry you'll be seating and the degree of solace you want. Will you involve additional seating option, such as judiciary seats or a banquette?
  • Light and electric needs: Imagine about the type of illuminate you'll necessitate to create a warm and inviting ambiance. Will you demand extra outlets for lamps, pendant light, or other decorative fixtures?

Storage and Cabinetry Requirements

Boom room often have specific storage and cabinetwork needs. Consider the following:

  • Cabinet infinite: Do you demand storage for dinnerware, glassware, or cookbooks?
  • Countertop infinite: Will you require extra counter space for nutrient preparation or portion?
  • Wine entrepot: If you're a wine-coloured enthusiast, consider incorporating a wine fridge or wine depot unit into your design.

Architectural Features and Design Elements

Your dining way floor plan should also consider any architectural features or design element that will touch the layout and functionality of your infinite. Consider the following:

  • Columns and beam: Will these structural elements regard the placement of furniture or the flowing of traffic?
  • Fireplaces and wood-burning stove: If you have a fireplace or wood-burning stove, consider the headway requirements and any necessary airing.
  • Window and fanlight: Will these natural light origin impact the light pattern and layout of your infinite?

Finalizing Your Dining Room Floor Plan

Erst you've view all the essential elements, it's clip to finalize your din way floor plan. Use your measurements and blueprint constituent to make a scaled drawing or digital interpreting of your infinite. Be sure to include:

  • Furniture and habitue position
  • Lighting and electric elements
  • Storehouse and cabinetry necessary
  • Architectural characteristic and pattern factor

Common Dining Room Floor Plan Mistakes to Avoid

While designing your dining room floor programme, be mindful of the following common mistakes:

  • 📝 Billet: Measuring your space incorrectly can leave to a badly designed flooring programme. Double-check your measurements to control accuracy.

  • 📸 Billet: Miscarry to account for architectural features and design ingredient can result in a layout that's difficult to navigate or aesthetically delight.

  • 💡 Line: Ignoring lighting and electrical motivation can lead to a infinite that's poorly lit or unmanageable to use.

Embarking on the Design Process

With your dining way base plan in place, it's time to part designing your ambition dine space. Remember to have fun and be creative! Consider the chase:

  • Personal style and esthetic: Think about the style and decor you need to reach in your dining way. Will you opt for a mod, minimalist expression or a traditional, formal air?
  • Color pallet and texture: Opt a color palette and texture that complements your furniture and decor. Consider using a impersonal colouration scheme with pops of color to create ocular interest.
  • Illuminate and electric fixtures: Select lighting and electrical fixtures that meet your demand and enhance the ambience of your infinite.

Final Touches and Maintenance

Erst your dining room is consummate, don't forget to add the final trace and sustain your infinite regularly. Consider the following:

  • Upkeep and cleaning: Regularly dust and pick your furniture and decor to proceed your dining room looking its better.
  • Seasonal decorating: Update your decor seasonally to reflect the changing season and holiday.
  • Lighting care: Replace burned-out light lightbulb and preserve your lighting fixity to assure they preserve to go properly.

Summary

Project a dining room floor plan requires measured consideration of various essential elements, include furniture and layout options, storage and cabinetry requirements, and architectural characteristic and blueprint factor. By taking the time to create a well-planned and effectual base plan, you'll be able to make a warm and tempt boom infinite that fosters connection and togetherness. Remember to mensurate your infinite accurately, view your personal style and esthetical, and keep your infinite regularly to ensure your dining room continue a beautiful and functional part of your home.

Cozy Dining Room

Related Term:

  • creative dining room thought
  • dining way floor design idea
  • large dining way layout
  • din room furniture position mind
  • dining way setup mind
  • dining way layout blueprint