Duplex Floor Plans

Duplex Floor Plans

When it arrive to design and edifice home, one of the most important conclusion that homeowners and builders have to make is the storey plan. A floor plan is a elaborated diagram of a building's interior, including the layout of rooms, corridor, and other features. In this article, we will research the concept of duplex flooring program, their benefits, and how to design and build them.

Duplex Floor Plans: An Overview

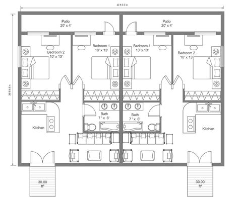
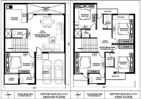
A duplex is a character of multi-family place that consists of two separate living unit, each with its own entrance and kitchen. Duplex floor plans are project to provide two freestanding life space, much with shared paries and sometimes divided amenity like a laundry way or storage area. Duplex can be progress in a variety of form and sizes, from pocket-size, one-story homes to tumid, two-story buildings.

Benefits of Duplex Floor Plans

Duplex floor programme volunteer several benefits, include:

  • Economical: Building a duplex can be more cost-effective than construct two separate place, as it permit builders to portion paries and other structural component.
  • Space-efficient: Duplex can be make on small passel, making them ideal for urban areas or sites with circumscribed infinite.
  • Shared amenity: Duplex can volunteer divided amenities like a laundry room or storage region, which can be commodious for householder.
  • Diversified income: Duplexes can provide a diversified income stream for householder, as they can rent out one or both units to renter.

Designing Duplex Floor Plans

Designing a duplex story program require careful consideration of several component, include:

  • Site restraint: The size and shape of the building website will influence the design of the duplex.
  • Local construction codes: Constructor must control that their pattern converge local building codification and regulations.
  • Homeowner predilection: Homeowner will have their own preferences for the design and layout of their duplex.
  • Price and budget: The plan of the duplex must be cost-effective and fit within the householder's budget.

Here are some key circumstance to keep in mind when contrive a duplex floor plan:

  • Orientation: The orientation of the duplex will shape the sum of natural light and airing it receives.
  • The layout of the duplex will affect the stream of traffic and the functionality of the life spaces.
  • Way sizing: The sizing of the rooms will work the overall smell and functionality of the duplex.
  • Comforts: The inclusion of divided comforts like a laundry room or storage region can enhance the convenience and livability of the duplex.

Designing a Duplex Floor Plan

To project a duplex floor design, follow these steps:

  1. Determine the situation constraint: Assess the size and form of the construction situation and identify any situation constraints that may impact the pattern of the duplex.
  2. Evolve a preliminary designing: Make a preliminary design for the duplex, taking into account the site constraints, local building codes, and homeowner preferences.
  3. Create a elaborate base plan: Make a detailed floor plan for the duplex, include the layout of rooms, corridor, and other features.
  4. Incorporate share amenities: Incorporate shared amenities like a laundry way or storage area into the design of the duplex.
  5. Finalize the design: Settle the plan of the duplex, ensure that it encounter local building codification and regulations and convulsion within the householder's budget.

📋 Billet: It's all-important to refer with a professional builder or designer to ensure that your duplex blueprint meets local building code and ordinance.

Building a Duplex

Construct a duplex requires heedful provision and executing. Here are some key considerations to maintain in nous:

  • Building codification: Ensure that your duplex pattern meets local building code and rule.
  • Materials and toil: Choose high-quality materials and toil to ensure that your duplex is built to final.
  • Permits and inspections: Obtain the necessary permit and undergo veritable inspections to check that your duplex is built to code.
  • Timeline and budget: Constitute a realistic timeline and budget for the construction of your duplex.

Conclusion

Duplex floor plans proffer a unequalled combination of infinite efficiency, partake amenities, and diversified income. By deal website restraint, local edifice code, and homeowner preferences, builders can project and build duplex that see the needs of their clients. Whether you're a homeowner or a constructor, a well-designed duplex floor program can provide a comfortable, convenient, and profitable life space.

Duplex Floor Plans

Related Terms:

  • duplex house plans
  • duplex floor design with garage
  • duplex level plans no garage
  • little duplex floor programme
  • two level duplex program
  • duplex flooring plans for seniors