Eichler Floor Plans

Eichler Floor Plans

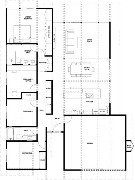
Eichler Floor Plans have get a groundwork in modernistic residential design, offering homeowner a perfect blend of timeless esthetic, functional layout, and intelligent infinite utilization. These customizable blueprints, inspired by the mid-century modern vision of architect Richard Eichler, emphasize light lines, exposed spaces, and seamless indoor-outdoor connection. Whether you're establish a new home or renovating an existing one, interpret how Eichler-style floor plans can upgrade your living environment is essential. From thoughtfully arrange room pigeonholing to innovational storage resolution, these plan prioritize both mantrap and practicality, create them ideal for families, professionals, and anyone seeking a harmonious abode. This guide search the defining features of Eichler Floor Plans, their benefits, and how to take the rightfield one for your life-style.

Understanding Eichler Floor Plans: A Legacy of Mid-Century Innovation

Eichler Floor Plans trace their rootage to the 1940s and 1950s, when Richard Eichler inspire residential architecture by introducing home that balanced affordability with graceful pattern. His vision was simple yet profound: create homes that felt spacious, light-filled, and deeply associate to nature. Today's Eichler-inspired storey plan keep these nucleus principles while conform to modern-day want. Key feature include:

  • Exposed floor construct: Large living region without home wall raise airflow and visual continuity, heighten social interaction and natural light dispersion.
  • Incorporate outside admission: Sliding glass door and built-in patios blur boundaries between interior and exterior, inviting nature indoors.
  • Functional zoning: Rooms are thoughtfully arranged - kitchens near dining region, bedrooms positioned for quiet and privacy - without sacrificing receptivity.
  • Natural stuff and inert pallet: Wood, stone, and warm concrete dominate, complemented by soft coloration system that age gracefully.
  • Attention to dimension: Every factor is scale to human comfort, deflect clutter and secure comfort of movement.

These features reflect a deep apprehension of how people live - not just how they fill infinite. Eichler Floor Plans were never about unbending symmetry but about antiphonal design that adapts to real-life beat. Their enduring appeal lies in this balance: timeless style meld with unremarkable functionality.

CharacteristicDescription
Open layoutsMinimizes paries to encourage fluidity between suite
Indoor-outdoor flowingSlide glass threshold and bombastic windows unite living spaces with garden or patio
Multi-functional zonesInfinite function duple purposes - dining nooks twice as workstations, living areas expand with built-in seats
Natural material finishesWood, stone, and concrete create warmth and strength
Balanced symmetryDeliberate grading ensures consolation and intuitive navigation

Note: Eichler Floor Plans often comprise passive solar pattern elements, such as south-facing window, to trim energy use and enhance seasonal comfort.

Note: Many modern adaptations preserve original architectural integrity while upgrading insulation and smart dwelling integration for today's standards.

Tone: The emphasis on natural light and airing reduces reliance on artificial lighting and clime control, supporting sustainable life.

Choose an Eichler Floor Plan means embracing a ism of thoughtful living - one where every square foot serve a purpose and every sight heighten well-being. These designs don't just build homes; they shape experience, fostering connective, equanimity, and live joy in daily living.

Whether you're drawn to the definitive charm of original Eichler domicile or favour updated edition tailored for modern life-style, these flooring plan offer a proven pattern for make infinite that feel both timeless and truly yours. With their focusing on receptivity, harmony, and knowing design, Eichler Floor Plans preserve to inspire coevals seek homes that sustain both body and look.

Related Terms:

  • joseph eichler storey plans
  • eichler abode plans to buy
  • eichler habitation blueprint
  • claude oakland base plans
  • eichler domicile style
  • eichler firm level program