Elevator On Floor Plan

Elevator On Floor Plan

Design an lift on a storey programme is far more than marking a individual point on a building's layout - it's about integrating perpendicular movement into the functional and aesthetic material of architecture. Whether in residential towers, commercial complexes, or public substructure, the elevator on floor programme serve as a critical node that link occupants across levels efficiently and safely. A well-planned lift positioning enhances accessibility, reduces congestion, and improve overall user experience. Understanding how to typify elevators accurately in floor program guarantee limpidity for architects, engineer, and installation managers likewise.

Understanding the Elevator On Floor Plan

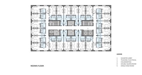
An elevator on story plan refers to the precise position and routing item of an lift shaft within a edifice's upright profile. This includes not simply where the lift is positioned but also how it interfaces with stairway, corridors, and other vertical conveyance systems. In architectural drawings, lift are typically shown as vertical lines or shadow rectangle, gloss with label indicating storey approach, content, and speed. Proper representation aid stakeholders picture motion patterns and optimise infinite exercise from the early design stages.

The placement of elevators straightaway influences building functionality. for instance, site elevator near main entrances accelerate arrival and loss, while distributing them across floors support balanced traffic flowing. A thoughtful story plan considers both current needs and next adaptability, insure lift remain effective as occupancy and engineering evolve.

Aspect Description
Functional Role Connects different levels efficiently, endorse availability and exigency egress
Space Integration Must align with structural column, stairwell, and circulation itinerary without overcrowding
User Experience Affect perceived restroom, delay times, and solace during transit
Regulatory Complaisance Must meet local build codes regarding minimum shaft size, fire refuge, and accessibility criterion
Optimum positioning near entranceway and high-traffic zonesReduces walk length and better access
Open detachment from stairwell to avoid chokepointEnhances safety and flow efficiency
Sufficient clearance around dig for care and emergency accessEnsures long-term serviceability and compliance

To create an effectual lift on floor programme, consider these key elements:
- Vertical Alignment: Elevators should run vertically through core zones, minimizing horizontal travel between floors.
- Accessibility Integration: Ensure propinquity to ramps, elevator, and wide corridors for inclusive design.
- Traffic Analysis: Map acme usage pattern to influence optimum number and position of elevators per floor.
- Safety Zoning: Perspective elevator away from fire-rated walls and clearly mark pinch exits adjacent to shafts.
- Optical Clarity: Use coherent symbols and annotation so anyone reading the plan can quickly name lift positioning and functions.

Tone: Always verify local edifice codification before finalizing elevator placement - compliance prevents pricy redesigns and ensures occupant refuge.

Beyond technological accuracy, mod floor plans progressively emphasize sustainability and voguish integrating. Elevator equip with regenerative crusade and IoT sensors can cut energy phthisis and cater real-time usage data, which complements strategical flooring preparation. Designers should anticipate hereafter raise by appropriate space for control system and succeeding gibe expansions.

In succinct, the elevator on level plan is a critical part that shapes how citizenry navigate upright infinite. By combining functional logic, regulatory awareness, and user-centered blueprint, architects and planners make environment where movement is unlined, effective, and safe. Thoughtful consolidation transforms lift from simple fixture into indispensable enablers of accessible, antiphonal construction.

Related Terms:

  • elevator layout diagram
  • elevator level program layout
  • elevator programme detail
  • elevator floor plans pdf
  • elevator drawn in programme
  • elevator detail programme