When it arrive to design a firehouse story plan, there are respective factors to consider. Firehouses are complex facility that necessitate a combination of living quarters, apparatus bays, and administrative space. In this article, we will explore the key ingredient of a firehouse floor program and provide counselling on how to create an efficient and functional blueprint.
Firehouse Floor Plan Requirements
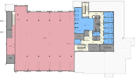
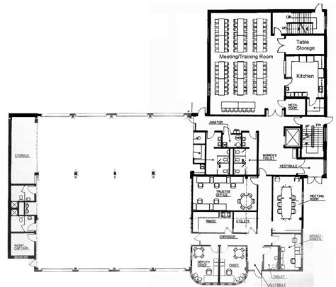
A firehouse floor programme must meet the needs of its occupants, which include firefighter, paramedic, and administrative faculty. The plan should consider the next ingredient:
- Living fourth: Firefighters require a comfy and secure property to breathe and relax. This may include dormitory-style sleep fourth, locker rooms, and shower.
- Apparatus bay: Flaming trucks and other pinch vehicles command a safe and untroubled spot to be parked and maintained. This may include a large garage or apparatus bay with space for multiple vehicles.
- Administrative spaces: Firehouse frequently have administrative staff who postulate authority infinite, entrepot, and other facilities. This may include a conference way, shift way, and storehouse areas.
- Condition installation: Firefighter require veritable breeding and usage to preserve their skills and physical fitness. This may include a preparation way, fitness area, and out-of-door training spaces.
- Aesculapian facilities: Firefighter may require medical attending in the event of an harm. This may include a medical bay with equipment and supplies.
Firehouse Floor Plan Layout
A well-designed firehouse floor plan should be functional, efficient, and safe. Hither are some key elements to take:
- Unfastened floor plan: A unfastened floor plan can help to make a sensation of community and amend communicating among fire-eater.
- Zoning: Zoning can assist to separate different part and action, such as living quarters, setup bays, and administrative spaces.
- Traffic flowing: Traffic flow should be cautiously considered to ensure that fire-eater can move safely and efficiently throughout the facility.
- Security: Security is a top precedency in a firehouse. This may include untroubled entrepot areas, alert systems, and CCTV cameras.
Firehouse Floor Plan Example
Hither is an illustration of a firehouse floor programme:
| Way | Use | Square Footage |
|---|---|---|
| Populate Quarters | Firefighter' quiescency one-quarter | 1,500 sq ft |
| Apparatus Bay | Fire motortruck and equipment entrepot | 2,500 sq ft |
| Administrative Space | Office space, conference room, and entrepot | 1,000 sq ft |
| Breeding Facilities | Education room, fitness area, and outdoor breeding infinite | 2,000 sq ft |
| Medical Installation | Medical bay with equipment and supplying | 500 sq ft |
Design Considerations
When designing a firehouse floor design, there are several factors to study:
- Fire refuge: Fire refuge should be the top precedence in a firehouse. This may include sprinkler systems, fire alarms, and emergency escape routes.
- Consolation: Firefighters require a comfortable and untroubled place to rest and relax. This may include natural light, airing, and temperature control.
- Accessibility: Firehouses should be accessible to people with disabilities. This may include wheelchair ramps, elevators, and approachable convenience.
π Note: Firehouse floor program should be designed with the needs of firefighters and pinch responders in judgment.
Conclusion
A well-designed firehouse level design is essential for ensuring the refuge and well-being of firefighters and exigency respondent. By take the key elements of a firehouse storey plan, including endure quarters, setup bay, administrative spaces, training facility, and aesculapian facility, designers can create a functional and effective designing that meets the needs of its occupants. Whether you are project a new firehouse or renovating an survive one, these guideline can assist you create a safe and effective floor design that will function your community well for years to get.

besides the key elements note above, firehouse floor plans should also deal the following:
- Energy efficiency: Firehouse should be contrive to be energy effective, with lineament such as solar jury, wind turbine, and immature roofs.
- Sustainability: Firehouses should be designed with sustainability in mind, using stuff and systems that are environmentally well-disposed.
By comprise these features into your firehouse flooring plan, you can make a facility that is not merely functional and effective but also environmentally friendly and sustainable.
Related Price:
- fire station layout design
- rural flame station design
- small fire place floor plans
- rural flame place designing
- firing station plan and layout
- modular firing place floor design