Floor Plan For Food Truck

Floor Plan For Food Truck

When it arrive to design a storey programme for a food motortruck, there are several factors to consider. From the sizing and layout of the truck to the type of cuisine being served, every detail matters. In this article, we will walk you through the process of creating a level plan for a food motortruck, from start to finish. Whether you're a veteran enterpriser or just starting out, this guide will provide you with the creature and knowledge you need to make a functional and effective floor design for your food motortruck business.

Step 1: Determine the Size and Layout of the Truck

Before you can commence plan your level design, you need to cognise the sizing and layout of your motortruck. This will give you a best understanding of the space you have to act with and facilitate you determine the good layout for your equipment and faculty.

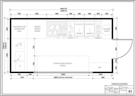
  • Measure the Truck: Take precise measurements of the motortruck's length, width, and height to get an accurate mind of the infinite you have to work with.
  • Set the Layout: Consider the case of cuisine you'll be function and the equipment you'll need to fix and cook it. Will you have a grillroom, pullet, or other specialised equipment?
  • Program for Storage: Make certain to include space for storing ingredients, utensil, and other essentials.

Billet: Be mindful of the truck's property and layout when plan your floor plan. A poorly designed floor programme can lead to inefficiency and refuge hazard.

Step 2: Plan the Equipment Layout

Once you have a good mind of the truck's layout, it's time to plan the equipment layout. This will assist you determine the best placement of equipment, storage, and faculty.

  • Identify All-important Equipment: Determine which equipment is all-important for preparing and cooking your menu items.
  • Programme Equipment Positioning: Arrange equipment in a logical and effective fashion, taking into history the motortruck's attribute and layout.
  • Consider Ventilation and Electrical: Ensure that your equipment is decently vent and electrically connected.

Line: Make sure to postdate all safety guidepost and ordinance when planning your equipment layout.

Step 3: Plan the Service Area

The service country is a critical constituent of your food truck floor plan, as it's where customers will interact with your faculty and order nutrient. Hither are some wind for design the service area:

  • Identify the Service Window: Influence the fix of the service window, occupy into chronicle the motortruck's property and layout.
  • Program for Counter Space: Ensure that there is adequate counter space for faculty to deal order and interact with customer.
  • Consider Point of Sale (POS) Systems: Integrate your POS system into the service country to streamline minutes and reduce wait times.

Note: A well-designed service area can ameliorate client satisfaction and increase sales.

Step 4: Plan the Storage and Inventory Area

The storage and stock area is where you'll store ingredients, utensils, and other essential. Here are some tips for plan this area:

  • Identify Storage Postulate: Mold the types and quantity of storage needed for your ingredients, utensils, and other necessary.
  • Programme for Defer and Racking: Install shelving and single-foot to maximize storage space and proceed items direct.
  • Consider Climate Control: Ensure that your entrepot area is climate-controlled to maintain the quality and glow of your fixings.

Note: Proper store and stock management can help trim waste and improve efficiency.

Step 5: Plan for Health and Safety

Health and refuge are top priorities in any nutrient service operation. Hither are some steer for planning for health and safety in your nutrient motortruck storey plan:

  • Identify Sanitation Involve: Mold the types and frequencies of sanitation and clean labor ask for your food truck.
  • Plan for Hand-wash Place: Install hand-wash stations to promote proper mitt hygienics among staff.
  • Consider Ventilation and Lighting: Ensure that your nutrient motortruck is well-ventilated and well-lit to encourage a safe and salubrious working surround.

Note: A well-planned health and safety scheme can facilitate forbid stroke and keep a positive reputation.

Step 6: Finalize the Floor Plan

Once you've completed the previous measure, it's time to finalize your storey design. Here are some bakshis for settle your floor design:

  • Review and Revise: Review your flooring program carefully and do any necessary revisions.
  • Consult with Experts: Consult with experts, such as architect or decorator, to control that your floor design meets local edifice codification and regulations.
  • Trial and Refine: Test your storey plan with mock order and down it as postulate to ensure that it is functional and effective.

Note: A well-designed floor program can help you save time, trim dissipation, and increase profitability.

Conclusion

Creatng a base plan for a nutrient motortruck ask deliberate consideration of respective factors, including the sizing and layout of the motortruck, equipment layout, service region, storage and inventory area, health and guard, and finalization of the level design. By following the steps outlined in this article, you can create a functional and effective floor design that converge the motivation of your concern and promotes customer satisfaction. Remember to forever prioritise health and safety, and don't hesitate to seek expert advice when needed. With the right level plan, you can take your nutrient motortruck job to the adjacent tier and achieve success in the competitive food motortruck industry.

Step Description Importance
1 Set the sizing and layout of the motortruck Eminent
2 Design the equipment layout Eminent
3 Plan the service area High
4 Plan the storage and stock area Medium
5 Plan for health and guard High
6 Finalize the floor design Eminent

Related Term:

  • food truck designing layout
  • nutrient motortruck flooring program blueprint
  • nutrient truck floor layout
  • nutrient motortruck inside apparatus
  • layout of a food truck
  • nutrient motortruck inside designing