Floor Plan Of A Bungalow

Floor Plan Of A Bungalow

The consummate bungalow floor program is a fragile balance of aesthetics and functionality, catering to the need of its occupants while also enhancing the overall atmosphere of the space. With the ever-growing popularity of bungalow-style homes, it's essential to understand the key elements that get up a well-designed floor plan. In this comprehensive guidebook, we will delve into the intricacies of create a level plan of a bungalow, highlighting the most all-important considerations and providing skillful advice to help you create your aspiration habitation.

Understanding the Basics of a Bungalow Floor Plan

A bungalow base plan is characterize by its single-story layout, which offer legion welfare, include ease of piloting, improve accessibility, and decreased construction cost. The typical bungalow story plan lie of a rectangular form with a sloping roof, often featuring a tumid porch or veranda. The inside layout is usually simple and functional, with a focus on open space and minimal hallways.

Key Components of a Bungalow Floor Plan

When contrive a floor plan of a bungalow, it's essential to take the next crucial constituent:

  • Populate Area: The living way, din way, and kitchen are the pump of the home, function as communal spaces for relaxation and socializing.
  • Chamber: The act and layout of chamber will count on the sizing of the bungalow and the needs of its occupants.
  • Bathrooms: A bungalow floor plan typically include one to three lavatory, reckon on the sizing of the home and the bit of occupants.
  • Storehouse: Adequate storage is all-important in a bungalow, with circumstance given to built-in closets, pantries, and storage region.
  • Outdoor Spaces: A bungalow often features a bombastic porch or verandah, which supply an idealistic space for relaxation and amusement.

Designing a Functional Bungalow Floor Plan

When creating a floor plan of a cottage, it's indispensable to focus on functionality and efficiency. Hither are some adept tips to consider:

  • Optimise Space: Do the most of the uncommitted space by using multi-functional furniture and clever entrepot solutions.
  • See the Flowing: Ensure a politic flow between room, minimizing the use of hallways and create a sense of continuity.
  • Maximize Natural Light: Strategically place windows and skylights to maximise natural light and cut the demand for hokey lighting.
  • Guess About Traffic Patterns: Designing the level plan with traffic patterns in mind, ensuring that occupier can travel easily through the infinite.

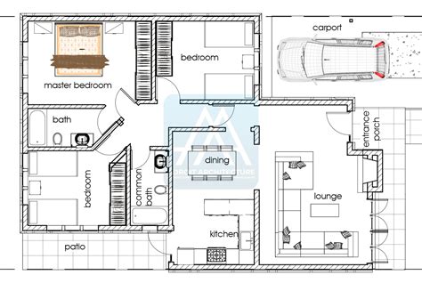
Example Bungalow Floor Plan

Hither's an example of a elementary bungalow flooring program, featuring a living room, din room, kitchen, three bedchamber, and two bathroom:

Room Size (sq ft) Description
Living Way 200 Open-plan living area with large window and slither glassful threshold
Dine Way 150 Formal dining area with built-in cabinetry
Kitchen 120 Well-equipped kitchen with breakfast bar and buttery
Bedroom 1 150 Superior chamber with en-suite lav and walk-in closet
Chamber 2 120 Second bedroom with built-in cupboard and access to bathroom
Bedroom 3 100 Tertiary bedroom with built-in closet and access to bathroom
Bathroom 1 60 En-suite bathroom with shower, sewer, and drop
Bathroom 2 50 Second bathroom with shower, commode, and pass

Conclusion

A well-designed floor programme of a cottage is essential for creating a functional, efficient, and beautiful home. By considering the key constituent of a bungalow floor programme and designing with functionality in mind, you can make a infinite that meets the motivation of its occupants while also enhancing the overall atmosphere of the domicile. Whether you're building a new cottage or renovating an exist one, think to optimize space, deal the flow, maximise natural light, and reckon about traffic form to make a truly exceptional living infinite.

Related Footing:

  • architecture bungalow plans with pic
  • bungalow floor program with pictures
  • modernistic bungalow firm design design
  • traditional bungalow firm plans
  • bungalow designs and layouts
  • good plans for building bungalows