Floor Plan Of Titanic

Floor Plan Of Titanic

The RMS Titanic was a British rider lining that drop in the North Atlantic Ocean in the early morning of 15 April 1912, after colliding with an iceberg during her initiatory voyage from Southampton to New York City. The sinking of the Titanic resulted in the decease of more than 1,500 people, making it one of the deadliest maritime disasters in history. The Titanic's level plan is a fascinating issue that provides insight into the ship's design, layout, and conveniences. In this billet, we will delve into the details of the Titanic's story plan, exploring its various deck, rooms, and characteristic.

The Titanic's General Arrangement

The Titanic's general system is a key aspect of its flooring programme, providing an overview of the ship's layout. The Titanic was divide into 10 decks, each function a specific intention. The deck layout was designed to cater a smooth and efficient stream of passenger and gang, with amenities and adjustment strategically rate throughout the ship.

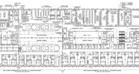
Deck Description
Orlop Deck lowest deck, housing the ship's engines and machinery
Bonavit Deck lowest rider deck, containing stateroom and corridors
Lower Promenade Deck contains the ship's mall deck, cabins, and comforts
Main Deck check the ship's response region, purser's function, and principal stairway
A Deck bear the ship's prom deck, cabin, and comforts
B Deck moderate the ship's promenade deck, cabin, and amenities
C Deck contains the ship's promenade deck, cabins, and amenities
D Deck contains the ship's prom deck, cabin, and amenities
E Deck contains the ship's prom deck, cabin, and amenities
F Deck comprise the ship's mall deck, cabins, and amenities

The Titanic's Passenger Accommodations

The Titanic's passenger fitting were designed to provide a luxurious and comfortable experience for first-class rider. The ship had a sum of 840 cabins, ranging from simple stateroom to lavish suites. First-class passengers had accession to a scope of amenities, including eatery, lounge, and mall decks.

First-Class Cabins:

  • Cabin were furnished with sumptuous amenity, including plush beds, comfortable couch, and ornate ornament.
  • Each cabin had its own individual bathroom, complete with hot and cold run water, a bidet, and a shower.
  • First-class passengers had accession to a range of dining options, include the Grand Dining Saloon and the Verandah Cafe.

Second-Class Cabins:

  • Cabin were small-scale and less luxurious than first-class cabin, but still ply a comfy and light living infinite.
  • Each cabin had its own private toilet, but with fewer amenities than first-class cabin.
  • Second-class passenger had access to a compass of din choice, include the Second-Class Dining Saloon and the Second-Class Café.

Third-Class Cabins:

  • Cabins were basic and useful, with shared bathroom facility.
  • Each cabin had its own berth bed and a small locker for storing personal belongings.
  • Third-class passengers had accession to a circumscribed range of dine selection, include the Third-Class Dining Saloon and the Third-Class Café.

The Titanic's Crew Accommodations

The Titanic's crew accommodations were designed to provide a comfy and efficient living infinite for the ship's crowd. The crowd had access to a scope of amenities, including mess halls, dorm, and diversion rooms.

Crew Mess Halls:

  • Crew mess halls supply a range of boom options, including hot and cold meals, snacks, and drinkable.
  • Jam anteroom were equipped with tables, chairs, and cooking facility.

Crew Hall:

  • Crew dormitories supply a reach of sleeping accommodations, including bunks and individual cabins.
  • Dormitories were equipped with divided bathroom installation and storehouse space for personal property.

Conclusion

The Titanic's floor plan is a complex and catch subject that provide insight into the ship's plan, layout, and amenities. From its general agreement to its rider and bunch accommodations, the Titanic's floor plan is a will to the ship's opulence and grandeur. While the Titanic's sinking was a disaster, its bequest go on in the many aspects of its design and layout that preserve to inspire and prepare us today.

[📚] Line: This situation is a comprehensive overview of the Titanic's floor design and is specify for informational purpose only.

Related Terms:

  • schematic of the titanic
  • titanic deck program side aspect
  • titanic boat deck design
  • titanic layout of the ship
  • titanic b deck plans
  • titanic layout map