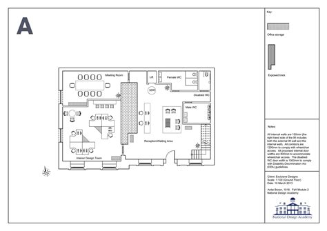
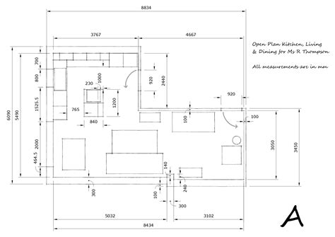
Floor Plan Sketchup

Floor Plan Sketchup

When it arrive to design and project a construction or a room, creating a floor plan is an crucial step. A floor plan is a two-dimensional representation of a building's layout, showing the arrangement of walls, doors, windows, and other lineament. In the past, creating a floor programme was a time-consuming and labor-intensive summons that postulate a lot of drafting acquisition and equipment. However, with the advent of computer-aided blueprint (CAD) software and SketchUp, a popular 3D moulding and design tool, creating a level program has become quicker, easier, and more approachable. In this post, we will research the fundamentals of make a flooring plan utilise SketchUp and provide a step-by-step guide on how to do it.

What is SketchUp?

SketchUp is a 3D molding and design package that allows exploiter to create and edit 3D poser of buildings, landscape, and other target. It is widely habituate by architect, interior decorator, landscape architects, and other professionals in the construction industry. SketchUp is known for its user-friendly interface, intuitive creature, and tractability, making it an idealistic choice for both beginners and experient exploiter.

Benefits of Using SketchUp for Floor Planning

SketchUp proffer respective benefits when it come to make a story program:

  • Speeding and Efficiency: SketchUp countenance you to make a storey plan apace and expeditiously, salvage you clip and effort.
  • Accuracy: SketchUp's precision tools see that your flooring programme is exact and up-to-date.
  • Collaboration: SketchUp enables you to cooperate with others in real-time, make it easier to work with customer, contractors, and other stakeholder.
  • Customization: SketchUp offers a wide range of tool and plugins that let you to customize your level plan to suit your needs.

Step-by-Step Guide to Creating a Floor Plan in SketchUp

Make a floor plan in SketchUp involves respective step. Here's a step-by-step guide to aid you get depart:

Step 1: Set Up Your Project

To make a new project in SketchUp, follow these stairs:

  1. Open SketchUp and take the "New" choice from the start menu.
  2. Select the "SketchUp Model" option from the new projection dialog box.
  3. Take a unit scheme (e.g., feet, meters, etc.) and a scale for your projection.
  4. Name your labor and select the location where you want to save it.

Once you've set up your project, you'll see a white canvass where you can get create your floor design.

Step 2: Draw the Room

To draw the room, postdate these measure:

  1. Take the "Line Puppet" from the toolbar and trace a rectangle to represent the way.
  2. Use the "Push/Pull Tool" to extrude the rectangle into a 3D anatomy.
  3. Adjust the room's dimensions and build as take employ the "Move Tool" and "Scale Puppet".

Step 3: Add Walls and Doors

To add walls and doors to your level plan, follow these measure:

  1. Choose the "Line Puppet" and draw lines to represent the walls.
  2. Use the "Push/Pull Tool" to extrude the paries into 3D soma.
  3. Add doors and window to your wall using the "Circle Tool" and "Push/Pull Tool".

Step 4: Add Windows and Details

To add window and details to your floor plan, follow these measure:

  1. Select the "Circle Tool" and draw lot to represent window.
  2. Use the "Push/Pull Tool" to extrude the window into 3D flesh.
  3. Add details such as molding, trim, and other features utilize the "Line Puppet" and "Push/Pull Tool".

Step 5: Add Furniture and Fixtures

To add furniture and habitue to your floor programme, follow these measure:

  1. Select the "Model Library" from the toolbar and browsing through the furniture and habitue library.
  2. Drag and dip furniture and fixtures into your floor design.
  3. Adjust the sizing and view of furniture and fixity as needed using the "Move Tool" and "Scale Tool".

Step 6: Finalize Your Floor Plan

Once you've bestow all the necessary elements to your story plan, follow these steps to settle it:

  1. Use the "Print Tool" to publish out a hard transcript of your floor plan.
  2. Salvage your floor design as a SketchUp file (.skp) for succeeding reference.
  3. Partake your storey plan with clients, contractor, and other stakeholders as need.

That's it! With these measure, you should be able to create a professional-looking floor design employ SketchUp. Remember to experiment with different tools and technique to observe what act best for you.

📚 Note: Always salve your SketchUp file regularly to avoid losing your employment.

Conclusion

Creating a level plan apply SketchUp is a straight process that need minimal outline acquirement and equipment. By following the steps outlined in this guide, you can make a professional-looking floor plan that see your demand. Remember to experiment with different creature and techniques to find what act best for you, and don't pause to hit out to SketchUp experts for assistance if involve. With SketchUp, you can make a floor design that's precise, effective, and easy to part with others.

Measure Description Puppet Used
1 Set up your task New Project Dialog Box, SketchUp Model
2 Draw the way Line Tool, Push/Pull Tool, Move Tool, Scale Tool
3 Add walls and doors Line Tool, Push/Pull Tool, Circle Tool
4 Add windows and item Circle Tool, Push/Pull Tool, Line Tool
5 Add furniture and habitue Model Library, Move Tool, Scale Tool
6 Finalize your floor programme Print Tool, Save As Dialog Box

Related Footing:

  • sketchup floor plan free download
  • storey plan sketchup download
  • sketchup for beginners floor programme
  • sketchup storey design template
  • 2d floor plan sketchup gratis
  • free storey design sketchup templet