Floor Plans For Master Bedroom

Floor Plans For Master Bedroom

When it arrive to design the sodding victor bedroom, one of the most critical constituent to consider is the storey plan. A well-designed floor plan can do all the difference in creating a relaxing and inviting space that reflects your personal style. In this clause, we'll delve into the universe of floor plans for master bedrooms, explore the respective layouts, features, and design circumstance to help you create your dreaming retreat.

Why a Well-Designed Floor Plan Matters

A floor plan is more than just a pattern for your superior bedroom - it's a contemplation of your lifestyle, predilection, and needs. A well-designed flooring programme can help you maximise the space, create a sentience of flow, and integrate the features you desire. Whether you're look to create a passive retreat, a wide oasis, or a tech-savvy haven, a thoughtful story plan can get it all possible.

Types of Floor Plans for Master Bedrooms

When it get to floor programme for master chamber, there are several styles to take from, each with its own unparalleled characteristics and benefits. Hither are some of the most democratic types of floor design:

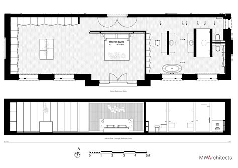
  • Spa-Inspired Floor Plans: These floor plans feature a declamatory, exposed space with a spa-like atmosphere, consummate with a freestanding tub, freestanding shower, and plentiful natural light.
  • Cozy Retreat Floor Plans: These story program prioritise intimacy and relaxation, ofttimes featuring a smaller, more intimate infinite with a comfortable sit country and a assuasive colour palette.
  • Modern Master Floor Plans: These floor plans showcase sleek, modern lines and an accent on functionality, often contain large windows, eminent ceilings, and a roomy walk-in closet.
  • Traditional Master Floor Plans: These flooring plans arouse a sense of classic elegance, often sport a broad layout, eminent roof, and a ornamental fireplace.

Key Features to Consider

When designing your story programme, there are several key features to deal, include:

  • Size and Layout: Study the sizing and layout of your master chamber, taking into story the emplacement of doors, windows, and any obstructions.
  • Storage and Closet Space: Conceive about your storage and w.c. demand, including the character of closet scheme you prefer and any additional depot requirements.
  • Lighting and Electrical: Consider the lighting and electrical want of your lord chamber, include the placement of exit, switches, and any special light essential.
  • Toilet Layout: Think about the layout of your bathroom, including the placement of regular, locker, and any other features.
  • Prospect and Natural Light: Study the prospect and natural light available in your maestro chamber, and how you can maximize these elements to create a smart and inviting space.

Hither are some democratic master bedchamber floor plan designs to inspire your adjacent labor:

Design Description Key Features
Open Concept Floor Design A spacious, open floor plan that combine the master bedroom, lavatory, and w.c. in one declamatory region. Large, unfastened space; spa-like atmosphere; sizeable natural light.
Vault Ceiling Floor Plan A floor plan that features a vaulted cap, create a sense of magnificence and openness. High ceilings; natural light; wide feel.
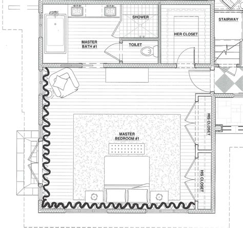
Split Floor Program A floor program that separates the master bedroom and bathroom, make a more intimate and private space. Individual entrance; freestanding lav; quiet, loose atmosphere.

🏠 Note: Be certain to consider your local edifice codification and regulations when design your storey plan.

Designing Your Dream Master Bedroom Floor Plan

Designing your ambition master chamber base plan requires careful circumstance of your motivation, orientation, and lifestyle. Here are some lead to assist you get commence:

  • Start with a Blank Slate: Begin with a clean sheet of theme and create a white flooring program, free from any preconceived notions or constraints.
  • Deal Your Life-style: Imagine about your daily wont, orientation, and needs, and how they can inform your floor plan design.
  • Enquiry and Gather Inspiration: Look to other sources for brainchild, include design mag, blog, and social media.
  • Prioritise Your Motive: Identify your must-haves and nice-to-haves, and prioritise them in your designing.
  • Consult with a Professional: If needed, consult with an designer, decorator, or declarer to help bring your sight to life.

πŸ’‘ Billet: Don't be afraid to experiment and try new thing - it's all piece of the blueprint process!

Conclusion

Designing the perfect victor bedroom flooring programme requires careful consideration of your demand, preferences, and lifestyle. By research the various types of floor programme, key lineament to reckon, and popular blueprint, you can create a infinite that meditate your personal style and cater a relaxing retreat from the domain. Remember to prioritize your need, enquiry and gather brainchild, and don't be afraid to experiment and try new thing. With these tips and a little creativity, you can create your ambition master chamber flooring plan that will leave you feeling inspired and refreshed.

Related Damage:

  • master bedchamber base design layout
  • lord bedroom floor plans instance
  • superior bedchamber plans with ensuite
  • master bedroom floor plans 24x24
  • 16x20 overlord suite floor programme
  • maestro bedchamber base plan 20x24