Floor Plans For Wheelchair Accessible House

Floor Plans For Wheelchair Accessible House

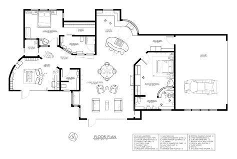
When it arrive to create a habitation that is approachable and comfortable for everyone, designing a wheelchair approachable house is a top priority for many homeowners. A wheelchair accessible house requires careful planning and consideration to ensure that all life spaces are easily navigable and usable by individuals with mobility impairments. One key scene of this is the creation of efficacious floor plans that consider the demand of wheelchair users. In this clause, we will explore the importance of wheelchair accessible floor programme and provide guidance on how to make a wheelchair friendly home.

Why Wheelchair Accessible Floor Plans Are Necessary

A wheelchair accessible floor design is essential for create a habitation that is safe and available for individuals with mobility impairments. Wheelchair user require a place that is easily navigable, with sufficient space to steer and easy approach to all living region. A well-designed wheelchair accessible storey programme takes into account the motivation of this universe, providing a comfortable and inclusive animation environment.

Key Considerations for Wheelchair Accessible Floor Plans

There are respective key considerations to keep in judgment when design a wheelchair approachable level program:

  • Wide Doorways and Hallways: Wider doorway and hallways allow wheelchair exploiter to easily voyage through the home.
  • Ramps and Stairs: A gentle side or incline is necessary for wheelchair users, while steps can be avoided entirely.
  • Accessible Bathroom and Kitchen: Wide enough clearances in the bathroom and kitchen, along with lower countertops and appliances, are all-important for comfy use.
  • Wide and Stable Floors: Thick, rigid, and textured dump provide stability and support for wheelchair user.
  • Grab Bars and Support: Install grab bars in strategic locations to supply support and balance.
  • Emergency Exit: Ensure that there is a open emergency outlet that is easily accessible from all areas of the place.

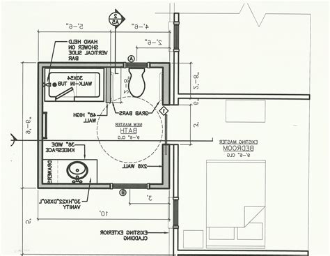
Essential Room-Specific Requirements

When design a wheelchair approachable floor design, each way should be consider carefully:

  • Accessible Privy:
    • Widen the doorway to at least 32 inch.
    • Low the sink and toilet by 2-3 in.
    • Provide a turning space of at least 60 in in diameter.
    • Install grab barroom in strategic locations.
  • Approachable Bedrooms:
    • Provide clear space to turn around and move in the room.
    • View the bed at least 50 inches encompassing from the bed to the paries.
    • Leave space for a nightstand and wheelchair costless transition.
  • Approachable Kitchen:
    • Low-toned the countertops to 34 in.
    • Render a consecrated rolling under kitchen sink country.
    • Install grab bars in strategical location.
  • Approachable Din Area:
    • Position the dining table to obviate corners and grant for easygoing navigation.
    • Leave infinite for wheelchair rotation and passage.

Visual Aids for a Wheelchair Accessible Floor Plan

Room Headroom (in) Notes
Threshold 32 Ensure decent width for wheelchair access
Hallway 36 Wide plenty for wheelchair movement
Bathroom Clear Space 60 Turn space for wheelchair exploiter
Bedroom Wide Space 50 Minimal headway for accessibility

Consultation and Professional Guidance

A wheelchair approachable floor plan requires measured planning and audience with experts. Engage with architect, contractor, or disability counsel to ensure that your home design meets the motivation and approachability standard of wheelchair users. This collaboration will ultimately lead to a comfy and inclusive home environment for everyone.

🔑 Note: Consult with pro, such as designer or declarer, who specialize in wheelchair approachability to create a well-designed and functional domicile.

Final Checklist for a Fully Accessible Home

A wheelchair approachable home demand veritable upkeep to maintain its approachability and comfort. Hither is a checklist to check your home remains wheelchair friendly:

  • Repaint or re-carpet with wheelchair-accessible texture.
  • Maintain working electrical issue and switch at commodious heights.
  • Keep open tract for easy wheelchair piloting.
  • Regularly chit ramps and step for constancy.
  • Install non-slip floor in privy and kitchen region.

💡 Note: Maintaining a wheelchair accessible habitation requires ongoing attempt, so regularly inspect and update your domicile as needed.

Wheelchair Accessible Home Planning is Crucial

Creating a wheelchair approachable floor plan is a serious-minded and essential measure towards a dwelling that is welcoming and inclusive to individuals with mobility handicap. By understanding the indispensable considerations and enforce these wheelchair approachable blueprint elements, you can create a comfy and joyous animation environment for all home members.

Related Terms:

  • baulk accessible house plans costless
  • residential story plans for handicapped
  • wheelchair approachable modern house program
  • barrier free wheelchair approachable place
  • deterrent accessible firm plans pdf
  • impairment firm program with photos