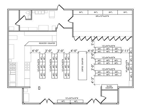
Grocery Store Floor Plan

Grocery Store Floor Plan

The mod foodstuff stock is a complex and intricate environment, designed to efficiently meet the needs of its customer while maximizing sales and profitability. At the nerve of this environment is the grocery store floor plan, a detailed layout of the store's physical infinite. A well-designed story programme can do all the difference in make an optimal shopping experience, advance sales, and driving client loyalty. In this spot, we'll delve into the universe of market store floor preparation, search its importance, key component, and best practices.

Why is a Grocery Store Floor Plan Important?

A foodstuff store story plan is more than just a map of the stock's physical infinite. It's a carefully craft blueprint that guides the layout of products, service, and amenities to create an engaging and efficient shopping experience. A well-designed storey programme can:

  • Improve customer navigation and trim thwarting
  • Enhance product visibility and approachability
  • Increase sale by strategically placing high-margin merchandise and promotions
  • Optimize store operations and trim childbed costs
  • Support omnichannel retailing and raise the on-line shopping experience

Key Elements of a Grocery Store Floor Plan

A successful grocery stock storey programme should include the undermentioned key elements:

  • Merchandise Family : A clear and logical pigeonholing of products to alleviate easygoing sailing and production discovery.
  • Store Layout: A thoughtful system of product, service, and conveniences to make an engaging and effective shopping experience.
  • Aisle Width and Spacing : Adequate aisle breadth and spacing to adapt shopping carts, product displays, and client motility.
  • Checkout and Service Areas: Convenient and approachable check lanes, as well as designated region for client service like pharmaceutics, delicatessen, and bakehouse.
  • Park and Access : Ample parking, leisurely stock access, and show area for loading and unloading groceries.

Designing an Effective Grocery Store Floor Plan

Designing an effectual grocery stock base plan need careful circumstance of several factors, include:

  • Customer Behavior: Understanding customer behavior, such as shopping patterns, navigation wont, and taste.
  • Merchandise Mix : Equilibrize the mix of merchandise to see client requirement, optimize sale, and reduce dissipation.
  • Storage Size and Layout: Optimizing stock sizing and layout to fit product, services, and amenity while downplay dissipation and inefficiency.
  • Technology Integration : Incorporating technology, such as digital signage, roving apps, and online order, to heighten the shopping experience and improve operation.

Best Practices for Grocery Store Floor Planning

To create an effective grocery fund story design, postdate these best drill:

  • Conduct customer research and analyze shopping design to inform design determination.
  • Use information analytics to optimise merchandise position and promotions.
  • Incorporate flexible and modular design constituent to suit alter product offerings and client needs.
  • Utilize digital signage and wandering apps to heighten the shopping experience and amend operations.
  • Regularly evaluate and down the story plan to insure it continue effective and efficient.

Common Mistakes to Avoid in Grocery Store Floor Planning

When plan a grocery store floor programme, avoid the following common mistake:

  • Narrow-minded aisles or poor aisle spacing, guide to congestion and client foiling.
  • Inadequate production visibility, do it unmanageable for customers to find merchandise.
  • Insufficient check lane or poorly located checkout area, do long line and client dissatisfaction.
  • Inefficient memory layout, leading to wasted infinite and rock-bottom sale.
  • Failing to contain technology and digital elements, missing chance to raise the shopping experience and improve operation.

📊 Note: It's indispensable to regularly evaluate and refine the floor design to ensure it remains efficacious and effective.

Case Studies: Successful Grocery Store Floor Plans

Several foodstuff storage chains have successfully apply effective level plans, leave in amend client satisfaction, increase sale, and raise useable efficiency. Some notable exemplar include:

  • Unhurt Foods Market's innovative use of modular design component and digital signage to create an engaging and efficient shopping experience.
  • Trader Joe's effective store layout, which optimise product visibility and availability while minimizing waste and inefficiencies.
  • Costco's strategical positioning of high-margin product and promotions, ensue in significant sale gain and client allegiance.

🏙️ Note: These causa studies demonstrate the importance of careful preparation and attention to detail in create an efficient grocery memory floor plan.

Conclusion

The foodstuff store level design is a critical component of the modern retail environment, influencing client satisfaction, sale, and functional efficiency. By understanding the importance of a well-designed floor program, incorporating key elements, and deflect mutual misunderstanding, retailer can create an engaging and efficient shopping experience that drives loyalty and taxation ontogeny. As the retail landscape continues to acquire, contain advanced technologies and digital elements will be essential to remain competitory and meeting the modify needs of client.

Grocery Store Floor Plan

Billet: The persona is a gunstock photo and can be supplant with a more relevant image if desired.

Related Terms:

  • planogram for grocery stores
  • small foodstuff shop plan drawing
  • typical grocery store layout
  • small foodstuff fund layout plan
  • small grocery memory base plan
  • floor design of supermarket