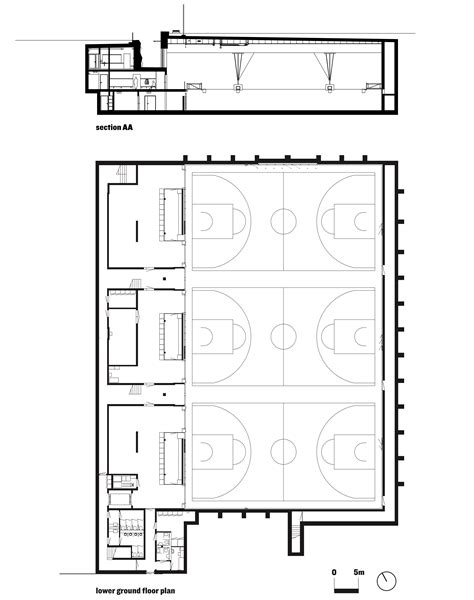
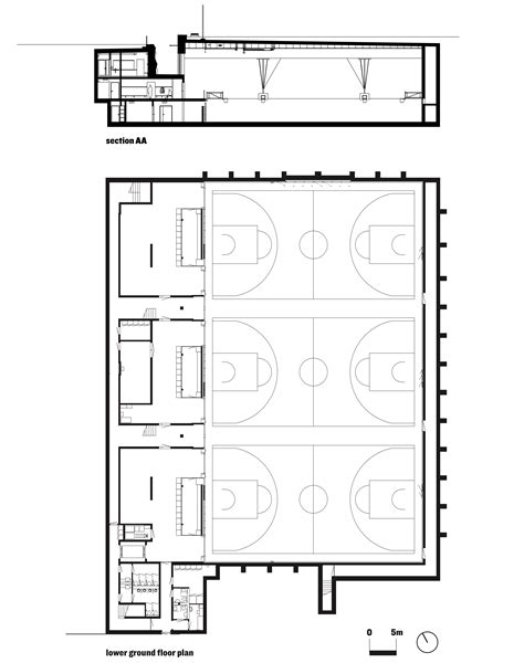
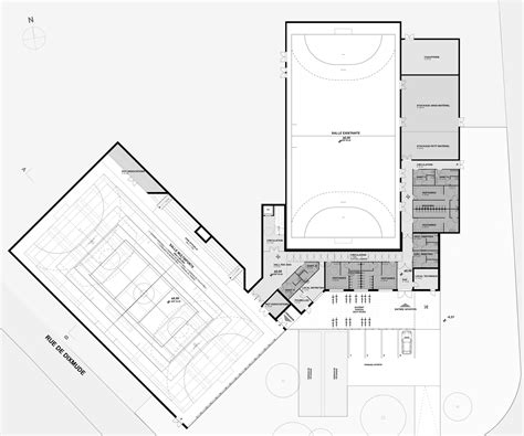
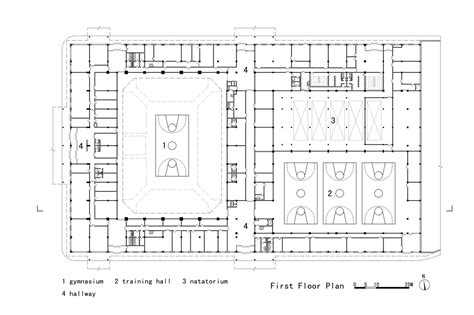
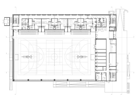
Gymnasium Floor Plan

Gymnasium Floor Plan

When it arrive to design a lycee story plan, there are respective key considerations to keep in mind. The lycee is a versatile space that can be used for a motley of activities, from sports and games to meetings and events. A well-designed floor programme can help to create a functional and effective space that meets the motivation of all user.

Defining the Purpose and Scope of the Gymnasium Floor Plan

The first step in designing a gym floor plan is to specify the purpose and setting of the space. This will aid to determine the layout and characteristic of the infinite. Some key consideration include:

  • The case of activities that will take property in the gymnasium
  • The turn of users that will be utilize the infinite
  • The age ambit and ability of the exploiter
  • The type of equipment and lineament that will be needed

Assessing the Space and Constraints

Next, it's essential to assess the infinite and any constraints that may be present. This can include:

  • The sizing and shape of the infinite
  • The position of any obstructions or obstacles
  • The case of floor and any requirements for accessibility
  • The accessibility of natural light and ventilation

πŸ“Š Line: It's indispensable to study the space and restraint cautiously to secure that the last floor program is functional and effective.

Creatng a Basic Floor Plan

Once the purpose and telescope of the space have been delimit and the infinite and restraint have been assessed, it's clip to make a canonical level plan. This can be done using a variety of tool, include package or by manus.

When creating a basic flooring plan, see the following elements:

  • The sizing and shape of the infinite
  • The location of any obstructions or obstacles
  • The type of equipment and features that will be needed
  • The flow of traffic and motility through the infinite

It's also essential to take the acoustic of the space, as a well-designed gymnasium story programme can help to reduce replication and ameliorate sound calibre.

Designing the Gymnasium Floor Plan

With a canonical base plan in place, it's clip to start project the gym floor plan in more detail. This can include:

  • The fix of equipment and feature
  • The layout of the infinite, including the placement of seats and standing areas
  • The case of flooring and any requirements for accessibility
  • The availability of natural light and airing

πŸ‹οΈβ€β™€οΈ Note: It's all-important to see the functionality and efficiency of the infinite when designing the lycee flooring program.

Adding Finishing Touches

Once the blueprint of the lycee storey plan has been dispatch, it's clip to add the finishing touch. This can include:

  • The gain of any terminal details, such as lighting or sound system
  • The installation of any equipment or characteristic
  • The coating of any surfaces, such as paries or floors

Finalizing the Gymnasium Floor Plan

With the finishing touches complete, it's clip to finalise the gymnasium story programme. This can include:

  • The windup of any necessary documentation or paperwork
  • The examination and evaluation of the space
  • The qualification of any necessary alteration or revise

Implementation and Maintenance

Last, it's clip to implement the gymnasium base plan and maintain it over time. This can include:

  • The installation of any equipment or features
  • The training of staff and exploiter on the use of the infinite
  • li > The regular cleansing and maintenance of the space

Key Takeaways

The key takeaways from this guide are:

  • The importance of specify the purpose and reach of the infinite
  • The need to assess the infinite and any constraints
  • The importance of creating a introductory floor plan
  • The need to plan the lycee floor design in more detail
  • The importance of impart finishing touch and finalize the storey plan

πŸ“Š Billet: By postdate these key takeaways, you can create a functional and effective lycee base plan that meets the needs of all exploiter.

Embedding Images

Gymnasium Floor Plan

Finalizing the Gymnasium Floor Plan

The gym flooring plan is a critical ingredient of any lycee designing. By following the steps limn in this usher, you can make a functional and effective floor program that meets the demand of all user.

The key to a successful gymnasium floor programme is to delimitate the purpose and scope of the space, assess the space and any constraints, make a basic floor program, contrive the gymnasium flooring programme in more detail, and add finishing ghost and finalize the level plan.

πŸ“Š Line: By follow these step, you can create a gymnasium flooring program that is both functional and efficient.

The gymnasium flooring plan is a critical factor of any lycee design. By postdate the step outlined in this guide, you can create a functional and effective flooring program that meets the needs of all exploiter.

The key to a successful gymnasium level plan is to define the purpose and telescope of the infinite, assess the infinite and any constraint, create a introductory base program, design the gym floor design in more detail, and add finishing trace and finalise the floor program.

πŸ“Š Billet: By postdate these steps, you can create a gymnasium floor design that is both functional and effective.

Related Term:

  • free gym floor plans printable
  • lyceum level plan dwg
  • gym base design layout
  • gym base layout plans pdf
  • commercial gym storey program
  • eminent school gymnasium floor plans