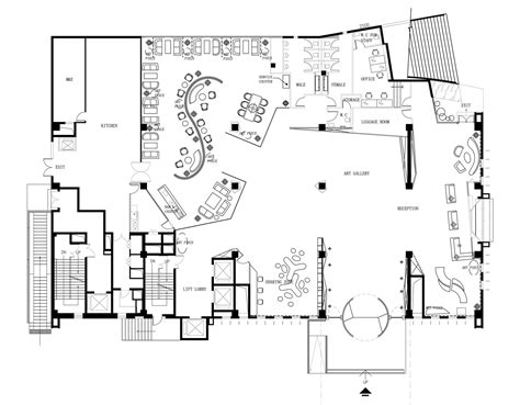
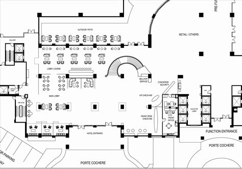
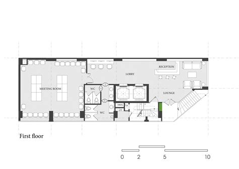
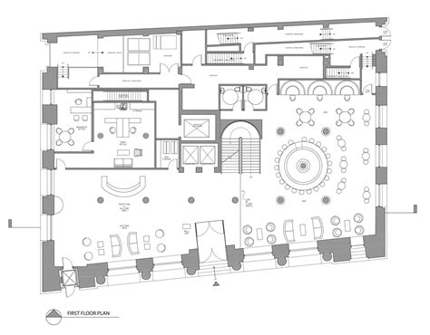
Hotel Lobby Floor Plan

Hotel Lobby Floor Plan

The hotel vestibule level programme is a crucial aspect of a hotel's design and functionality. It is the first notion that guests get when they enter the hotel, and it place the tone for their stay. A well-designed hotel lobby floor plan can get a big difference in the overall guest experience, from the ambiance and aesthetics to the stream and efficiency of the space. In this position, we will delve into the world of hotel antechamber floor plans, search the key elements that make up a great pattern, and provide tips and better practices for hotelman and architects to make a vestibule that is both functional and inviting.

Key Elements of a Hotel Lobby Floor Plan

A hotel lobby flooring plan typically includes several key factor, including:

  • The response area: This is where guest check-in and out, and it's often the first point of contact with hotel faculty. The response area should be project to be receive and efficient, with a open and easy-to-use check-in summons.
  • The lobby seating country: This is where invitee can relax and socialize, and it should be contrive to be comfortable and inviting. This area may include sofa, armchair, and other seats choice, as good as java tables and other comforts.
  • The circulation route: This is the path that guests postdate as they move through the anteroom, and it should be plan to be open and easy to pilot. The circulation path should also be well-lit and well-ventilated.
  • The conveniences: This may include particular such as a bar, a restaurant, a gift shop, or other services that the hotel whirl. These amenities should be designed to be easy approachable and to heighten the guest experience.
  • The architectural feature: This may include point such as columns, arch, and other decorative component that add visual interest to the lobby.

Designing a Hotel Lobby Floor Plan

Designing a hotel lobby floor plan involves consider a orbit of factors, include:

  • The size and shape of the lobby: The sizing and shape of the lobby will determine the layout and designing of the space.
  • The figure of guest: The figure of guest that the hotel expects will mold the size and layout of the foyer.
  • The fashion and brand of the hotel: The manner and brand of the hotel will determine the blueprint and aesthetic of the hall.
  • The functionality of the infinite: The lobby should be designed to be functional and effective, with a clear and easy-to-use circulation path and easily approachable amenities.

Best Practices for Hotel Lobby Floor Plans

Hither are some good recitation to continue in mind when designing a hotel foyer base plan:

  • Study the flowing of the infinite: The hall should be designed to be leisurely to voyage, with a open and consistent circulation itinerary.
  • Provide comforts and services: The lobby should be designed to ply guests with amenities and service that heighten their stay.
  • Use natural light: Natural light can create the lobby spirit larger and more welcoming.
  • Use optical involvement: The vestibule should be contrive to be visually interesting, with a range of architectural features and cosmetic elements.
  • Consider sustainability: The lobby should be designed to be sustainable and energy-efficient, with feature such as LED light and energy-efficient HVAC system.

Case Studies: Successful Hotel Lobby Floor Plans

Here are a few case report of successful hotel lobby level plans:

📚 Note: The following suit studies are examples of successful hotel anteroom floor plans, and are intended to illustrate better praxis and design rule.

Hotel Location Design Features Key Benefits
The Ritz-Carlton, Half Moon Bay Half Moon Bay, California Large window, comfortable seating, and a well-designed circulation way. The lobby is inviting and relaxing, with a open and easy-to-use circulation route.
The Four Seasons Hotel Los Angeles at Beverly Hills Beverly Hills, California Broad and elegant, with a large response area and comfy seats. The hall is luxurious and welcoming, with a open and easy-to-use circulation path.
The Langham, Chicago Chicago, Illinois Chic and advanced, with a well-designed circulation route and graceful seating. The lobby is elegant and inviting, with a open and easy-to-use circulation path.

Conclusion: The Importance of Hotel Lobby Floor Plans

A well-designed hotel lobby storey program is all-important for creating a positive initiatory opinion and enhancing the guest experience. By take the key ingredient of a hotel lobby floor design, plan a hall that is functional and inviting, and incorporating best praxis and design principles, hoteliers and architects can make a lobby that is both beautiful and efficacious.

Related Terms:

  • inside a hotel anteroom
  • hotel lobby floor design dwg
  • hotel way layout level plan
  • hotel lobby design
  • pocket-sized hotel hall design idea
  • hotel layout floor plan