House Floor Plans 1 Bedroom

House Floor Plans 1 Bedroom

When it arrive to design or select the staring home, one of the most all-important aspects is the house floor program. The 1-bedroom house floor plan, in peculiar, is an excellent choice for those who want to live in a cozy and intimate infinite. In this blog post, we will dig into the world of 1-bedroom house flooring program, exploring their benefits, design idea, and tips for creating the thoroughgoing space.

Benefits of 1-Bedroom House Floor Plans

The 1-bedroom house floor program is an attractive alternative for several understanding. Firstly, it is an excellent option for single, twosome, or retirees who desire a low-maintenance living infinite. The small-scale square footage also intend low utility bills and a rock-bottom environmental impact.

  • Simplified life
  • Lower utility bill
  • Reduced environmental impact
  • Easygoing to pick and maintain

Another benefit of 1-bedroom firm floor plans is their versatility. They can be design to suit assorted lifestyles, from cozy retreat to modern place with aerodynamic line and minimum decor.

Design Ideas for 1-Bedroom House Floor Plans

When it come to designing a 1-bedroom house storey plan, there are respective thought to consider. Here are a few:

  • Opt for a covenant layout
  • Use erect ingredient to make the fantasy of space
  • Choose light colors and minimalist decor
  • Incorporate natural elements, such as plants and forest emphasis
  • Take a attic or mezzanine for added infinite

Hither are a few examples of 1-bedroom house flooring plans to animate you:

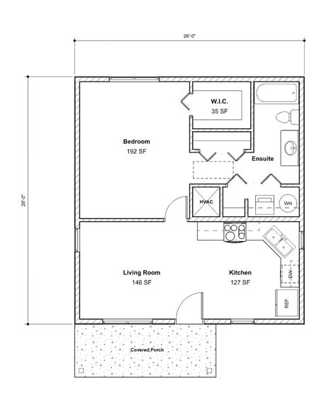
Plan Name Description Square Footage
The Cozy Retreat This summary floor plan features a cozy go area, a pocket-size kitchen, and a loft-style bedroom. 400 sq ft
The Modern Oasis This sleek and modern floor programme feature an open-plan life country, a fully-equipped kitchen, and a broad chamber. 600 sq ft

Tips for Creating the Perfect 1-Bedroom House Floor Plan

When create a 1-bedroom house floor program, there are several pourboire to continue in mind:

  • Consider your lifestyle and needs
  • Prefer a compact layout
  • Use vertical component to create the phantasy of space
  • Incorporate natural constituent
  • Consider a attic or mezzanine for added space

Here are a few additional tips to proceed in psyche:

  • Don't block to include depot and shelving
  • Choose multi-functional furniture
  • Consider a spud bed or couch bed
  • Use mirror to create the semblance of infinite

🏠 Note: When project a 1-bedroom house level programme, it's crucial to reckon your life-style and motivation. Opine about how you plan to use the space and what features are must-haves for you.

📸 Line: When choosing a 1-bedroom house flooring design, consider the positioning and orientation of the property. Natural light and ventilation can greatly impact the livability of the space.

Whether you're a first-time homebuyer or a seasoned homeowner, a 1-bedroom house story programme can be an fantabulous choice. With its compact size and versatility, it's the arrant option for those who want a cosy and intimate living infinite.

As you research the macrocosm of 1-bedroom house floor plans, remember to view your lifestyle and demand, choose a compact layout, and use upright elements to make the illusion of space. With a slight creativity and provision, you can make the perfect 1-bedroom house floor plan that encounter your unparalleled needs and taste.

By integrate natural elements, using multi-functional furniture, and see a loft or mezzanine, you can create a 1-bedroom firm floor program that is both functional and beautiful. And with its decreased environmental impact and lower utility bills, you'll be execute your piece for the satellite too.

So why not start explore the existence of 1-bedroom house floor design today? With its legion benefit, design ideas, and tips for create the double-dyed infinite, you'll be well on your way to finding your aspiration habitation.

Whether you're appear for a cozy retreat or a modernistic haven, a 1-bedroom firm floor program can be the perfect result. So why wait? Start contrive your dreaming home today!

🏠

Related Terms:

  • better 1 bedroom flat layout
  • 1 bedroom self contain programme
  • modern one chamber firm plans
  • elementary one chamber floor plans
  • 1 bedchamber condominium layout
  • modernistic 1 bedchamber firm plans