House Plans Open Floor Plan

House Plans Open Floor Plan

The ambition of receive a roomy and functional home is a common destination for many homeowners. One of the most sought-after features in modern habitation is the open floor plan. An unfastened floor plan is a layout where the living, dining, and kitchen region are combined into a single, open infinite. This design has become progressively democratic in recent years due to its many benefits. In this billet, we will explore the advantages of unfastened floor programme, provide baksheesh for designing and make one, and discuss some democratic firm program that boast this layout.

Benefits of Open Floor Plans

An exposed storey plan offer several vantage over traditional closed-off spaces. Here are some of the welfare you can wait:

  • Social Interaction: An open story plan further social interaction among family members and guests. It let for leisurely conversation and movement between different areas of the place.
  • Flexibility: With an exposed floor plan, you can easily convert a way from one purpose to another. for instance, you can become a dining region into a domicile office or a play area for kyd.
  • Natural Light: An open floor program allows for more natural light to enter the home, making it feel brighter and more welcoming.
  • Visual Entreaty: Exposed level program often feature high ceilings, tumid windows, and satiny line, do them visually appealing and mod.
  • Cost-Effective: Building an unfastened floor plan can be more cost-effective than traditional layout, as it often requires less material and labor.

Designing an Open Floor Plan

Project an exposed floor program necessitate careful consideration of the space's functionality and aesthetic appeal. Here are some tips to continue in nous:

  • Start with a Vision : Before designing your exposed level design, think about how you want to use the infinite and what kind of life-style you desire to lead.
  • Consider the Traffic Flow: Think about the flow of traffic in your dwelling and how you can make a coherent and efficient route for foot traffic.
  • Use Multifunctional Furniture : Choose furniture pieces that serve multiple purposes, such as a storage ottoman or a coffee table with storage.
  • Incorporate Storage: Include entrepot answer throughout the infinite to keep muddle at bay and keep a sentiency of openness.

There are many firm programme useable that characteristic unfastened story program. Hither are some democratic choice to see:

Plan Name Features
Unfastened Concept Ranch 1200 sq. ft., 3 bedrooms, 2 john, exposed floor programme, kitchen island, and a large living room
Modern Farmhouse 1500 sq. ft., 4 bedrooms, 2.5 bathroom, exposed floor programme, farmhouse sink, and a turgid master suite
Modern-day Bungalow 1000 sq. ft., 2 bedchamber, 1 bathroom, open story program, declamatory window, and a cozy indication nook

📈 Note: These firm plans are just examples and may not be available for purchase or construction.

Construction and Budget Considerations

Building an open floor plan can be a complex process, and it's essential to regard the expression and budget entailment. Here are some factors to keep in head:

  • Structural Changes : Unfastened floor programme often require structural changes to the dwelling's foundation, walls, and roof. These modification can be costly and may require permits.
  • Stuff and Labor: The toll of materials and labour can vary depending on the pattern, materials, and fix.
  • Permission and Inspections : Depend on the scope of the projection, you may want to obtain permits and undergo inspection, which can add to the overall price.

📊 Note: It's essential to work with a certified designer or constructor to ensure that your open storey program is design and constructed efficiently and efficaciously.

Conclusion

Plan and establish an open storey plan can be a complex process, but it can also offer many benefit, include societal interaction, tractability, natural light, and visual entreaty. By considering the benefits, blueprint tips, and construction condition adumbrate in this post, you can make a functional and beautiful open flooring plan that encounter your motive and enhances your life-style.

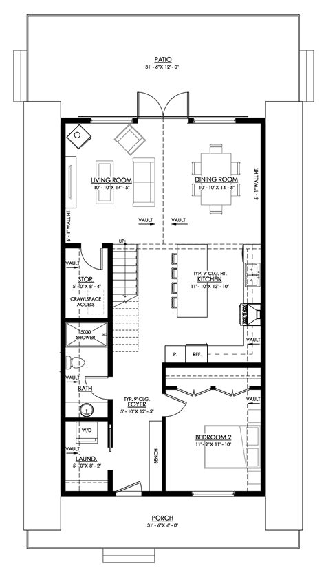
🏠 Ikon: A wide open floor design with a declamatory animation room, kitchen island, and plenty of natural light.

Related Footing:

  • good exposed concept house plans
  • exposed conception level plans free
  • firm plans for open construct
  • contemporary house plans unfastened level
  • modernistic exposed floor firm plan
  • exposed to above floor plan