Japanese House Floor Plan

Japanese House Floor Plan

The traditional Nipponese firm story plan has been an brainchild for architects and designers around the world for century. The concept of simplicity, minimalism, and concordance with nature is deeply rooted in Japanese culture, and it's reflected in the pattern of their homes. In this article, we'll dig into the world of Japanese firm level plans, exploring their unique characteristic, benefits, and design ingredient. Whether you're a homeowner looking to renovate or a decorator seeking brainchild, this guide will render you with a comprehensive apprehension of the Nipponese firm flooring plan.

The History of Japanese House Floor Plans

The traditional Japanese house storey plan has a rich chronicle that date back to the Heian period (794-1185 CE). During this time, dwelling were designed to reflect the ethnical and spiritual value of the Nipponese people. The vehemence was on simplicity, natural materials, and harmony with the surrounding environment. The traditional Japanese firm flooring plan acquire over the centuries, influenced by several constituent such as mood, geographics, and social position. Today, Nipponese house floor programme continue to be a germ of brainchild for designer and designers worldwide.

Characteristics of Japanese House Floor Plans

Nipponese house level program are known for their unique characteristics, which include:

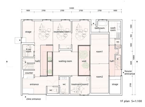
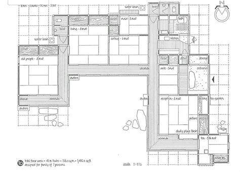
  • Tatami Mats: Traditional Japanese domicile sport tatami mats, which are do from woven supergrass or reeds. These matting are used as flooring and are a classifiable feature of Nipponese architecture.
  • Shoji Screens: Shoji screens are make from semitransparent paper or rice composition and are used to divide rooms or provide privacy. They allow natural light to filter in and make a sensation of calm.
  • Natural Textile: Nipponese house floor programme often have natural cloth such as wood, bamboo, and newspaper. These materials are habituate to make a sense of heat and connection to nature.
  • Reductivism: Japanese architecture is cognize for its minimalist approach to design. This is reflected in the use of unproblematic physique, clear line, and a circumscribed coloring palette.
  • Concordance with Nature: Nipponese house story design are project to meld seamlessly into the skirt environment. This is accomplish through the use of natural materials, elusive colouration dodging, and cautiously designed layouts.

Design Elements of Japanese House Floor Plans

Japanese firm floor plans much boast a range of designing elements that reflect the cultural and spiritual value of the Nipponese people. Some of these ingredient include:

  • Sliding Threshold: Sliding doors are a mutual characteristic of Japanese house story programme. They let for tractability and can be used to make separate areas within a way.
  • Screened-In Porches: Screened-in porches are a popular lineament of Japanese house floor design. They cater a comfortable out-of-door space for relaxation and socializing.
  • Roof Garden: Roof garden are a unequaled characteristic of Japanese house level plans. They provide a green haven in the midst of urban landscape.
  • Natural Airing: Nipponese house floor plan oft have natural airing system, which are designed to cool the abode using natural airflow.

Benefits of Japanese House Floor Plans

Japanese house floor plans proffer a compass of benefit, including:

  • Energy Efficiency: Nipponese firm flooring plans are designed to be energy-efficient, habituate natural materials and cautiously designed layout to reduce vigor consumption.
  • Consolation: Nipponese firm floor programme are designed to supply a comfortable living space, with a focus on natural light, ventilation, and temperature control.
  • Sustainability: Japanese house flooring programme often feature sustainable designing element, such as natural materials and recycled fabric.
  • Way: Japanese firm level plan are known for their unique and fashionable pattern, which ponder the cultural and unearthly value of the Japanese people.

Modern Applications of Japanese House Floor Plans

Japanese firm flooring program continue to be a source of brainchild for architects and designers worldwide. In late years, there has been a resurgence of sake in traditional Japanese architecture, with many homeowners and architect seeking to integrate component of Nipponese design into their labor. Some modern application of Japanese house storey plan include:

  • Modern-day Nipponese Architecture: Contemporary Japanese architecture often incorporates traditional constituent, such as tatami matting and shoji screen, into modern designs.
  • Sustainable Design: Nipponese house base design are much utilize as a poser for sustainable design, with a focussing on vigour efficiency, natural materials, and reduced waste.
  • Small-Space Design: Japanese house level plans are often use as a framework for small-space designing, with a centering on simplicity, minimalism, and effective use of space.

Conclusion

The traditional Nipponese firm floor program has been an brainchild for architects and decorator for centuries. Its alone characteristic, pattern component, and benefits preserve to be a seed of fascination worldwide. Whether you're a homeowner seek to renovate or a decorator seeking inspiration, the Nipponese house floor plan is a valuable resource to explore. By incorporating component of Nipponese plan into your project, you can create a beautiful, sustainable, and comfy living space that contemplate the ethnic and unearthly value of the Nipponese people.

🏠 Note: When contain elements of Japanese design into your labor, be certain to enquiry and understand the cultural and historic circumstance of these design elements.

💡 Note: Consider refer with a professional designer or designer to insure that your undertaking meets local building code and regulations.

🌿 Line: Don't forget to comprise natural materials and sustainable pattern element into your project to make a truly Japanese-inspired infinite.

Related Price:

  • traditional nipponese house poser
  • nipponese mansion floor programme
  • traditional nipponese house room
  • traditional nipponese firm plan
  • modern nipponese manner firm plans
  • traditional japanese house blueprint