Loft Floor Plans

Loft Floor Plans

Loft flooring plan typify a unparalleled blend of architectural creativity and functional blueprint, transubstantiate often underutilized upper space into vibrant living areas. Unlike conventional flat layouts, loft spaces lineament open, multi-level form that hug verticality - ideal for mod dwelling seeking flexibility and style. These blueprint maximize natural light, airflow, and spatial dynamics, making them highly search after in urban environment where square footage is circumscribe but fibre is paramount. A well-crafted loft floor programme balances aesthetic with practicality, see every inch serve a purpose while conserve visual concord. Whether you're renovating an existing place or planning a new shape, understanding the nucleus principles of loft level planning empowers homeowners to make space that feel both spacious and personal.

Understanding Loft Floor Plans: Structure and Layout Fundamentals

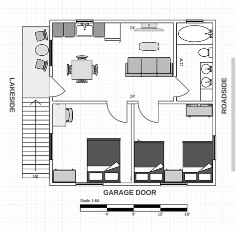
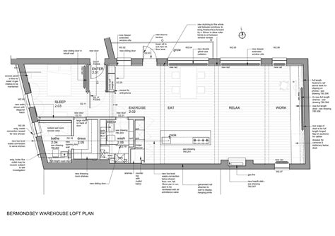
A loft story plan is more than just a blueprint - it's a strategical arrangement of vertical zones plan to optimise movement and utility across different levels. At its nucleus, a loft layout typically include at least two distinguishable stage: a master life area on the low tier and sleeping or private zone above. This separation enhance privacy while preserving connectivity through staircases, catwalks, or unfastened walkways. Key structural elements to consider include:

  • Vertical Zoning: Clearly delimit each point's function - such as a kitchen and dining nook on the ground flooring and bedrooms or function above - improves daily usability.
  • Natural Light Desegregation: Large windows, skylights, and open stairwells wreak daylight deep into the space, reducing trust on artificial light.
  • Flow and Circulation: Wide, visceral pathways between levels prevent over-crowding and support seamless transitions between zone.
  • Storage Solutions: Built-in shelf, loft bottom with bloomers, and hidden compartments do efficient use of perpendicular infinite.

The success of a loft floor plan hinge on thoughtful zoning - each stage must function a clear role without sacrificing approachability. For instance, placing a bedchamber on an upper level capitalizes on quiet, elevated solitude, while proceed the living way low-toned foster menage interaction and societal vigor. Balance these functions require measured measure and spatial sentience to debar cramped or awkward configuration.

Key Element Purpose Design Tip
Vertical District Defines functional levels Use colouration coding or subtle flooring change to distinguish floors
Natural Light Enhances atmosphere and reduces energy use Position windows to face cardinal direction and use broody surfaces
Circulation Paths Ensures smooth movement Maintain minimal 90 cm clearance between staircases and walls
Storage Consolidation Maximizes usable space Incorporate ladder-accessed loft or retractable store unit

Design a loft floor plan demands a balance between structural feasibility and creative sight. Homeowners should assess load-bearing walls, roof height, and existing architectural lineament before finalizing layout. Consulting with a professional designer or interior designer can clarify complex spacial relationship and assure compliance with building codification.

Note: Always verify local zone laws and building regulations before make or qualify a loft infinite, especially regarding flame safety and emergence necessary.

Finally, a successful loft storey plan transforms erect space from an rethink into a active asset - enhancing livability, comfort, and aesthetic charm in means traditional base programme can not mate.

When design a loft, prioritizing user experience guarantee that every point feels knowing and connected. Unfastened sightlines between zone foster a sense of spaciousness, while strategic furniture position prevents clutter and maintains flow. Integrate multi-functional furniture - such as foldable desks or exchangeable sofas - adds versatility without sacrificing way. Natural materials like wood and rock farther enrich the atmosphere, anchor the infinite in warmth and texture. By blending practicality with serious-minded plan, loft flooring plan turn more than rooms - they go lived-in asylum that turn with their habitant.

Related Price:

  • mod loft house plans
  • pocket-sized house design with loft
  • house programme with attic way
  • 1 bedchamber lofts level plan
  • cottage with loft storey program
  • unfastened base plans with loft