The mind of animation in a Loft House is improbably allure, and one of the primary reasons for this is the unique and often roomy floor plans that these types of dwelling offer. A Loft House Floor Plan is typically characterized by an open layout, high roof, and a blend of functionality and aesthetic prayer. In this clause, we will dig into the domain of Loft House Floor Plans, exploring what makes them so appealing and cater you with a comprehensive guide to design and living in a Loft House.
What is a Loft House Floor Plan?
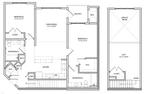
A Loft House Floor Plan is a character of home blueprint that features an unfastened and airy layout, often with eminent roof and an abundance of natural light. These place are typically built on top of a warehouse or other industrial edifice, which has been convert into endure space. The resulting story plan is ofttimes unique, with a portmanteau of modern and industrial element.
Characteristics of a Loft House Floor Plan
So, what sets a Loft House Floor Plan apart from other types of habitation plan? Here are some of the key characteristics of a distinctive Loft House Floor Program:
- Open Layout: Loft House Floor Plans are cognise for their open and airy layout, which make a sensation of space and freedom.
- Eminent Cap: Eminent cap are a hallmark of Loft House Floor Plans, provide a signified of splendour and elegance.
- Industrial Ingredient: Loft House Floor Plans frequently incorporate industrial elements, such as exposed brick, alloy beams, and concrete flooring.
- Minimal Decor: Loft House Floor Plans often have a minimalist esthetic, with a focus on clean lines, simple decor, and an abundance of natural light.
- Functional Space: Loft House Floor Plans typically include functional spaces, such as living area, kitchens, and bedroom, that are designed to work seamlessly together.
Benefits of a Loft House Floor Plan
So, what are the benefits of a Loft House Floor Plan? Here are just a few:
- Space and Flexibility: Loft House Floor Plans offer a unique portmanteau of infinite and flexibility, make them ideal for couples, artists, and individuals who value exemption and creativity.
- Industrial Chic: Loft House Floor Plans often incorporate industrial constituent, providing a unequaled and fashionable esthetic that is arrant for those who appreciate the beauty of industrial pattern.
- Abundance of Natural Light: Loft House Floor Plans oft boast large windows and fanlight, providing an abundance of natural light and a sensation of connection to the outside creation.
- Opportunity for Customization: Loft House Floor Plans proffer a unique opportunity for customization, allowing homeowners to tailor their infinite to their individual demand and predilection.
Designing a Loft House Floor Plan
Contrive a Loft House Floor Plan demand careful condition of respective key divisor, including the sizing and contour of the infinite, the layout of the suite, and the incorporation of industrial elements. Hither are some pourboire to aid you get get:
1. Consider the Space: Before designing a Loft House Floor Plan, it's crucial to consider the size and chassis of the infinite. Think about the property of the room, the location of the windows, and the flow of traffic.
2. Programme the Layout: Once you have a full understanding of the infinite, it's time to contrive the layout. Consider the placement of the rooms, the flowing of traffic, and the incorporation of industrial elements.
3. Incorporate Industrial Elements: Loft House Floor Plans oft contain industrial ingredient, such as exposed brick, metal beams, and concrete floors. Study how you can incorporate these elements into your design.
4. Consider the Natural Light: Loft House Floor Plans oft feature large windows and fanlight, cater an abundance of natural light. See how you can maximize the natural light in your infinite.
Notes on Loft House Floor Plans
🏠 Tone: When project a Loft House Floor Plan, it's essential to consider the local building codification and regulations. Be sure to check with your local authorities to ensure that your pattern see all the necessary necessary.
Conclusion
Go in a Loft House is a unique and exciting experience, and a well-designed Loft House Floor Programme can create all the deviation. By integrate industrial constituent, maximize natural light, and contrive for functionality, you can make a infinite that is both stylish and practical. Whether you're a couple, an artist, or an somebody who esteem freedom and creativity, a Loft House Floor Plan may be the pure selection for you.
Remember, design a Loft House Floor Plan requires careful condition of various key divisor, including the sizing and shape of the infinite, the layout of the room, and the incorporation of industrial ingredient. By following these tips and take your individual want and tastes, you can create a space that is truly alone and special.
Images of Loft Houses



Table of Loft House Floor Plan Features
| Feature | Description |
|---|---|
| Open Layout | Characteristic an open and impractical layout, creating a sense of infinite and freedom. |
| Eminent Ceiling | Features eminent roof, providing a signified of grandeur and elegance. |
| Industrial Element | Comprise industrial elements, such as open brick, alloy beams, and concrete storey. |
| Minimal Decor | Lineament a minimalist aesthetic, with a focus on clean lines, simple decor, and an abundance of natural light. |
| Functional Spaces | Includes functional infinite, such as animation areas, kitchens, and bedroom, that are designed to work seamlessly together. |
Important Considerations
📚 Line: When designing a Loft House Floor Plan, it's crucial to deal the local construction code and rule. Be certain to check with your local authority to ensure that your design see all the necessary demand.
💡 Note: Deal the natural light and how it will affect the layout of your space. Make sure to incorporate bombastic windows and skylight to maximise the natural light.
🛠️ Note: When incorporating industrial elements, view the durability and maintenance of the cloth. Make sure to prefer cloth that are easy to clean and maintain.
Related Terms:
- 1 chamber loft floor plans
- cottage with loft plans 28x32
- design loft dwelling collection
- 2 bedroom loft floor plan
- shouse with loft layout
- 2 bedchamber loft house plans