Luxury Master Suite Floor Plans

Luxury Master Suite Floor Plans

When it arrive to design a sumptuous animation space, the master suite is often the crown gem of a dwelling's design. A well-planned Luxury Master Suite Floor Plan can make all the difference in creating a serene and soft retreat for its occupants. In this clause, we'll delve into the world of opulence overlord suites, exploring the key elements that create them truly special, and supply tips on how to create your own stunning Luxury Master Suite Floor Plan.

Key Elements of a Luxury Master Suite

A sumptuosity superior suite is more than just a bedchamber and bathroom - it's a refuge that offers a hazard to miss the focus of daily life. Some key ingredient that define a sumptuosity master cortege include:

  • Spaciousness: A generous level area that permit for a comfortable animation infinite, often with a sit country or reading corner.
  • High-end finishing: Top-of-the-line materials, such as marble, granite, or hardwood, that create a sentiency of opulence and sophistication.
  • Natural light: Large windows or skylights that flood the infinite with natural light, make a sentience of luminance and buoyancy.
  • Comforting atmosphere: Soothing colouration schemes, plush rug, and cozy fabric that raise relaxation and tranquility.
  • State-of-the-art comforts: Upgrades like het storey, steam showers, and rainfall showerhead that add a touch of luxury to the space.

Master Suite Floor Plan Ideas

When designing a sumptuosity maestro retinue, there are respective floor plan idea to consider:

  • Spa-inspired: Incorporate elements like a freestanding tub, a separate shower, and a steam room to create a spa-like atmosphere.
  • Retreat-style: Design a cozy reading corner or sit area with plushy furniture and soft lighting to create a sense of privacy.
  • California-style: Incorporate a spacious outdoor country, such as a balcony or patio, to obnubilate the line between indoors and open.
  • Rustic-chic: Use natural materials like reform wood, rock, and brick to make a cozy, earthy flavor.

Measuring and Scaling Your Master Suite

When creating a Luxury Master Suite Floor Plan, it's crucial to deal the space's dimension and proportions. Hither are some tips to keep in brain:

  • Measure the room: Take precise measurements of the room, include any obstacles like window, doorway, or plumb fixture.
  • Scale your design: Use a scale swayer or package to ensure that your designing is harmonious to the infinite.
  • Take the flowing: Think about the traffic flowing and how the space will be used. Will thither be a seated country or indication nook?

Layout Considerations

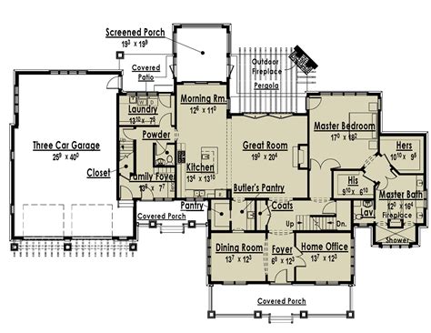
When it comes to laying out your overlord suite, there are several constituent to deal:

  • Bathroom placement: View the bathroom near the bedroom, but also consider the flow of the space and the positioning of any windows or doors.
  • Closet position: Property the wardrobe in a coherent positioning, such as near the bedroom or bathroom, to make a convenient and approachable storage infinite.
  • Layout for office: See the function of the infinite and design accordingly. for case, if you plan to use the space as a home role, you may want to comprise a dedicated workspace.

Creating a Luxury Master Suite Floor Plan

With these ingredient and condition in judgement, hither's a step-by-step guide to creating your own Luxury Master Suite Floor Plan:

  1. Measure the infinite: Occupy precise measuring of the way, including any obstacles like window, doors, or plumbing fixtures.
  2. Make a scale draftsmanship: Use package or a scale rule to create a scaled draftsmanship of the space.
  3. Add layout element: Incorporate the key component of a opulence superior suite, such as a spacious bedchamber, high-end finishes, and natural light.
  4. Consider the flow: Think about the traffic flowing and how the infinite will be employ. Will there be a sitting region or indication corner?
  5. Refine your design: Iterate on your plan, making modification as involve to make a cohesive and functional space.

Finalizing Your Design

Once you've create your Sumptuosity Master Suite Floor Plan, it's clip to finalize your plan:

  • Make adjustments: Polish your design based on any changes or updates.
  • Make a 3D model: Use software to make a 3D framework of your design, countenance you to visualise the space in greater item.
  • Do a final walk-through: Guide a practical walk-through of your plan, ensuring that it encounter your motive and top your prospect.

💡 Billet: Always consult with a professional designer or decorator when create a custom floor plan to control that it encounter local building codes and regulations.

Finishing Touches

With your Opulence Master Suite Floor Plan complete, it's time to add the finishing ghost:

  • Select materials: Choose stuff that align with your pattern aesthetical, such as hardwood storey, marble countertop, or lavish carpet.
  • Add fixtures and furniture: Incorporate high-end regular and furniture, such as decorator light, ornate mirror, and argument furniture pieces.
  • Create a soothing ambience: Incorporate appeasement constituent, such as a water feature, a statement piece of art, or a soothing color dodge, to create a passive air.

Ultimate Luxury Master Suite

A opulence lord suite is more than just a bedroom and bathroom - it's a refuge that proffer a fortune to escape the stresses of everyday life. By incorporating key elements, such as spaciousness, high-end finishes, natural light, and soothe ambience, you can make a genuinely exceptional infinite that exceeds your expectation.

Summarizing Key Points

  • Measuring and scale: Conduct precise measuring of the room and scale your design to assure that it's proportionate to the infinite.
  • Layout circumstance: Consider the stream of the infinite, the placement of the toilet and closet, and the office of the space when designing your Luxury Master Suite Floor Plan.
  • Adding finishing touches: Select cloth, add fixity and furniture, and make a soothing ambiance to discharge your blueprint.

Stunning Luxury Master Suite Floor Plans

Looking for inspiration for your own Luxury Master Suite Floor Plan? Hither are some arresting illustration to deal:

  • Mod luxury: A sleek, contemporaneous design with clean lines, minimum decoration, and an accent on natural light.
  • Rustic-chic: A cosy, crude design that incorporates natural materials, like regenerate wood and stone, to make a warm and inviting atmosphere.
  • California-style: A wide, aired plan that blurs the lines between indoors and outdoors, with a focus on natural light and out-of-door living.

Embark on Your Luxury Master Suite Journey

With these tips and brainchild, you're ready to ship on your luxury overlord suite journeying. From measuring and scale to adding finishing touches, remember to prioritise the key elements that make a opulence master suite truly especial - spaciousness, high-end finishing, natural light, and comforting ambiance. Create a space that top your expectation and render a refuge for relaxation and rejuvenation.

Related Terms:

  • victor chamber rooms layout ideas
  • master cortege storey design layouts
  • 24x24 master cortege plans
  • 16x20 master suite storey plans
  • orotund luxury mansion level design
  • victor retinue floor plans illustration