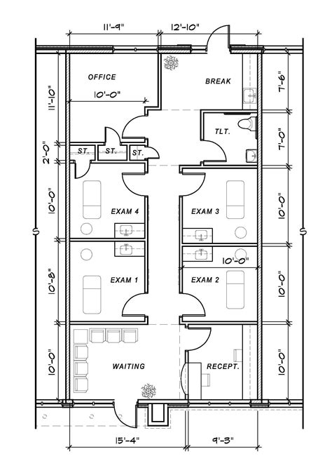
Medical Clinic Floor Plan

Medical Clinic Floor Plan

When design a aesculapian Clinic Floor Plan, there are various ingredient to consider to check that it meets the needs of both patients and healthcare professional. A well-designed Clinic Floor Plan should be efficient, safe, and easy to navigate, while also accommodating various patient populations and healthcare professional. In this article, we will explore the key considerations for contrive an effective Clinic Floor Plan, including the canonic layout, circulation, and functional areas.

Understanding the Needs of a Medical Clinic Floor Plan

A Medical Clinic Floor Plan is a critical component in the delivery of healthcare service. It serves as the groundwork of the clinical operation of a healthcare installation, and its design can importantly touch the overall patient experience. To make an effective story plan, it is crucial to understand the demand of the clinic, include the patient flow, healthcare staff, and support service.

Key Components of a Medical Clinic Floor Plan

A well-designed Medical Clinic Floor Plan typically includes the following key components:

  • Wait region for patients and families
  • Scrutiny way and treatment areas for healthcare professionals
  • Administrative role and support services
  • Circulation areas, include corridors and staircase
  • Service areas, such as laboratories, radioscopy, and drugstore
  • Utility country, include restrooms, storehouse, and supplying region
  • Park and drop-off country for patients and visitant

Basic Layout Considerations

  1. Patient Flow: The patient flow should be leisurely to navigate, with open signage and minimal waiting times. This can be attain by placing high-traffic areas, such as waiting rooms, near the entrance and locate examination rooms and other patient area in strategical position to denigrate travel clip.
  2. Healthcare Staff Circulation: Healthcare faculty should be able to move expeditiously throughout the clinic, with decent circulation areas and minimal clutter. This can be reach by order staff zone, such as nurse stations, near examination rooms and administrative region.
  3. Administrative and Support Areas: Administrative and support areas, such as function and lab, should be located near the independent corridor to belittle travel time for faculty and patients.
  4. Natural Light: Natural light should be incorporated into the design to promote a positive patient experience and cut the need for contrived lighting.
  5. Racket Levels: The clinic should be design to maintain a comfy noise level, with minimal noise disruptions from adjacent region.

Functional Areas

The chase are the key functional country that should be include in a Clinic Floor Plan:

  • Waiting Areas: Look area should be comfy, clean, and well-maintained. The blueprint should contain seats, lighting, and comforts, such as telly or internet admission.
  • Scrutiny Room: Scrutiny rooms should be spacious, well-ventilated, and equipped with necessary aesculapian equipment, such as desk, chairs, and test table.
  • Treatment Areas: Treatment areas should be designed to suit a variety of treatments, include injections, tomography, and routine.
  • Administrative Part: Administrative offices should be located in restrained areas, with adequate store and equipment.
  • Support Service: Support service, such as laboratories, radiology, and pharmacies, should be located near examination and treatment areas to understate travel clip.

Design Considerations

The following pattern considerations should be taken into account when create a Clinic Floor Program:

  • ADA Complaisance: The clinic should be designed to meet the Americans with Disabilities Act (ADA) requirements, include approachable road, convenience, and facilities.
  • Sustainability: The clinic should be designed to minimize environmental encroachment and see energy efficiency standards.
  • Infection Control: The clinic should be designed to denigrate the risk of infection, with equal ventilation, sanitation, and dissipation disposition.
  • Technology Consolidation: The clinic should contain technology, such as aesculapian equipment, estimator, and communicating systems, to enhance patient aid and administrative efficiency.

Implementation and Maintenance

Once a Clinic Floor Plan has been designed, it is crucial to enforce and keep it effectively. This includes:

  • Staff: Ensure that the clinic has tolerable staff to endorse the operations and care of the Clinic Floor Plan.
  • Training: Cater ongoing training to faculty on the Clinic Floor Plan, its functionality, and the up-to-the-minute engineering and equipment.
  • Maintenance: Regularly inspect and maintain the clinic to see that it continue safe and effective.

🔑 Billet: Veritable maintenance is crucial to check that the Clinic Floor Plan rest effective and functional.

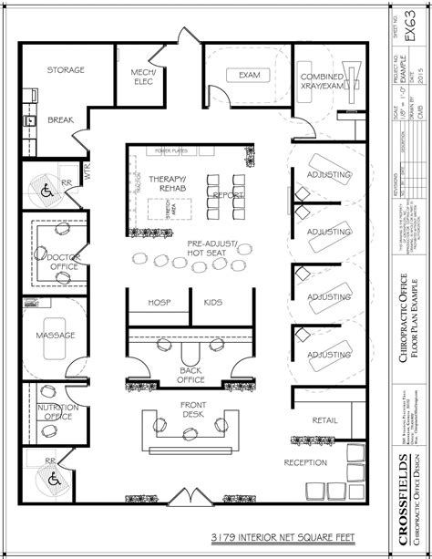
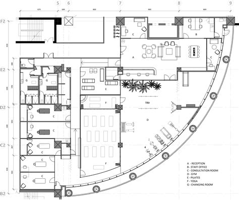
Example of a Clinic Floor Plan

Area Room Number Capacity Property
Waiting Area 1 25 12' x 12'
Scrutiny Room 1 2 1 12' x 12'
Examination Room 2 3 1 12' x 12'
Administrative Bureau 4 1 12' x 12'

Conclusion: Effective Medical Clinic Floor Plan Design

A well-designed Medical Clinic Floor Plan is all-important to providing high-quality patient concern and efficient operation in a healthcare installation. By understanding the motive of patient and healthcare staff, incorporating key ingredient, and considering designing and upkeep factors, a Clinic Floor Plan can be designed to meet the alone needs of a healthcare brass.

Related Terms:

  • small aesculapian role construction design
  • complimentary medical clinic floor design
  • aesculapian clinic base plan package
  • medical office edifice flooring plans
  • solid footage for aesculapian clinic
  • affordable modular medical buildings