Mi Homes Floor Plans

Mi Homes Floor Plans

The creation of place pattern has undergone a important transformation in recent years, with homeowners search to create spaces that not only ponder their personal style but also cater to their specific needs and preferences. One of the most sought-after result is Mi Homes Floor Plans, which offer a wide scope of plan choice and customization theory. In this blog post, we will explore the ins and outs of Mi Homes Floor Plans, include their benefits, plan elements, and how to comprise them into your home restoration project.

What are Mi Homes Floor Plans?

Mi Homes Floor Plans are a mod and modern approach to dwelling designing, created by top architect and decorator. These floor design offer a wide-eyed range of options, from simple and minimalist to complex and opulent, to suit various preference and budgets. The programme are designed to be elastic, allowing householder to tailor-make and modify them to fit their specific motivation and penchant.

Benefits of Mi Homes Floor Plans

Mi Homes Floor Plans offer numerous benefit, including:

  • Flexibility and customization: Householder can opt from a wide range of layout and design to make a infinite that suits their lifestyle and preferences.
  • Cost-effectiveness: Mi Homes Floor Plans can assist householder save money on building costs by understate wastage and waste.
  • Environmental sustainability: These base program prioritise vigor efficiency and sustainability, reducing the environmental impact of the property.
  • Meliorate functionality: Mi Homes Floor Plans are design to optimise infinite and create functional animation areas.
  • Increase resale value: These flooring plans can increase the resale value of the property, get it more attractive to potential buyers.

Design Elements of Mi Homes Floor Plans

Mi Homes Floor Plans often feature a compass of design factor, include:

  • Open-plan living spaces
  • High roof and floor-to-ceiling window
  • Considerate light
  • Minimalist colouring pallet
  • Smart domicile engineering consolidation
  • Innovative storage solution

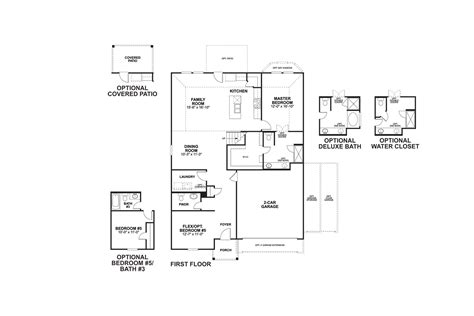
Mi Homes Floor Plans offer a extensive compass of layouts, including:

Layout Description
Characterise by open-plan living space and minimum walls
MINIMALIST LAYOUT Feature clean line, minimal ornamentation, and a centering on simplicity.
MODERN FARMHOUSE Combines traditional elements with modern touches and an open-plan layout.

When choosing a Mi Homes Floor Plan, consider the next element:

  • Infinite constraint: Measure your lot and select a design that go within your boundaries.
  • Family size and composition: Consider the routine of chamber, go country, and entrepot needs.
  • Personal way: Choose a program that aligns with your design preferences and life-style.
  • Climate and region: Choose a design that conduct into account local climate and environmental constituent.
  • Budget: Determine your budget and choose a plan that suits your fiscal means.

🔧 Representative: You may require to deal a layout with more bedrooms if you have a large family.

  • Aspect at the overall aesthetic: Reckon about the way, colour pallette, and overall way of the plan.
  • Consider the functionality: Assess the plan's layout and ensure it meet your lifestyle and needs.
  • Check the sustainability factors: See if the plan incorporate eco-friendly feature and energy-efficient scheme.

📈 Start by online browsing platforms or working with an designer who has experience in Mi Homes architectural designing.

Once you have select your Mi Homes Floor Plan, here are some final tips and tricks to enforce it successfully:

  • Don't be afraid to make modification: Work with your architect to incorporate change to your original program if involve.
  • Attention to detail: Pay care to the smallest item, from dump to regular.
  • Quality fabric: Use high-quality stuff to bring your design to living.

💰 Ensure that your pattern is adjust with the town-planned rules and regulations of your community.

The Future of Home Design with Mi Homes Floor Plans

As the requirement for sustainable and eco-friendly animation continues to rise, Mi Homes Floor Plans are poise to go the average in home design. With their tractability, customization options, and rivet on environmental sustainability, it's no marvel why these floor programme are acquire popularity worldwide. Whether you're progress a new home or renovating an survive one, Mi Homes Floor Plans proffer a wide range of options to suit your needs and druthers.

🌎 Incorporating sustainable elements like solar jury and expansive ceiling line to overstate the eco-friendly aspects.

Review the process, and sum it up in a final note

The search for the consummate Mi Homes Floor Plan can be overwhelm with so many choices. Remember to maintain your personal style, your menage's needs, and the budget in head and count your alternative carefully. With this guide, you will be capable to shell out something tha meet all your finish with the smart portmanteau of full design and fantastic budget…

Related Footing:

  • mi domicile pattern packages
  • mi homes website
  • mi homes floor plans ohio
  • mi abode old floor plans
  • mi habitation builder
  • mi homes miranda floor design