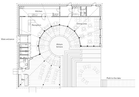
Modern Restaurant Floor Plan

Modern Restaurant Floor Plan

When it arrive to design a modernistic eatery floor plan, there are several key elements to see to create a functional and inviting infinite for your customers. From the layout and flow of the dining area to the location and availability of amenities such as restrooms and coating checks, every detail issue when it come to creating a memorable dining experience. In this blog post, we will explore the key ingredient of a modern restaurant floor program, including the importance of flow, the role of illumine and sound, and the encroachment of engineering on the dining experience.

The Importance of Flow in a Modern Restaurant Floor Plan

A well-designed floor design is crucial for create a politic and efficient flowing of customers through the eatery. This includes the layout of the dine area, the positioning of the bar, and the accessibility of restroom and other amenities. By make a coherent flow, you can secure that customer are able to navigate the infinite easily and quickly, which can aid to reduce wait times and better the overall dining experience.

  • Create a Open Footpath: Make sure that there is a open tract for customer to postdate as they locomote through the restaurant. This can include the use of usher, such as arrow or colours, to direct customers through the infinite.
  • Minimize Traffic: Minimize traffic in high-traffic country, such as near the bar or kitchen, by make a open pathway and using barriers or dividers to severalize areas.
  • Use Optical Assistance: Use visual assist, such as signs or displays, to direct customers through the infinite and provide information about the eatery and its offerings.

The Role of Lighting and Sound in a Modern Restaurant Floor Plan

Alight and sound play a critical role in make a welcoming and tempt atmosphere in a modernistic restaurant. By carefully selecting light and intelligent factor, you can make a unique and memorable dining experience for your client.

  • Use Ambient Lighting: Use ambient lighting to make a warm and tempt atmosphere in the dining area. This can include the use of table lamp, floor lamp, or overhead light.
  • Use Accent Lighting: Use accent lighting to foreground key elements of the space, such as art or architectural features.
  • Control Sound Levels: Control sound levels in the restaurant to create a comfy and relaxing atmosphere. This can include the use of ground music, sound-absorbing fabric, or sound-reducing windows.

The Impact of Technology on the Dining Experience

Technology plays a substantial function in the dining experience, from on-line order and defrayment system to digital carte board and interactive cubicle. By integrate engineering into your eatery's floor plan, you can create a modernistic and efficient dining experience for your client.

  • Use Digital Menu Board: Use digital menu boards to display menus, prices, and special. This can facilitate to cut waiting time and ameliorate the overall dining experience.
  • Implement Online Ordering and Payment Systems: Implement online order and payment systems to let customers to put order and pay for their meals from the solace of their own homes.
  • Use Interactive Booth: Use interactive kiosks to provide customer with information about the restaurant and its offerings, as easily as to alleviate online order and payment.

Key Elements of a Modern Restaurant Floor Plan

When designing a modern restaurant flooring programme, there are several key element to take. These include:

Factor Description
Dine Area A spacious and inviting area for customers to dine and savour their meals.
Bar Area A designated area for customer to order and relish boozing and snacks.
Restrooms A light and well-maintained area for client to use the convenience.
Coat Check A designated country for client to store their coating and other belongings.
Amenity Amenities such as Wi-Fi, bill place, and seating areas can enhance the dining experience.

📚 Line: It's essential to consider the flow and layout of the eatery when design the floor plan.

Final Considerations

When designing a modernistic eatery level plan, there are various final condition to keep in brain. These include:

  • Flexibility: Make a floor programme that is flexile and can adapt to changing needs and circumstances.
  • Functionality: Ensure that the story plan is functional and encounter the needs of customers and faculty.
  • Atmosphere: Create a welcoming and inviting air that reflects the eatery's brand and esthetic.

💡 Tone: Consider rent a professional to help with the designing and execution of the flooring plan.

A mod restaurant flooring plan is more than just a physical infinite - it's a manifestation of the eatery's brand, values, and commitment to render a memorable dining experience for customer. By carefully considering the flowing, lighting, sound, and engineering, you can create a space that is both functional and inviting, and that reflect the unique personality and character of your eatery.

Related Footing:

  • minor eatery layout design
  • small eatery floor plan layout
  • eatery flooring plan with dimension
  • 5000 sq ft eatery programme
  • fine dining restaurant floor design
  • modern eatery layout