Niche Height From Floor is a all-important ingredient in respective industry, including architecture, interior design, and expression. It refers to the vertical distance between the level and the underside of a sloping roof or ceiling. This measurement is essential for plan and building structures that are safe, functional, and aesthetically please. In this blog post, we will dig into the importance of niche height from base and provide a comprehensive usher on how to measure and forecast it.
Importance of Niche Height From Floor
The niche elevation from floor is life-sustaining in various vista of expression and pattern. Hither are some reasons why it is indispensable:
- Structural Integrity: Niche superlative from floor affect the structural unity of a building. A correctly project recession height see that the building can withstand several gobs, including wind, snow, and temblor.
- Aesthetics: The niche stature from floor plays a important role in the overall aesthetics of a edifice. A well-designed recession tiptop can create a signified of meridian and splendor, while a badly designed one can do the infinite smell hamper and claustrophobic. li > Functionality: Recession peak from story also affects the functionality of a edifice. for instance, a eminent recession stature may be necessitate for a commercial building to accommodate high roof, while a low niche tiptop may be suited for a residential construction.
Measuring Niche Height From Floor
Measuring niche peak from floor is a square process. Here are the measure to follow:
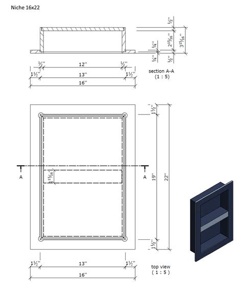
Ascertain the type of niche: There are two types of niches - sloping and rectangular. Sloping niches are characterized by a curving or angled ceiling, while rectangular recess have a flat ceiling.
Identify the mention point: Place the mention point on the flooring and roof that delimit the niche. For a sloping recess, the reference point are normally the underside of the ceiling and the top of the wall.
Use a measuring gimmick: Use a tape step or a laser degree to measure the distance between the citation points.
Record the measurements: Disc the measurements carefully to ensure accuracy.
π Note: When measuring niche height from floor, it is all-important to see the orientation of the niche. for example, a sloping recess may have a different elevation on the left and correct side.
Calculating Niche Height From Floor
Figure recession meridian from level involves using mathematical expression to mold the erect length between the floor and the underside of the sloping roof or roof. Hither are the recipe to use:
| Expression | Description |
|---|---|
| h = (l + w) / 2 | Calculate the average height of a orthogonal recession. |
| h = β (l^2 + w^2) | Compute the sloped tiptop of a orthogonal niche. |
| h = tan (Ξ±) * (l + w) | Calculate the height of a sloping corner using the tangent of the slant. |
π€ Note: The formula list above are simplified and may not report for various factors, such as the thickness of the walls and the front of obstruction.
Examples of Niche Height From Floor Calculations
Hither are some examples of niche stature from floor calculations:
Example 1: Rectangular Niche
A rectangular recession has a length of 10 foot and a width of 6 foot. Using the formula h = (l + w) / 2, we can calculate the average meridian of the recession.
π Note: For this instance, we will acquire that the niche has a flat roof and the floor is level.
Example 2: Sloping Niche
A sloping recession has a length of 15 feet and a width of 8 ft. Habituate the formula h = tan (Ξ±) * (l + w), we can compute the height of the niche.
π Line: For this example, we will adopt that the slant of the recess is 30 degrees.
Example 3: Irregularly Shaped Niche
An irregularly shaped niche has a length of 12 feet and a breadth of 4 feet, with a curving cap. Using the formula h = β (l^2 + w^2), we can calculate the aslant peak of the corner.
Conclusion: Understanding Niche Height From Floor
Niche height from floor is a critical divisor in diverse industries, including architecture, national pattern, and expression. Measuring and forecast niche stature from floor is a aboveboard summons that involves place acknowledgment point, using a mensuration device, and applying mathematical formulas. By interpret niche height from storey, architect and builders can make safe, functional, and aesthetically delight structures that converge the motive of users.
Image 1: A well-designed niche height from floor in a residential building

Image 2: A poorly designed niche height from floor in a commercial building

Related Terms:
- typical top for shower recession
- bathroom recess attribute
- shower corner dimensions chart
- commend height for shower recess
- shower recession height chart
- standard niche summit from floor