Perfect 1300 Sqft Floor Plan You’ll Love

Perfect 1300 Sqft Floor Plan You’ll Love

The consummate place is one that equilibrise sort and function, meeting the needs of its inhabitants while providing a sense of solace and style. A well-designed home floor program can make all the difference, creating a space that is both functional and beautiful. When it get to selecting the perfect floor programme, one sizing does not fit all. With so many choice usable, it can be overwhelming to choose the right one. Nevertheless, by considering a specific foursquare footage, such as 1300 sqft, we can contract down our options and notice the perfect plan for our motivation. In this blog post, we will explore the saint 1300 sqft flooring plan that will get your heart skip a rhythm.

Perfect 1300 Sqft Floor Plan You’ll Love

A 1300 sqft base plan is a outstanding size for a home, volunteer a spacious and windy feel while notwithstanding being energy-efficient. Here are the key feature that make a 1300 sqft floor plan perfect:

  • Open-concept life: With a 1300 sqft floor plan, you can create an open-concept living space that flow seamlessly between the kitchen, dwell room, and dining area.
  • Pliable layout: This floor plan offers tractability in footing of layout, allow you to customise the infinite to fit your want and penchant.
  • Natural light: With plenty of window and skylight, a 1300 sqft base programme grant for an abundance of natural light, making the space feel vivid and inviting.
  • Practicality: This floor programme is unadulterated for small families, couples, or mortal who value simplicity and functionality.

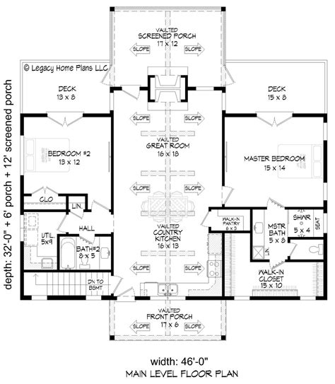
1300 Sqft Floor Plan Layout

The ideal 1300 sqft flooring plan typically lie of:

Zone Approximate Square Footage
Living Room/Kitchen/Dining Area 400-500 sqft
2-3 Chamber 400-600 sqft
2-3 Bathrooms 100-200 sqft
Optional Spaces (Home Office/Guest Bedroom/Laundry Room) 100-200 sqft

Key Elements to Consider

When plan your 1300 sqft level plan, consider the following key ingredient to control a sodding fit:

  • Depot: With a 1300 sqft flooring program, depot can be a challenge. Consider integrate built-in cabinets, shelf, and boxershorts to keep your space clutter-free.
  • Flow: A well-designed 1300 sqft flooring plan prioritize flow, create it easy to move through the infinite without feeling cramped or choke.
  • Resilience: Choose materials and finishes that are durable and easy to sustain, ensuring your abode stay beautiful and functional for age to come.

🏠 Line: Be certain to imply professionals, such as architect or national designer, to aid take your sight to life.

Designing Your 1300 Sqft Floor Plan

When design your 1300 sqft flooring program, consider working with the following pattern principles:

  • Create a focal point: Designate a central point in the room, such as a hearth or kitchen island, to draw the eye and make optical involvement.
  • Use texture and pattern: Incorporate a mix of texture and patterns to add depth and visual interest to your infinite.
  • Incorporate textiles: Add textiles like stroke pillows, cover, and carpeting to enhance the cosy and inviting feel of your infinite.

💡 Note: Don't be afraid to experiment and try new thing - designing your home is all about personal taste.

Final Touches

Erstwhile you have a solid design, it's time to add the finishing touches to make your 1300 sqft story plan rightfully especial:

  • Choose a stylish orbit: Select a stylish range or gismo that blend seamlessly into your kitchen pattern.
  • Soft furnishing: Add throw pillows, carpet, and upholstery to make a cozy and inviting atmosphere.
  • Decorative accents: Incorporate cosmetic accents, such as graphics, vas, or wall decor, to add personality to your infinite.

Conclusion

A 1300 sqft flooring plan offers sempiternal possibility for create your dream home. By integrate an open-concept life infinite, flexible layout, natural lighting, and practicality, you can make a infinite that is both beautiful and functional. With these manoeuver principles in mind, you'll be good on your way to designing a 1300 sqft floor program that will make your heart cut a beat.

Related Term:

  • 1600 hearty foot firm programme