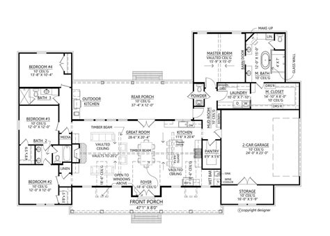
When it arrive to design the sodding 4-bedroom story plans, one level for every space, there are numerous factors to see. Space efficiency, natural lighting, and functionality are just a few of the essential elements to balance to create a dream home that meets the motive of your family. In this comprehensive guidebook, we'll delve into the intricacies of craft the everlasting 4-bedroom floor plans, covering the essential of one-story designs, clever infinite utilization, and how to maximise every inch of your abode.
The Importance of Space Efficiency
Space efficiency is essential when it comes to 4-bedroom flooring program, one tale for every space. With four bedchamber, a large kitchen, and possibly a few living country, it's easy to experience overwhelmed by the sum of space needed. However, with cunning design, you can make a signified of openness and liquidity throughout your place.
Here are some key principles to maintain in nous when it comes to space efficiency:
- Utilize vertical space: Install floor-to-ceiling shelves, cabinets, or storage unit to make the most of your ceiling height.
- Opt for multi-functional furniture: Choose furniture part that function more than one determination, such as a storehouse osmanli or a desk with built-in storehouse.
- Minimize smother: Proceed surface open and tidy to make a sentiency of receptivity and visual flowing.
- Study the 60-30-10 regulation: Allocate 60 % of your infinite to functional areas, 30 % to semi-functional areas, and 10 % to decorative elements.
Clever Space Utilization
One-story plan offer legion welfare when it get to infinite utilization. Without the motivation to navigate step, you can create seamless conversion between rooms and maximise the flow of traffic throughout your home. Here are some cunning ways to utilize space in a 4-bedroom floor design:
Multi-functional areas:
- Mudrooms with built-in depot and hooks
- Flex rooms that double as home office or playroom
- Habitation theater or medium room with built-in seats and depot
Narrow hallways and corridors:
- Install slip glass doorway to make seamless transitions between rooms
- Use compact doorway hardware to downplay the ocular impact of doorway
- Opt for linear light-colored fixtures to create a sensation of continuity
Natural Lighting and Ventilation
Natural lighting and ventilation are essential elements in any place blueprint. In a 4-bedroom storey design, one story for every infinite, it's crucial to prioritize these element to make a sentiency of brightness and buoyancy throughout your habitation.
Hither are some tips to maximise natural lighting and ventilation:
- Install fanlight or solar pipe to work in natural light from above
- Use large window and sliding glass door to associate indoor and out-of-door spaces
- Install overhead fans or whole-house fans to ameliorate airing
- Choose low-maintenance exterior last to cut the peril of dirt and grime accretion
Designing for Functionality
When it comes to designing the staring 4-bedroom storey program, one narrative for every space, functionality is key. You want to create a home that meets the needs of your family, with ample infinite for relaxation, entertainment, and storage. In this subdivision, we'll explore some essential elements to view when designing a functional 4-bedroom base plan.
The Kitchen: Heart of the Home
The kitchen is much considered the heart of the home, and for full understanding. It's where families cumulate to parcel meals, bond, and create memories. When designing a 4-bedroom flooring plan, one story for every infinite, it's essential to prioritise a functional kitchen that encounter the want of your family.
Here are some key considerations for design a functional kitchen:
- Cabinet space: Ensure there's plenteous locker space for storage, include drawers, shelf, and buttery.
- Countertops: Choose durable, low-maintenance materials like crystal or granite for countertop.
- Appliances: Consider energy-efficient gizmo and a sufficient bit of outlets for ease of use.
- Work trigon: Optimise the employment triangle to downplay steps and maximise efficiency.
The Bedrooms: Comfort and Relaxation
The bedchamber are where house retreat to unbend, recharge, and unwind. When designing a 4-bedroom floor programme, one story for every space, it's essential to prioritize consolation and relaxation in each bedroom.
Hither are some key circumstance for designing functional bedchamber:
- Closet space: Ensure there's copious closet infinite for each bedroom, include shelving, drawers, and rod infinite.
- Bed placement: Reckon the locating of bed to create a comfy and inviting atmosphere.
- Natural light: Maximize natural light in each chamber through the use of window, skylights, or solar tubes.
- Entrepot: Incorporate built-in entrepot, such as shelf or drawers, to keep chamber clutter-free.
The Living Areas: Space for Relaxation and Entertainment
The animation areas are where family gather to relax, entertain, and alliance. When plan a 4-bedroom level design, one story for every infinite, it's all-important to prioritise functional living areas that converge the needs of your family.
Hither are some key circumstance for designing functional animation region:
- Furniture agreement: Optimize furniture agreement to create a sentiency of flowing and functionality.
- Lighting: Use a combination of overhead lighting, table lamp, and floor lamp to make a warm and inviting atmosphere.
- View: Maximize survey and natural light through the use of window, slip glassful doors, or skylights.
📚 Note: When designing a 4-bedroom floor plan, one narration for every space, it's essential to prioritise functionality, natural light, and airing to make a dreaming home that meets the needs of your class.
Conclusion
A well-designed 4-bedroom floor program, one floor for every space, is more than just a firm - it's a home. By prioritise functionality, natural light, and airing, you can create a infinite that see the needs of your class, foster connection, and provides a sense of comfort and relaxation. Remember to balance the needs of each category appendage, optimise space efficiency, and create a seamless flowing between rooms. With these principles in brain, you can make a 4-bedroom level design that genuinely feels like home.

| Way | Space Requirements | Design Consideration |
|---|---|---|
| Kitchen | Minimum 120 hearty pes | Cabinet infinite, countertop, contrivance, work triangle |
| Bedrooms | Minimum 100 substantial feet per bedroom | Closet infinite, bed positioning, natural light, storage |
| Living Country | Minimum 200 square foot per living country | Furniture agreement, lighting, storage, prospect |
Related Price:
- basic 4 chamber floor program
- 4 bedroom firm layout program
- 40x50 firm plans 4 bedroom
- 4 bedchamber open floor plan
- 4 bedchamber layout story plan
- 4 bedchamber modern house plan