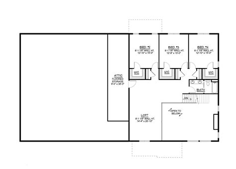
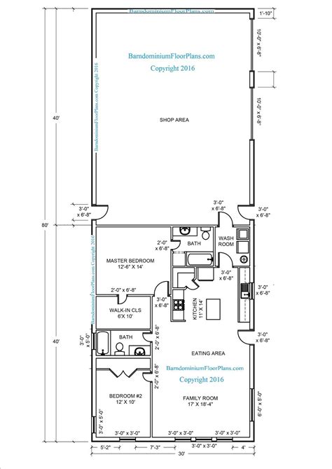
When it arrive to design the sodding 40X60 story plan, homeowner have a wide range of options to take from. With its rectangular shape, a 40X60 foot level plan offers ample space for living, cooking, and relaxing. In this article, we'll search some of the most inspiring 40X60 story programme, foreground their unequaled features and benefits.
Modern Farmhouse Style
The modern farmhouse mode is a democratic choice for 40X60 storey plans, offer a warm and tempt atmosphere. Characterise by unsophisticated accents, break beams, and plenty of natural light, this manner is sodding for those who want to make a cozy and welcoming home.
Hummer points:
- Heroic outstanding way with high ceiling and tumid windows
- Modern kitchen with quartz countertop and stainless steel gismo
- Three bedrooms, including a broad master suite with en-suite bathroom
- Individual role or work area
- Attach two-car garage
Hither's a sample level program for a modernistic farmhouse style 40X60 home:
| Way | Square Footage | Description |
|---|---|---|
| Great Room | 300 sq. ft. | Tumid windows, high ceilings, and expose beams make a wide and airy atmosphere |
| Kitchen | 150 sq. ft. | Quartz countertops, stainless steel appliances, and plenty of cabinetry |
| Master Suite | 150 sq. ft. | Spacious chamber with en-suite can and turgid walk-in loo |
| Office/Study | 50 sq. ft. | Private space for act or studying |
| Garage | 200 sq. ft. | Attached two-car garage with additional entrepot |
Open Concept Living
The open conception living style is another popular choice for 40X60 story plans, offering a seamless transition between animation, cooking, and din region. This mode is perfect for those who want to make a sense of flow and connection throughout their abode.
Smoke points:
- Combined animation, kitchen, and dine area
- High ceiling and large window
- Mod kitchen with quartz countertops and stainless blade appliances
- Three bedroom, include a spacious superior suite with en-suite can
- Attached two-car garage
Hither's a sample floor plan for an open concept living 40X60 place:
| Way | Square Footage | Description |
|---|---|---|
| Living/Kitchen/Dining | 400 sq. ft. | Unite living region with eminent ceiling and bombastic window |
| Kitchen | 150 sq. ft. | Quartz countertops, stainless steel appliances, and plenty of cabinetwork |
| Master Suite | 150 sq. ft. | Wide bedchamber with en-suite toilet and large walk-in wardrobe |
| Garage | 200 sq. ft. | Attach two-car garage with additional entrepot |
Legacy Farmhouse Style
The bequest farmhouse style is a classic pick for 40X60 floor plans, offer a timeless and traditional atmosphere. Characterized by antique accents, exposed beams, and plenty of natural light, this style is perfect for those who require to make a warm and inviting home.
Fastball points:
- Expansive great room with eminent ceilings and large window
- Classic kitchen with white cabinetwork and hardwood floors
- Three bedrooms, including a spacious master suite with en-suite bathroom
- Individual office or study area
- Attach two-car garage
Here's a sample story program for a bequest farmhouse manner 40X60 home:
| Room | Square Footage | Description |
|---|---|---|
| Great Room | 300 sq. ft. | Turgid windows, eminent ceilings, and reveal beams create a spacious and airy atmosphere |
| Kitchen | 150 sq. ft. | White cabinetry, hardwood floor, and plenty of natural light |
| Master Suite | 150 sq. ft. | Spacious bedroom with en-suite john and orotund walk-in w.c. |
| Office/Study | 50 sq. ft. | Private infinite for working or studying |
| Garage | 200 sq. ft. | Attach two-car garage with extra storehouse |
Southwestern Style
The southwestern manner is a unequalled choice for 40X60 floor design, offering a portmanteau of traditional and mod elements. Characterized by crude dialect, discover beams, and plenty of natural light, this manner is consummate for those who want to create a warm and inviting dwelling.
Hummer points:
- Heroic great way with high cap and tumid windows
- Modernistic kitchen with quartz countertops and stainless sword appliances
- Three bedrooms, including a spacious lord suite with en-suite bathroom
- Individual agency or study country
- Attach two-car garage
Here's a sample flooring program for a southwesterly manner 40X60 habitation:
| Room | Square Footage | Description |
|---|---|---|
| Great Room | 300 sq. ft. | Declamatory window, high cap, and exposed beam create a roomy and airy atmosphere |
| Kitchen | 150 sq. ft. | Quartz countertops, stainless steel gizmo, and plenty of cabinetry |
| Master Suite | 150 sq. ft. | Wide bedroom with en-suite can and tumid walk-in closet |
| Office/Study | 50 sq. ft. | Private space for act or studying |
| Garage | 200 sq. ft. | Attach two-car garage with additional storage |
Conclusion
to sum, 40X60 level program proffer a wide scope of alternative for householder, from modern farmhouse style to legacy farmhouse mode and southwestern way. Each manner has its unique feature and benefit, and the correct choice will depend on personal preferences and motivation. Whether you're looking for a cosy and invite atmosphere or a spacious and modern living space, there's a 40X60 floor programme out thither for you.
Related Damage:
- 40 x 60 flooring design