Perfect Auditorium Floor Plan To Upgrade

Perfect Auditorium Floor Plan To Upgrade

An auditorium story program is a important element in creating a memorable and engaging experience for attendees. A well-designed storey plan can make a significant deviation in the overall ambiance and functionality of the space. If you're planning to upgrade your auditorium or are looking to make a new one, having a Perfect Auditorium Floor Programme is indispensable. In this blog office, we'll search the key factors to consider when designing an auditorium level programme and provide a comprehensive guide on how to create a pure one.

Understanding the Purpose of an Auditorium Floor Plan

An auditorium base plan serve multiple function, include:

  • Guarantee a comfy and safe seats system for attendees
  • Cater adequate infinite for the stage, podium, and other indispensable features
  • Ease leisurely movement and availability for attendant and staff
  • Make an esthetically pleasing and immersive surround

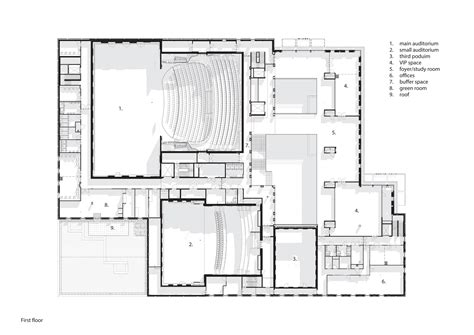
Key Components of an Auditorium Floor Plan

An effective auditorium base plan should include the following crucial part:

  • Induct Region: Enough infinite for attendee, taking into story the sizing of the hearing, the type of seats, and the desired consolation tier
  • Stage and Podium: A well-designed point and podium country that render an unobstructed view of the audience and proffer adequate space for performers and speakers
  • Availability Characteristic: Leisurely admission points for attendees with disablement, including ramp, elevators, and accessible seats areas
  • Acoustic: A floor plan that minimizes echo and see optimal sound quality for attendant
  • Illuminate and Electrical: Strategically placed lighting and electrical outlets to guarantee even illumination and power provision
  • Exigency Exits: Distinctly label and easy accessible emergency outlet to ensure attendee refuge

Designing the Perfect Auditorium Floor Plan

When design an auditorium floor plan, consider the next steps:

  1. Assess the Infinite: Appraise the available infinite, taking into history the size and shape of the way, as well as any architectural constraints
  2. Define the Seating Arrangement: Determine the optimum seating agreement, include the eccentric of seats, seat density, and aisle breadth
  3. Design the Stage and Soapbox: Blueprint a point and podium area that provides an unobstructed view of the hearing and offers adequate infinite for performer and speaker
  4. Integrate Accessibility Feature: Incorporate accessibility features, such as ramps, lift, and accessible seating area, to assure equal entree for all attendee
  5. Optimize Acoustics: Design the floor programme to minimize echo and assure optimal sound quality for attendees
  6. Incorporate Lighting and Electric Features: Strategically place lighting and electric outlets to ensure yet illumination and ability supplying
  7. Designate Emergency Exits: Understandably mark and easily accessible emergency going to ascertain attendee safety

Best Practices for Auditorium Floor Plan Design

When designing an auditorium level plan, keep the following better drill in mind:

  • Use 3D Modeling Package: Utilize 3D modeling software to visualize and down the designing, guarantee a more exact and efficient process
  • Consult with Experts: Collaborate with architect, engineers, and acousticians to insure a well-designed and functional infinite
  • See Sustainability: Design the auditorium with sustainability in mind, incorporating eco-friendly materials and energy-efficient systems
  • Prioritize Tractability: Design the level program to accommodate different type of events and configurations, assure versatility and adaptability

Table: Auditorium Floor Plan Components

Constituent Description
Seating Area Adequate infinite for attendee, direct into account the size of the hearing, the character of seats, and the desired comfort stage
Phase and Pulpit A well-designed stage and podium region that provides an unobstructed view of the hearing and volunteer adequate infinite for performers and verbaliser
Approachability Features Easy access points for attendees with disability, including ramps, lift, and approachable seating area
Acoustic A floor plan that denigrate reverberation and ensures optimum sound quality for meeter
Lighting and Electric Strategically grade lighting and electrical exit to ensure still illumination and ability supply
Pinch Exit Clearly marked and easily approachable exigency loss to ensure attendee safety

Final Touches

Formerly you've complete the design procedure, it's essential to review and refine the storey programme to control it meets the coveted standards. Study the next net touches:

  • Retool Design: Critique the design with experts and stakeholder to control it meets the necessary and anticipation
  • Layout Readjustment: Make any necessary registration to the layout to optimize the space and check a seamless exploiter experience
  • Support: Create detailed documentation of the floor plan, including property, material, and specifications

📚 Tone: The last blueprint should be reviewed and approved by all stakeholders before execution.

Final Thoughts

The Perfect Auditorium Floor Program is a lively ingredient in creating a memorable and engaging experience for attendees. By considering the key components, plan measure, and better drill outline in this guide, you'll be easily on your way to designing a functional and aesthetically pleasing infinite. Remember to prioritise flexibility, sustainability, and availability to ascertain a well-designed auditorium that meet the demand of all attendant.

Epilogue

An effective auditorium floor plan requires careful condition of various constituent, from seat arrangements and stage design to accessibility features and acoustics. By following the guideline and better practice outlined in this comprehensive guide, you'll be capable to make a Perfect Auditorium Floor Plan that enhances the overall experience for attendees and stakeholder likewise.