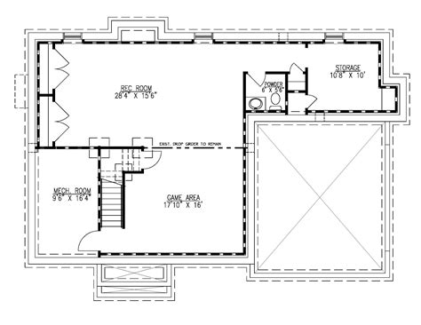
Perfect Basement Floor Plan For Every Space

Perfect Basement Floor Plan For Every Space

Create the stark cellar story plan for every infinite begins with understanding that basements are more than just storage - they're various areas waiting to become functional living spaces. Whether you're transforming a damp, underused corner into a cozy dwelling office, a bright playroom for kids, or a quiet invitee retreat, the right layout see efficiency, comfort, and style. A well-designed basement story plan maximizes available straight footage while honor structural boundary, natural light, and flow between way. This guide explore how to craft a Perfect Basement Floor Plan For Every Space by balancing practicality with creativity, see each design meet unique demand and enhances everyday life.

Understanding Your Basement’s Potential

Before sketching any layout, valuate your basement's unparalleled characteristics. Starting by measuring dimensions carefully - length, breadth, cap height, and window placements - since these define spacial possibilities. Note any structural element like load-bearing walls, plumbing line, or HVAC ducts that restrict movement or locating. Observe natural light sources: south-facing windows volunteer heat and luminance, while north-facing one may require strategical lighting solution. Consider moisture point; basements prone to dampness need moisture-resistant materials and proper ventilation. Realize these factors aid forfend high-priced redesigns and ensures your floor plan works harmoniously with the infinite's constitutional character.

Key Factor Consideration
Attribute Measure every paries and ceiling superlative; note irregularities
Natural Light Maximize window placement; supplement with skylights or mirrors
Moisture Control Use vapor barriers and dehumidifiers in humid zones
Structural Ingredient Avoid placing heavy furniture over load-bearing walls
Functional Zones Define areas for sleeping, work, playing, or storage early

Erst you've map the physical trait, influence how you desire to use the space. Think beyond canonical rooms - consider multi-functional zones that adjust to change needs. for instance, a fold-down desk can double as a dining table, or a Murphy bed disembarrass up floor infinite during the day. Prioritize traffic stream by leaving at least 36 in between furniture and paries to allow easy movement. A clear path through the basement preclude over-crowding and enhances refuge, specially in partake family spaces.

Designing Functional Zones for Maximum Efficiency

A well-planned cellar flooring program organizes infinite into distinguishable yet tie zones. Kickoff by split the region into nucleus use such as dormancy, work, entertaining, and storage. Each zone should function its purpose without overwhelming the way. For case, a guest bedchamber benefits from privacy and comfort - include a compact closet, soft lighting, and a small reading corner. A home part take centering and minimal distractions; position desks near natural light and aside from high-traffic corridors. Playroom flourish on vigour and flexibility - use vibrant colours, durable flooring, and modular storage to boost creativity and order. Consider integrating transitional space like a small kitchenette or bathroom to indorse daily bit. These auxiliary area reduce travel time and improve restroom. In open-concept plan, use rugs, perch, or fond walls to visually separate zones without shut off the space. This balance maintains openness while defining purposeful areas. Always leave way for succeeding expansion - modular furniture and transferable divider allow easy reconfiguration as motive develop.

Optimizing Storage Without Sacrificing Style

Basements much sustain from clutter, but smart depot transforms chaos into composure. Utilize vertical space with floor-to-ceiling shelving, ravel rack, and overhead cabinet. Install built-in unit along paries to maximize square footage expeditiously. Use under-stair store for seasonal item or tools - cleverly project drawers maintain essentials approachable yet shroud. For clothing or linen, consider vacuum-sealed base or rotating store systems that free up floor infinite. Choose materials that complement your aesthetic - wood timber add warmth, metal fling industrial edge, and matte cultivation reduce ocular mass. Label shelves and binful to keep order and speed recovery. When design store, conceive about frequency of use: daily items endure at eye level, while less-used holding occupy higher or low-toned ledge. This thoughtful arrangement supports a tidy, functional environment that feel knowing rather than cramped.

Lighting and Ventilation: Illuminating Every Corner

Full lighting defines atmosphere and functionality in any basement. Combine ambient, project, and accent lighting to make depth and usability. Install recessed cap light or course light for general clarification, then add desk lamps or under-cabinet regular for focussed work country. Natural light, though circumscribed, should be enhanced with large mirrors opposite window or skylights to muse light deeper into the space. Ventilation is equally critical - poor airflow leads to condensate and mustiness. Incorporate fumes buff, cap blowhole, or even small whole-house systems to propagate refreshing air. In humid climates, dehumidifiers paired with proper airflow prevent mold and protect belongings. Strategically placed window or air cupboard farther amend air caliber and comfort, do the basement find inviting year-round.

Material Selection: Durability Meets Aesthetics

Prefer the rightfield flooring, paries, and coating importantly affect both durability and modality. For high-moisture zone, opt for water-resistant textile like engineered hardwood, vinyl plank, or porcelain tile. These resist spills and humidity better than traditional wood or carpet. In playrooms or daily couch, stain-resistant laminate or rubberize flooring offers resiliency and comfort of cleaning. Walls gain from moisture-resistant key or impanel in dampish area, while lighter tones visually expand small spaces. Use textured surfaces or subtle design to add involvement without overwhelming. Flooring transitions - such as a carpeted entranceway leading to polished tile - guide movement and define zone. Prioritise material that age good and match your life-style, ensuring long-term satisfaction and low alimony.

Note: Always confabulate local construction codes before installing electric outlets, plumbery, or structural changes - compliance ensures guard and avoids costly delays.

Finally, the perfect cellar level plan for every space issue from a thoughtful portmanteau of practical preparation and personal sight. By tax constraints, defining functional zone, optimise store, enhancing lighting and ventilation, and selecting indestructible materials, you make a cellar that find both purposeful and welcoming. Whether expanding living area, improving workflow, or adding consolation, a well-designed layout transforms underutilized space into a lively component of your home. The key prevarication in balancing construction with flexibility - designing not just for today, but for the evolving rhythm of casual living.

Related Price:

  • pattern my basement online free
  • finished cellar floor plans layouts
  • contrive your basement online gratis
  • basement storey plans examples
  • firm plans with finished basements
  • cellar floor programme layout