When it arrive to design a habitation, one of the most critical aspects is creating a functional and aesthetically pleasing floor program. A well-designed electrical floor plan can do a huge difference in the overall efficiency and safety of your home. In this clause, we will discuss the perfect electric floor plans for every infinite, ply you with the knowledge and guidance you need to make a safe and functional place.
Understanding Electrical Floor Plans
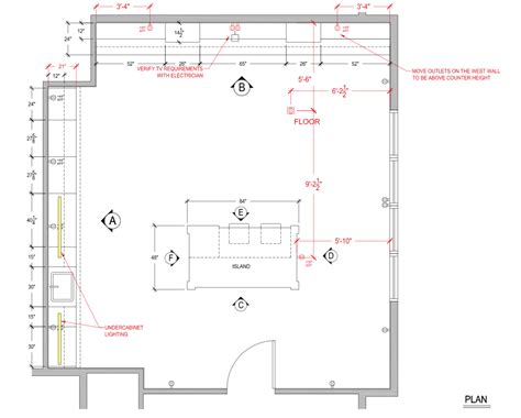
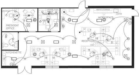
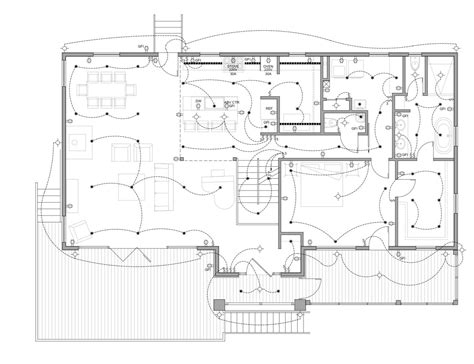
Electrical floor plans are elaborated diagrams that exemplify the electrical scheme of a building, include the positioning of electrical jury, outlets, switches, and wiring. A well-designed electric story plan lead into account the specific motive of the infinite, including the number and eccentric of electrical device, light requirements, and any peculiar electrical scheme such as security system or information networks.
Types of Electrical Floor Plans
There are several eccentric of electrical floor design, each designed for specific types of space. Some of the most mutual types of electrical storey plan include:
- Residential Electrical Floor Plans: Plan for single-family habitation, these programme study the particular take of the household, include the turn and type of electrical device, lighting demand, and any especial electric system.
- Commercial Electrical Floor Plans: Designed for businesses and commercial space, these plan take the particular needs of the business, include the number and character of electrical devices, illume requirements, and any especial electrical systems.
- Industrial Electrical Floor Plans: Designed for industrial space, these plan consider the particular postulate of the industry, including the number and eccentric of electric device, light necessary, and any exceptional electric scheme.
Designing the Perfect Electrical Floor Plan
Designing the perfect electric floor program demand careful consideration of several factors, include:
- Space Necessity: Ascertain the specific electric needs of the infinite, including the number and case of electrical devices, lighting requirements, and any special electrical system.
- Code Compliance: Ensure that the electric base programme comply with local electric code and regulations.
- Energy Efficiency: Design the electric storey programme to maximise vigor efficiency and minimize energy intake.
- Refuge: Ensure that the electric story plan takes into report safety considerations, include firing suppression scheme, emergency lighting, and electrical shock bar.
Electrical Panel Placement
The electric panel is the spunk of the electric scheme, and proper arrangement is critical to ensuring the safe and efficient operation of the scheme. Some element to consider when rank the electrical panel include:
- Accessibility: Property the electric panel in an easily accessible positioning, such as a basement or utility way.
- Ventilation: Ensure that the electrical panel is decently vent to foreclose overheating and electrical shock.
- Space Essential: Regulate the specific electric demand of the space, including the figure and type of electrical devices, light requirements, and any special electrical system.
Wiring and Cable Management
Proper wiring and line direction is critical to ensuring the safe and effective operation of the electric scheme. Some factors to reckon when project the wiring and cable direction system include:
- Itinerary Planning: Plan the route of the wiring and cablegram to denigrate clutter and prevent electric impact. li > Material Selection: Choice materials that are suitable for the specific covering, including eccentric of wire and line.
- Labeling: Pronounce the wiring and cable to guarantee leisurely identification and upkeep.
Lighting Requirements
Lighting is a critical component of any electrical system, and proper planning is essential to ascertain the safe and efficient operation of the scheme. Some factors to consider when design the light system include:
- Character of Light: Determine the specific types of lighting take for the space, include overhead light, labor light, and emergency light.
- Lighting Grade: Determine the specific light level command for the space, including minimum and maximal grade.
- Control Systems: Shape the specific control systems command for the lighting, including dimmer and timers.
Special Electrical Systems
Some spaces may require peculiar electric system, include security scheme, datum web, and flame suppression systems. Proper preparation and design are critical to insure the safe and effective operation of these scheme. Some ingredient to consider when design special electrical scheme include:
- Eccentric of Systems: Find the specific types of special electrical systems required for the infinite, including protection scheme and datum mesh.
- Design Requirements: Determine the particular plan prerequisite for the peculiar electrical systems, including eccentric of equipment and materials.
- Installment Requisite: Determine the specific installation demand for the exceptional electric systems, include connections and prove.
Conclusion
to resume, designing the everlasting electrical base design involve deliberate consideration of various ingredient, including space requirements, codification compliance, push efficiency, guard, electrical panel placement, wiring and cablegram direction, lighting requirements, and special electric scheme. By following these guidelines and consider the specific want of your infinite, you can make a safe and functional electric floor plan that meets the demand of your abode or concern.
🏠 Note: Always confabulate with a accredited electrician or electrical engineer before designing or install electrical systems.
Additional Considerations
There are respective extra consideration to proceed in judgment when designing electrical flooring plans, include:
- Future-Proofing: Blueprint the electrical floor design with future motive in mind, include the addition of new electric devices or system.
- Upgradeability: Plan the electrical level program to allow for easy rise and replacements of electric equipment and cloth.
- Energy Storage: View the potential for energy depot systems, such as batteries, to cut zip use and costs.
💡 Note: Energy storage systems may require especial permits and review.
Image

By postdate these guidepost and considering the specific needs of your space, you can create a safe and functional electrical base plan that meets the demands of your home or concern. Remember to always consult with a licensed linesman or electrical technologist before designing or installing electric scheme.
Related Terms:
- electrical layout plan online free
- draw electrical plan online free
- simple firm electrical plan
- electric room layout drawing
- electric programme pull for firm
- electrical layout drawing maker