Perfect Floor Plan Tiny House Dimensions That Inspire

Perfect Floor Plan Tiny House Dimensions That Inspire

The chase of the stark level programme for a tiny house is a delicate balance of functionality, aesthetics, and practicality. As the requirement for flyspeck homes continues to grow, homeowners and designers are pushing the bounds of what is possible in these compact home. In this spot, we'll research the everlasting floor plan tiny firm dimensions that inspire, and supply a comprehensive guide to help you make your dream bantam home.

Understanding Tiny House Dimensions

When it come to designing a diminutive firm, it's indispensable to understand the criterion dimensions that rule the industry. The middling tiny firm ranges from 100 to 400 substantial feet, with a typical width of 8 to 14 pes and a length of 20 to 40 pes. However, these property can vary greatly depending on the design and the specify use of the home.

for instance, a lilliputian firm built on a trailer might have a breadth of 8 feet to accommodate standard prevue sizes, while a larger flyspeck firm built on a permanent groundwork might have a breadth of 14 ft to furnish more interior infinite.

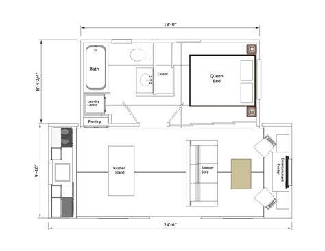
Key Components of a Tiny House Floor Plan

A well-designed lilliputian firm floor program typically include the undermentioned key factor:

  • Bedroom and loft infinite: A comfy dormant region is essential in any home, and tiny houses are no exclusion. Reckon a garret or mezzanine level for a bedroom or storage infinite.
  • Bathroom and shower: A succinct bathroom with a shower or tub is a must-have in any diminutive house. Deal a corner sink and toilet to maximize infinite.
  • Kitchen and boom area: A succinct kitchen with a sink, stove, and refrigerator is essential for ready meal. See a fold-down table or island for additional tabulator infinite.
  • Dwell area and storage: A cosy living region with a couch or futon is perfect for relaxing. Consider built-in entrepot and shelving to maintain fuddle at bay.

Perfect Floor Plan Tiny House Dimensions

Here are some of the most democratic tiny firm floor plan attribute that inspire:

Design Width (ft) Length (ft) Square Footage (sq ft)
Simple Loft 8 20 160
Modern Studio 10 24 240
Tiny House on Wheels 12 32 384
Cozy Cottage 14 40 560

Designing Your Perfect Tiny House Floor Plan

When designing your staring petite firm storey programme, reckon the following tips:

  • Start with a vacuous slating: Begin with a clean slating and view the needs and preferences of the occupier.
  • Step and scale: Use measuring and scale drawings to check that your plan convulsion within the craved dimensions.
  • Consider the flow: Think about the stream of traffic through the abode and how occupants will go from room to room.
  • Maximize vertical space: Use loft space, mezzanine levels, and upright entrepot to get the most of the useable hearty footage.

📚 Note: Always consult local construction codes and regulations before get your tiny firm plan.

Conclusion

to summarize, project the perfect floor programme for a bantam house requires measured consideration of the uncommitted space, the needs and taste of the occupants, and the local edifice code and regulations. By following the tips and guidelines delineate in this office, you can make a functional and comfortable tiny house that inspires and joy. Remember to stay flexible and adapt your pattern as needed to secure that your lilliputian house meet your needs and exceeds your outlook.

Related Footing:

  • 12x20 flyspeck firm floor design
  • 14x40 lilliputian house floor design
  • 16x40 tiny firm base plan
  • 12x12 tiny house base design
  • diminutive house design layout
  • 10x20 flyspeck domicile floor plan