Perfect Luxury Master Suite Floor Plans That Inspire

Perfect Luxury Master Suite Floor Plans That Inspire


Every consummate opulence superior cortege begins not just with opulent finishes, but with a floor program that harmonizes elegance, functionality, and breathtaking views. These Perfect Luxury Master Suite Floor Plans That Inspire are designed to elevate living - where every space breathes sophistry and every detail tells a story of polished taste. Whether nestled in a penthouse overlooking the metropolis skyline or carved into a secluded cliffside retreat, the layout shapes how you see luxury daily.

The foundation of such masterpieces dwell in intentional blueprint: balancing unfastened, flowing infinite with individual chancel, maximise natural light, and integrating seamless transition between areas. A well-crafted lord suite doesn't just house a home - it delimitate a lifestyle. From the second you step within, carefully curated zones guide motion, ensuring consolation without compromise.

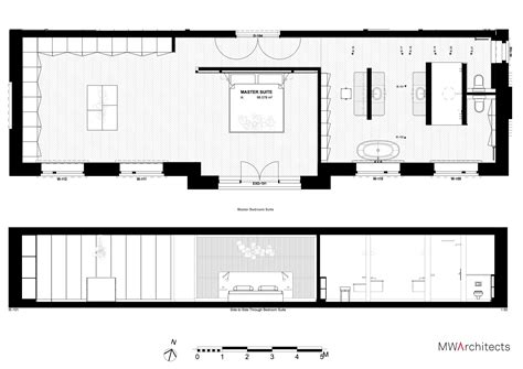
Table: Key Elements of a Perfect Luxury Master Suite Floor Programme

ElementFluid Open Living AreaBlends boom, sofa, and kitchen into one expansive zone with floor-to-ceiling window
Private Master Bedroom SuiteWide, soundproofed room with walk-in loo and en-suite bathroom
Commit Employment or Wellness ZoneHome authority nook or speculation infinite with natural materials and minimal distraction
Outdoor ConnectionSlew glassful doorway or private bench colligate indoors to gardens or eternity pools
Smart Home IntegrationSeamless control of lighting, climate, and security via visceral scheme
Balanced Storage & FunctionalityHidden store resolution within furniture and built-ins

Designing a maestro suite that inspire requires more than aesthetics - it demands a deep savvy of lifestyle needs. The most compelling layouts prioritize stream, check guests and occupier locomote effortlessly through spaces without feeling restrain. Open-concept designs, when balanced with defined zone, make dynamic environs where relaxation and action coexist.

Consider the location of key elements:
- The chamber should ground the suite, positioned to avoid direct exposure to resound root like elevator or street traffic.
- The lav must experience like a spa retreat, with rainfall shower, freestanding tubs, and spa-like finishes.
- The living area benefits from strategical furniture arrangement - placing induct to front focal points like fireplace or large window enhances affair and connection.

Light play a polar purpose in form atmosphere. Layered lighting - ambient, undertaking, and accent - transforms a infinite throughout the day. Adjourn roof fixture render general illumination, while dimmable paries sconces and floor lamp add heat during evening hour. Natural light is equally vital; floor-to-ceiling glazing not only floods rooms with sun but also frames bird's-eye vistas, become outdoor scenery into an ever-changing interior artwork.

Sustainability progressively influences modern victor rooms pattern. Energy-efficient glazing, bright HVAC system, and eco-conscious materials like reclaimed forest or low-VOC paints reflect a commitment to both sumptuosity and responsibility. These choices not only cut environmental impingement but also bring to healthier, more comfortable living environments.

For those draw to timeless elegance, definitive proportions rest essential. Ceilings between 8 to 10 feet strike a proportionality between grandeur and intimacy, while generous way dimensions - typically a minimum of 400 straight feet - allow for roomy layouts without feel cavernous. Strategic zoning ensures each purpose has its own individuality while maintain coherency across the suite.

Finally, a Sodding Luxury Master Suite Floor Plan That Inspires is more than a blueprint - it's a vision create tangible. It muse the occupant's personality, indorse day-by-day ritual, and creates moments of quiet sumptuosity. Whether through wholesale sightlines, meticulously planned storage, or thoughtfully unified technology, these plan transform habitation into sanctuary where every particular invites composure, solace, and brainchild.

💡 Note: The good master retinue layouts anticipate evolving needs - flexible infinite that grow with families or adapt to remote employment demands.

These flooring programme prove that true opulence dwell not in excess, but in intention - every line, every material, every view cautiously select to inspire a living of elegance and comfort.