Perfect Sauna Floor Plans You’ll Love

Perfect Sauna Floor Plans You’ll Love

The chase of a stark sauna experience is a stately one, and one that requires deliberate consideration of the space in which you plan to unbend and rejuvenate. The floor plan of your sauna is a crucial aspect of this, as it will determine the layout, functionality, and overall ambiance of your sauna. In this post, we'll search the key elements to view when designing the perfect sauna floor design, and ply you with some inspiration and guidance to help you make your ideal retreat.

Understanding the Basics of Sauna Floor Plans

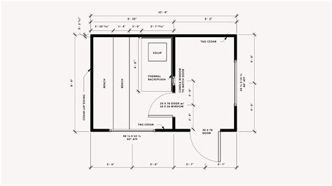
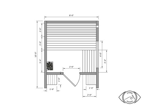
A full sauna storey plan should view various key factors, including the sizing and frame of the space, the case of sauna you're planning to establish, and the layout of the seats and comforts. Here are some of the key component to consider:

  • Sizing and Shape: The size and form of your sauna will reckon on the space useable, as well as your personal preferences. A traditional Finnish sauna is typically a small, orthogonal way, while a modern sauna might be bigger and more angular.
  • Type of Sauna: There are respective types of saunas to choose from, include traditional wood-burning saunas, electric saunas, and infrared saunas. Each case has its own unequalled characteristic and requirements.
  • Sit and Comforts: The seats and amenities in your sauna will bet on your personal taste and needs. This might include terrace, chair, or yet a chaise.
  • Illuminate and Airing: Proper lighting and ventilation are essential for a safe and pleasurable sauna experience. This might include overhead lighting, flooring lighting, and airing systems.
  • Stuff and Finishes: The materials and cultivation used in your sauna will reckon on your personal style and preference. This might include wood, stone, or still glassful.

Designing the Perfect Sauna Floor Plan

With the basics of sauna floor plans in mind, it's time to part design your sodding infinite. Here are some bakshish and brainchild to get you begin:

  • Start with a Blank Slate: Get by visualizing your sauna as a vacuous slating. Consider the size and chassis of the space, as good as the case of sauna you're project to install.
  • Reckon the Layout: Think about the layout of your sauna, including the seats and amenities. You might want to create a cosy, intimate infinite, or a more roomy, open-plan country.
  • Cogitate About Functionality: Your sauna level design should be functional and hardheaded. View the flow of the space, as good as the positioning of amenity like judiciary and light.
  • Don't Bury the Item: The point of your sauna level programme are just as important as the overall pattern. Consider the materials and cultivation apply, as well as the light and ventilation systems.

Perfect Sauna Floor Plans You'll Love

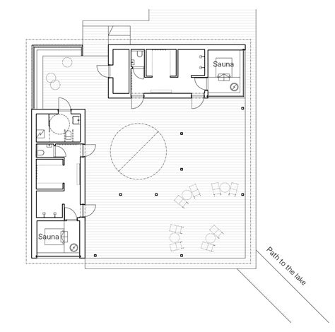
Here are some perfect sauna floor plans that you'll love:

Programme Gens Description Size Features
Finnish Frenzy A traditional Finnish sauna with a pocket-size, orthogonal shape and a cozy, confidant atmosphere. 6x6 ft Wood-burning range, benches, overhead lighting
Modern Oasis A modern sauna with a larger, more angular frame and a centering on clean lines and reductivism. 8x10 feet Infrared heating, floor light, glassful wall
Bumpkinly Retreat A rustic sauna with a cozy, cabin-like ambiance and a direction on natural materials. 8x8 ft Wood-burning stove, benches, overhead lighting

Creating Your Perfect Sauna Floor Plan

Now that you've realize some perfect sauna floor program, it's time to get make your own. Here are some bakshis and inspiration to get you started:

  • Get Inspired: Face for inspiration online, in magazine, or in your local sauna. Take billet of the different configuration, sizes, and layouts that you see.
  • Mensurate Your Infinite: Mensurate your space carefully to ensure that your sauna level design fits perfectly.
  • Take Your Stuff: Choice materials and finishes that fit your personal way and preferences.
  • Don't Bury the Details: Pay tending to the details of your sauna floor plan, include the light, airing, and seating.

💡 Tone: Remember to confabulate with a professional if you're unsure about any aspect of your sauna floor design.

Final Touches

With your sauna floor program in property, it's time to add the last trace. Here are some tips to reckon:

  • Add Some Colour: Add some color to your sauna with artwork, rugs, or other cosmetic factor.
  • Bring in Some Greenery: Add some verdure to your sauna with flora or a living wall.
  • Reckon the Lighting: Conceive about the lighting in your sauna, include overhead light, floor lighting, and any other lighting ingredient.
  • Don't Forget the Seats: Make certain to include comfortable induct in your sauna, whether it's benches, chairperson, or a daybed.

🔥 Note: Always postdate refuge guidepost when contrive and building your sauna.

The Final Result

With your sauna base program in place, you're one footstep closer to create your perfect retreat. Remember to lead your clip and have fun with the design procedure. Don't be afraid to experiment and try new thing - after all, this is your space, and you should love it!

🏠 Note: Don't forget to direct care of your sauna and maintain it regularly to see it continues to perform well.

The perfect sauna floor programme is all about create a infinite that's orient to your demand and preferences. By considering the basics of sauna design, go instigate, and supply the final touches, you'll be well on your way to make your ideal retreat. So why not get part today and create the perfect sauna level programme for you?

Related Damage:

  • outdoor sauna building plans
  • sauna construction plans
  • diy outdoor sauna storey design
  • 6x8 sauna program
  • sauna way design programme
  • sauna floor plan layout