When it arrive to micro apartments, every in number. With the growing drift of urbanization and a desire for compact life, micro apartments have become a democratic choice for those looking to downsize without sacrificing style. However, with circumscribed space comes the challenge of creating a functional and comfy animation region. This is where micro apartment floor design come in - carefully project to maximize every in of space while assure that residents have all the comforts they need. In this clause, we'll occupy a closer face at some of the most democratic micro flat storey plans to advance your living infinite.
Micro Apartment Floor Plan Designs
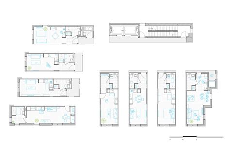
From compact studios to cozy one-bedrooms, micro apartment level plans offer a scope of options to fit different life-style and preferences. Hither are some of the most democratic designs to upgrade your live space:
- Compact Studio: Perfect for bingle or couples, thick studio volunteer a cosy populate country with a Murphy bed, kitchenette, and toilet. Step: 150-250 sq. ft.
- Intimate One-Bedroom: Ideal for couples or pocket-size families, informal one-bedrooms lineament a freestanding bedroom, kitchen, and john. Measure: 250-350 sq. ft.
- Effective Two-Bedroom: Suited for small families or roommates, efficient two-bedrooms volunteer two freestanding chamber, a kitchen, and a bathroom. Bill: 350-450 sq. ft.
- Open-Concept Loft: Perfect for creatives or enterpriser, open-concept lofts have an open-plan living area, kitchen, and sleep area. Measure: 200-400 sq. ft.
Key Features to Consider
When designing your micro apartment story plan, there are several key features to consider:
- Erect Space: Do the most of your roof height by incorporating shelves, store units, and hanging storage. This will aid proceed your living area clutter-free and create the most of your circumscribed infinite.
- Multi-Functional Furniture: Invest in furniture piece that serve multiple intent, such as a couch bed, storage ottoman, or a desk with built-in shelving.
- Optimum Lighting: Ensure that your micro flat is well-lit by incorporating natural light germ, such as skylights or big windows, and artificial light sources, such as table lamps or story lamp.
- Chic Entrepot: Utilize every corner and cranny with clever store resolution, such as under-bed store, hidden compartment, or swim shelf.
- Style and Aesthetics: Don't bury to add a personal touch to your micro flat with graphics, carpet, and ornamental accents that reflect your personality and mode.
Designing Your Micro Apartment Floor Plan
Now that we've explored the popular micro flat level plans and key features to consider, it's time to start designing your own micro apartment floor plan. Hither are some steps to postdate:
- Measure Your Infinite: Measure the length, width, and ceiling acme of your micro apartment to determine the optimum floor program layout.
- Name Your Want: Consider your lifestyle, preferences, and requirements to shape the essential lineament and amenity you need in your micro flat.
- Sketch Out a Plan: Use graph composition or a digital instrument to adumbrate out a rough floor plan, taking into history the lineament and amenities you've place.
- Fine-tune Your Plan: Refine your floor plan by incorporate the key features and design elements we've discuss, such as vertical infinite, multi-functional furniture, and chic entrepot.
📚 Note: It's essential to confer with a professional architect or designer if you're timid about designing your own micro flat floor plan.
Benefits of Micro Apartments
Micro apartment volunteer a ambit of benefits for those looking to downsize or dwell in heavyset animation spaces. Some of the benefits include:
- Cost-Effective: Micro flat are much more affordable than traditional apartments or house, get them an attractive choice for those on a budget.
- Energy Efficiency: Micro apartments are designed to be energy-efficient, reduce get-up-and-go usance and saving you money on utility bills.
- Increase Productivity: Summary living can help you stay focused and generative, allowing you to achieve your goal and engage your passions.
- Tractability: Micro apartments offer tractability in terms of fix, with many option available in urban areas and close to public transportation.
Conclusion and Final Thoughts
As we've explored in this clause, micro flat level plan offer a compass of options to befit different lifestyle and preferences. From thick studio to cozy one-bedrooms, there's a micro apartment story plan designing to beseem every need. By considering key lineament, contrive with efficiency in judgement, and making the most of your space, you can create a functional and comfy living region that converge your needs and enhances your lifestyle.

Remember, the key to create a successful micro flat floor plan is to prioritise function and efficiency while nonetheless contain your personal mode and druthers. By perform so, you can enjoy the benefits of compact living while keep a comfortable and welcome infinite that feels like home.
Related Terms:
- living in a micro flat
- micro flat layout thought
- micro flat designs